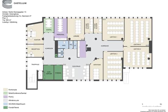
Kontor i två våningsplan
Centralt kontor i mitten av Helsingborg. Lokalen erbjuder flertal rum, kontor, konferens, omklädningrum och pentry i två plan. De två våningsplanen binds ihop av en interntrappa.
Området
Belägen på en av Helsingborgs mest eftertraktade adresser, tar du enkelt del av stadens pulserande atmosfär direkt utanför dörren. På gångavstånd finns ett stort utbud butiker, restauranger och caféer, vilket ger möjlighet att kombinera arbete med det liv och hjärta som Helsingborg har att erbjuda.
Kommunikationer
500 m till Knutpunkten, Helsingborgs buss-, färje- och tågstation. Busshållplatser på Drottninggatan, parallellt med denna gata.
Parkering
Timparkering på Stortorget och Hamntorget. Närmsta garage ligger ca 100 meter från fastigheten på Norra Strandgatan men även Sundstorget.
Service
I fastighetens närområde finns ett stort utbud av kommersiell service som bland annat flera restauranger, caféer och butiker men även gym, bank och post
Fastigheten
Fastigheten ligger mitt på Kullagatan - Helsingborgs shoppingstråk, mer centralt än så här kan det knappast bli. Detta centrala läge bjuder på en trivsam stadsmiljö men även idylliska miljöer med närheten till bland annat Slottshagen sekelskiftspark, Stortorget och promenadstråket längst Gröningen.
- Buss 300 m
- Tåg 300 m
- Restauranger 100 m
Service i området
Energi & hållbarhet
- Total energianvändning: 76 kWh / m², år
- Energi CO2-påverkan: 0 kg CO₂ / m², år
Andra hyresgäster i fastigheten
Karta
Dokument
Broschyr
Kontaktperson

Nyfiken på den här lokalen? Eller behöver du hjälp att hitta rätt lokal för din verksamhet? Oavsett om du vet exakt vad du söker eller om du behöver rådgivning, så finns vi här och hjälper till.
Vi ser fram emot att höra av dig.