Gå till huvudinnehåll

Göteborg Högsbo/Sisjön

Britta Sahlgrens gata 8 A-D

Kontor

Yta

385 kvm

Arbetsplatser

15 - 25 st

Så räknar vi antal arbetsplatser

Detta spann är en uppskattning. Det finns flera faktorer som påverkar hur många arbetsplatser som kan rymmas i en lokal. Inte bara storleken på själva lokalen utan även hur den disponeras. Exempelvis kräver en lokal med många enskilda kontor mer plats än öppen planlösning. Andra begränsningar kan vara tillgången på luft och kyla, eller utrymningsvägar.

Tillträdesdatum

Enl. ök.

Våningsplan

3

Kontor med möjligheter!

Nyrenoverad lokal! Renovering kommer att göras innan inflyttning och det finns alla möjligheter att vara med och påverka utformningen av lokalen samt val av ytskikt och material. Vid anpassningar har vi tät dialog med arkitekt och projektledare. I samband med lokalanpassning eller ombyggnad är vår ambition att använda återbrukat material så långt det är möjligt och vi prioriterar hållbarhet för minsta möjliga miljöpåverkan.

Kontoret har mycket ljusinsläpp och är beläget på plan 3. Det är en modern och inbjudande entré till fastigheten.

Skapa en lokal helt efter era krav och önskemål för att uppnå bästa resultat för ert företag och få medarbetare och kunder att trivas och känna sig välkomna.

Lätt att tas sig hit med bil via trafikleder, parkering finns i anslutning till fastigheten och närhet till allmänna kommunikationer.

Välkomna att kontakta oss för mer information och visning!

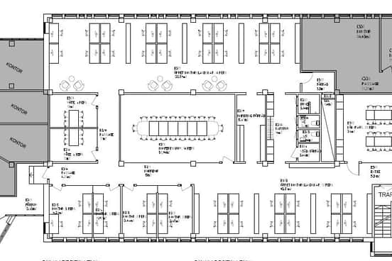
Planlösning

I dagsläget är lokalen rumsindelad och kontorsrummen ligger i fil längs fönsterraden med mycket ljusinsläpp. Finns alla förutsättningar att anpassa lokalen till efter era behov.

Området

Högsbo-Sisjön industriområde har vuxit fram till att bli Nordens största företagsområde med drygt 1000 företag. Högsbo-Sisjön industriområde ligger i sydvästra Göteborg inte lågt från Frölunda torg och Mölndals centrum. Det centrala läget och närhet till stora trafikleder har gjort området mycket attraktivt för företag i olika branscher.

Kommunikationer

Kommunikationen från Britta Sahlgrens gata 8 är mycket god. Från fastigheten kommer du snabbt och lätt ut på Dag Hammarskköldsleden. Den kollektiva kommunikationen är också bra, precis utanför fastigheten finns en busshållsplats. Därifrån går buss nr 82 samt buss nr 758. Dessa bussar går med ca 30 minuters mellanrum till centralstationen.

Service

Fastigheten ligger i Högsbo industriområde och här är serviceutbudet stort. I området finns dagligvaruhandel, köpcentrum, restauranger, gym och bank.

  • Flexibel indelning
  • Skyltmöjlighet
  • Nära tafikleder

Faciliteter i fastigheten

Parkering

Service i området

Buss Restaurang Café

Energi & hållbarhet

  • Certifieringar: LEED O+M, Gold
  • Total energianvändning (2025): 31 kWh/m²
  • Klimatpåverkan: 2,16 kg CO₂e/m² (platsbaserad)

Andra hyresgäster i fastigheten

Informationsteknik Scandinavia AB - Studieförbundet Vuxenskolan - Cykelhuset, Högsbo E-sport AB KK250912 - OceanHouse AB - Belium Livsmiljö AB - Sedin & Co AB - Replokalen.com i Högsbo AB - Dezorti Consulting AB - BSA Safety AB - Sanguine

Karta

Dokument

Kontaktperson

Uthyrare

Ylva Brodin

Fråga oss!

Nyfiken på den här lokalen? Eller behöver du hjälp att hitta rätt lokal för din verksamhet? Oavsett om du vet exakt vad du söker eller om du behöver rådgivning, så finns vi här och hjälper till.

Vi ser fram emot att höra av dig.

Intresseanmälan

Kontaktinformation

All behandling av personuppgifter sker i enlighet med dataskyddsförordningen och annan dataskyddslagstiftning. Läs mer om GDPR

Ett eget husteam ingår i hyran

Som hyresgäst hos oss får ni ett lokalt husteam som ser till att ni trivs och att allt fungerar som det ska. Vi hjälper till med allt från fastighetsskötsel och energioptimering till skyltning och parkering. Ingen fråga är för stor eller för liten. Och skulle era behov förändras brukar vi alltid kunna erbjuda en lösning, vad det än gäller. Varmt välkommen till en värd bortom det förväntade.

Liknande lokaler i Göteborg