Gå till huvudinnehåll

Helsingborg Centrum

Helsingborg Färjan 4

Kontor

Fastighetsbeteckning

Helsingborg Färjan 4

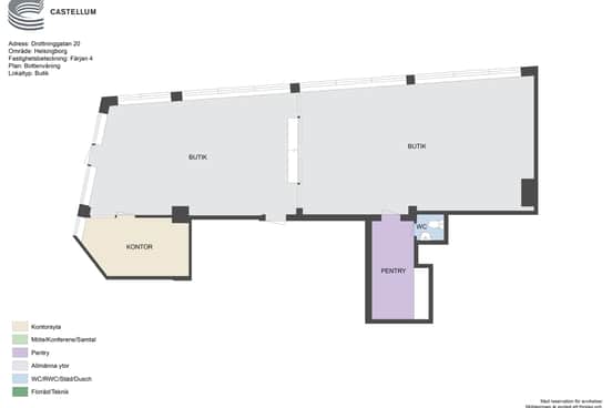
Adress

Drottningg. 20-22, Hästmöllegränden

Byggnadsår

1932

Total area

4 595 kvm

Om fastigheten

Färjan 4 är ett av stadens första funkishus med byggår 1932 som inrymmer kontorslokaler i fem våningsplan samt butiks- och restauranglokaler i bottenplan. Fastigheten nås från Drottninggatan 20 längst med stadens puls och Norra Strandgatan 21 ut med gemytliga Konsul Olssons plats och upp mot Kullagatan.

Området

Fastigheten ligger precis nedanför stadens shoppingstråk, mer centralt än så här kan det knappast bli. Detta centrala läge bjuder på en trivsam stadsmiljö men även idylliska miljöer med närheten till bland annat Slottshagen sekelskiftspark, Stortorget och promenadstråket längst Gröningen.

Kommunikationer

Fastigheten är belägen vid Konsul Olssons Plats, cirka 400 meter till Knutpunkten, Helsingborgs färje-, buss- och tågstation.

Parkering

Intill fastigheten på Sundstorget ligger Sundstorgsgaraget. Även tillgång till markparkering längst hela Kungsgatan för korttidsparkering.

Service

I fastighetens närområde finns ett stort utbud av kommersiell service som bland annat flera restauranger, caféer och butiker men även gym, bank och post. En gata upp ligger Kullagatan – Helsingborgs gågata med stor variation på butiker.

Energi & hållbarhet

  • Certifieringar: BREEAM In-Use, Very Good
  • Total energianvändning (2025): 23 kWh/m²
  • Klimatpåverkan: 8 kg CO₂e/m² (platsbaserad)

Hyresgäster i fastigheten

Edument AB - Arthur J Gallagher Proinova AB - Öhrlings PricewaterhouseCoopers Gruppen AB - PE Teknik & Arkitektur AB - Praktikertjänst Aktiebolag - Helsingborgs Kommun - Advokatfirman dNovo Helsingborg Kommandi - Bravida Sverige AB - il caffé brutale AB - Evelyn´s fotvård / Evelyn Schönbeck - Tandläkare Lars Jacobsson AB - Tandläkare Yasser Kayyali AB - Betadent AB

Karta

Kontaktperson

Kommersiell Förvaltare

Fredrik Stenberg

Anmäl intresse

Är du intresserad av att sitta i den här fastigheten? Gör en intresseanmälan så hör vi av oss om det dyker upp någon lämplig lokal.

Intresseanmälan

Kontaktinformation

All behandling av personuppgifter sker i enlighet med dataskyddsförordningen och annan dataskyddslagstiftning. Läs mer om GDPR

Lediga lokaler i Helsingborg Färjan 4