Gå till huvudinnehåll

Västerås Tunbytorp

Västerås Högspänningen 1

Industri

Fastighetsbeteckning

Västerås Högspänningen 1

Adress

Lågspänningsgatan 8

Byggnadsår

2014

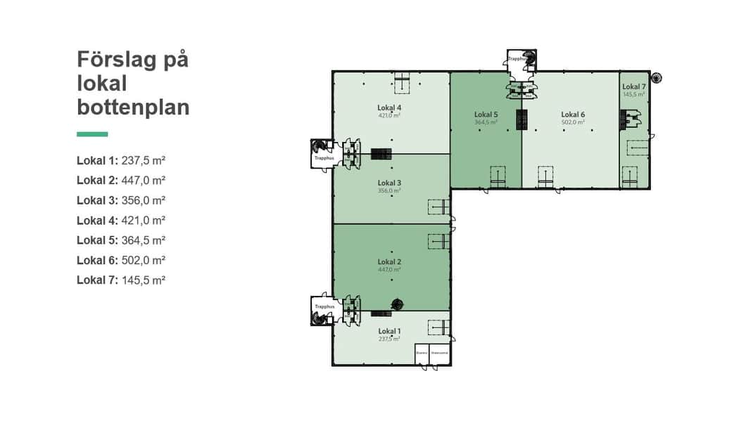
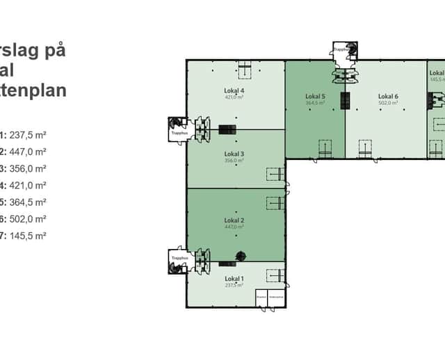
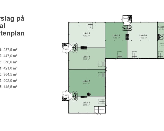
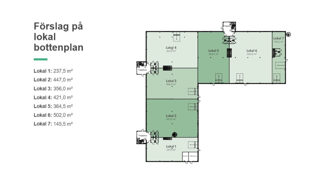
Total area

3 911 kvm

Om fastigheten

Industrifastighet

Området

Tunbytorp är ett av Västerås starkaste industriområden, staden växer i närområdet och inom Tunbytorp finns flertalet entreprenörer, restauranger samt flertalet av de större bilmärkena bedriver sin verksamhet här. Närhet till Stenby handelsområde där bla Coop och Systembolaget huserar.

Kommunikationer

Närhet till flertalet större trafikleder inklusive E-18, Västerås citykärna och flygplatsen ligger inom några. Goda kommunala kommunikationer.

Parkering

Fri parkering på uppmärkta platser.

Service

Inom Tunbytorp finns flertalet lunchrestauranger, mackbar med försäljning av sallader, flertalet b2b butiker samt allt som rör bilar. Närhet till Stenby handelsområde med systembolag och Coop.

Energi & hållbarhet

  • Certifieringar: BREEAM In-Use, Good
  • Total energianvändning (2025): 8 kWh/m²
  • Klimatpåverkan: 4,56 kg CO₂e/m² (platsbaserad)

Hyresgäster i fastigheten

Aros Industripartner - Krusman Nödduschar - Nybyggar'n

Karta

Dokument

Kontaktperson

Kommersiell Förvaltare

Gabriel Barsoum

Anmäl intresse

Är du intresserad av att sitta i den här fastigheten? Gör en intresseanmälan så hör vi av oss om det dyker upp någon lämplig lokal.

Intresseanmälan

Kontaktinformation

All behandling av personuppgifter sker i enlighet med dataskyddsförordningen och annan dataskyddslagstiftning. Läs mer om GDPR