Gå till huvudinnehåll

Borås Katrinedal

Åsboholmsgatan 16

Kontor

Hyresindikation

Från 26 000 kr/mån

Detaljerad hyresinformation

Tillkommer till hyran:
Driftkostnader fn 170 kr/kvm och år
Fastighetsskatt fn 45 kr/kvm och år
Moms 25%

Yta

223 - 627 kvm

Arbetsplatser

5 - 40 st

Så räknar vi antal arbetsplatser

Detta spann är en uppskattning. Det finns flera faktorer som påverkar hur många arbetsplatser som kan rymmas i en lokal. Inte bara storleken på själva lokalen utan även hur den disponeras. Exempelvis kräver en lokal med många enskilda kontor mer plats än öppen planlösning. Andra begränsningar kan vara tillgången på luft och kyla, eller utrymningsvägar.

Tillträdesdatum

Enl. ök.

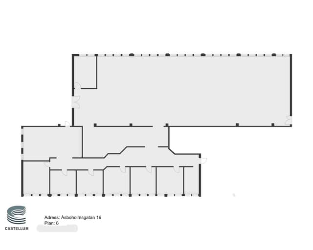
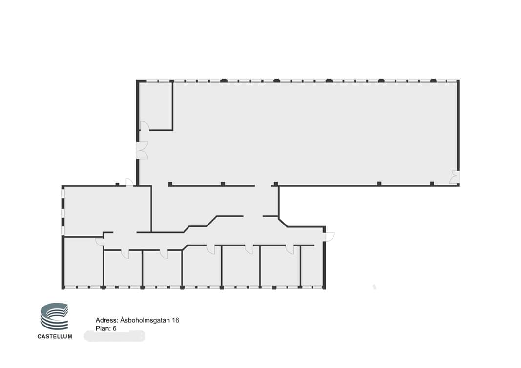
Våningsplan

6

Lokal med möjligheter på vån 6!

Vi har nu en ledig kontorslokal med många möjligheter på våning 6. Stora öppna ytor samt ett antal kontorsrum även möjlighet till lagerdel i lokalen. Perfekt för att skapa en flexibel arbetsmiljö som anpassas efter era önskemål och behov. Vi strävar efter att försöka använda återbrukat material i anpassningen för en miljövänligare och mer hållbar arbetsplats. Mycket ljusinsläpp via de långa fönsterraderna som ger ett härligt naturligt ljus i hela lokalen och en avkopplande utsikt. Smidig in-och utlastning av varor och utrustning via lastbrygga med lasthiss. Enkelt att nå fastigheten från trafikleder. Lokalen går att dela till två mindre enheter.

Kontakta oss idag för att boka en visning!

Området

Området Katrinedal består av ett flertal byggnader med företrädesvis kontorslokaler men även servicelokaler, grossister och gym. Annelundsparken med sina vackra omgivningar och promenadstråk ligger alldeles i närheten.
Bra service finns i området, som t ex restaurang, gatukök, gym, bilvårdsfirma m m.
Friskis och Svettis ligger på ett stenkasts avstånd.

Kommunikationer

Nära till bussförbindelse. Borås Centrum når man på 10 minuters promenad och med cykel på kortare tid.

R40 ligger bara ett stenkast från fastigheten vilket medför att man lätt tar sig till både Göteborg och Jönköping. Landvetter Flygplats når man på 30 minuter.

Parkering

Goda parkeringsmöjligheter finns i området.

Service

Hos oss har varje hyresgäst ett eget team!

Med ett starkt lokalt engagemang är vi måna om att leva upp till de förväntningar som ställs på en trygg och långsiktig hyresvärd, varje dag, i stort och smått.
Alla våra fastigheter sköts av vår egen personal och som hyresgäst har du tillgång till ett eget Castellumteam som ser till att du trivs hos oss. Och om dina behov så småningom förändras kan vi, tack vare vår storlek, nästan alltid erbjuda en lösning.
För att göra det enkelt för våra hyresgäster att leva hållbart erbjuder vi bland annat gröna hyresavtal och förnybar el.

Fastigheten

Lättillgänglig kontorsfastighet med många olika verksamheter representerade.

  • Skyltläge
  • Lättillgängligt
  • Parkering

Faciliteter i fastigheten

Parkering Restaurang

Service i området

Buss

Energi & hållbarhet

  • Total energianvändning (2025): 24 kWh/m²
  • Klimatpåverkan: 4,9 kg CO₂e/m² (platsbaserad)

Andra hyresgäster i fastigheten

Amer Sports Sverige AB - Borås Stad - Katrinehill 8 - LaxTon Ghost Sweden AB - Torplyktan AB - Samhall AB - Katrinehill 8 - Cromocol Scandinavia AB - Forward Ekonomi AB - Aveny Ögonklinik AB - Senstex AB - Hydria Invest AB - Booztad AB - Sverigedemokraterna Borås - SMART Psykiatri i Sverige AB - Securitas Sverige Aktiebolag - Assemblin El AB

Karta

Dokument

Kontaktperson

Uthyrare

Erik Williamson

Fråga oss!

Nyfiken på den här lokalen? Eller behöver du hjälp att hitta rätt lokal för din verksamhet? Oavsett om du vet exakt vad du söker eller om du behöver rådgivning, så finns vi här och hjälper till.

Vi ser fram emot att höra av dig.

Intresseanmälan

Kontaktinformation

All behandling av personuppgifter sker i enlighet med dataskyddsförordningen och annan dataskyddslagstiftning. Läs mer om GDPR

Liknande lokaler i Borås