Gå till huvudinnehåll

Mölndal Lackarebäck

Bergfotsgatan 5

Industri Kontor Lager/Logistik

Yta

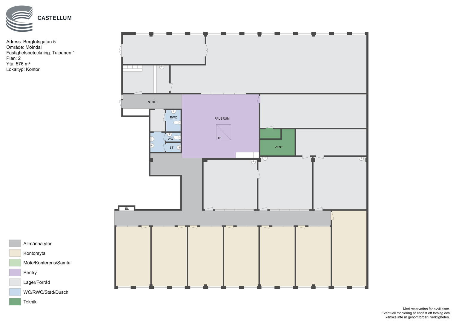
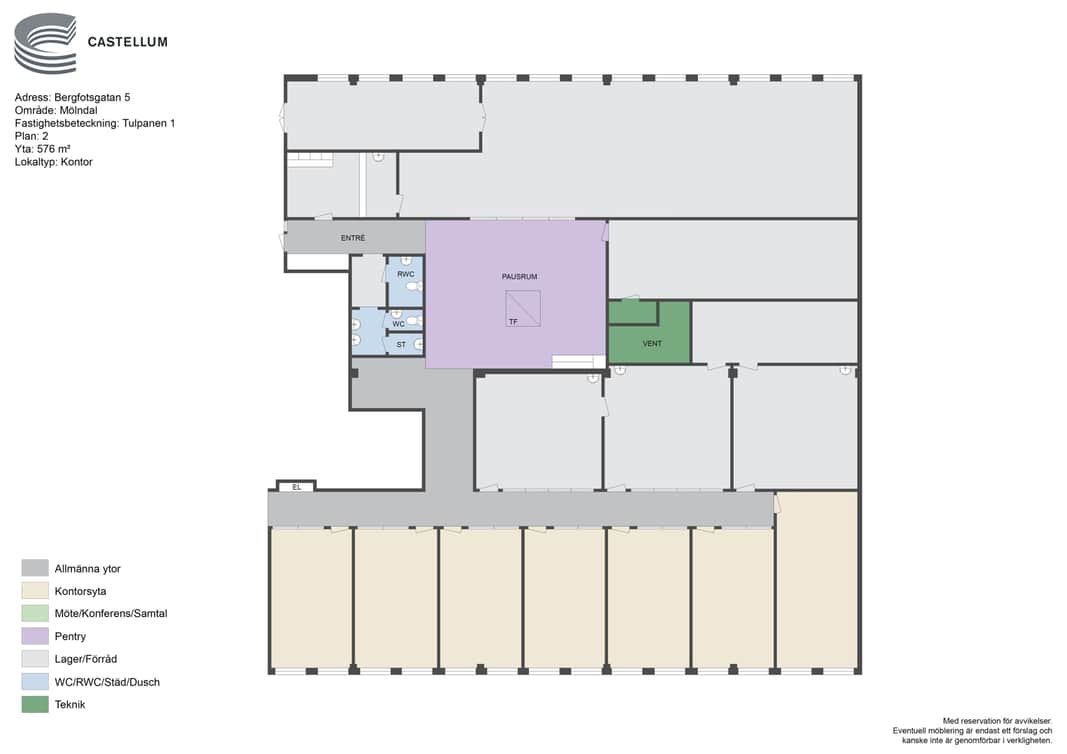
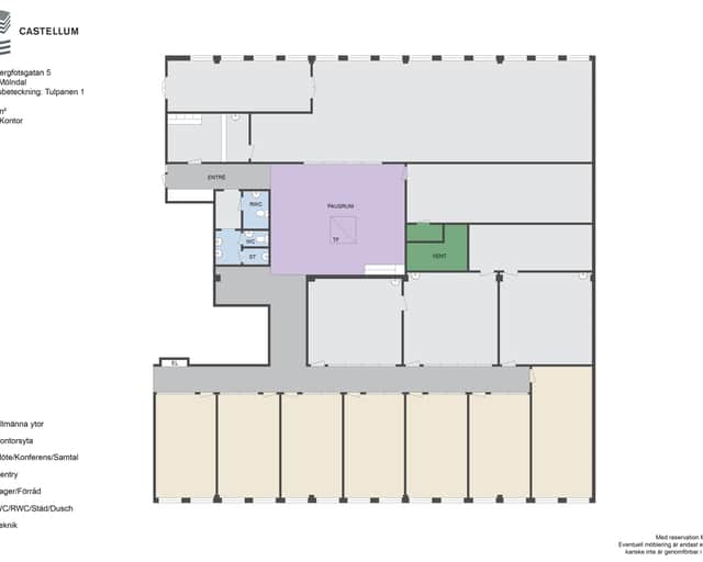
576 kvm

Arbetsplatser

5 - 20 st

Så räknar vi antal arbetsplatser

Detta spann är en uppskattning. Det finns flera faktorer som påverkar hur många arbetsplatser som kan rymmas i en lokal. Inte bara storleken på själva lokalen utan även hur den disponeras. Exempelvis kräver en lokal med många enskilda kontor mer plats än öppen planlösning. Andra begränsningar kan vara tillgången på luft och kyla, eller utrymningsvägar.

Tillträdesdatum

Enl. ök.

Våningsplan

1

Produktionslokal med tillhörande kontor

Nu kan vi erbjuda en yteffektiv produktion-, verkstad- eller lagerlokal med kontorsyta. Ljus lokal med fönster åt två väderstreck.

In- och utlastning sker enkelt via porten på den egna lastbryggan till lokalen. Enkel att ta sig hit via E6/E20.

Ge dina affärs-och lagerbehov de utrymme de förtjänar.

Planlösningen kan anpassas efter era behov och önskemål. Skapa en lokal där medarbetarna trivs och känner sig välkomna.

Vid ombyggnad försöker vi alltid ha återbruk och hållbarhet i åtanke.

Kontakta oss idag för att boka en visning och upptäcka hur den här lokalen kan passa ditt företag.

Planlösning

Kontorsdelen består av 7 st rymliga och ljusa kontorsrum samt mötesrum. Trevligt pentry.

Området

I området finns en blandning av både kontors- och industrifastigheter och en mix av olika företag så som tillverknings-, utvecklings-och teknikföretag.

Kommunikationer

Fastigheten är belägen i nära anslutning till E6/E20 och via R40 tar man sig enkelt till Landvetter flygplats. Till Göteborgs centrum tar det ca 10 min med bil och till Mölndals innerstad ca 5 min. Med buss 758 åker man till Mölndals Resecentrum på 5 minuter där tågstation finns för pendeltrafik samt Öresundstrafiken.
Spårvagnshållplats finns vid Krokslätt på ca 10 minuters promenadavstånd och efter ytterligare 20 minuters spårvagnsresa når man centrala Göteborg.

Service

Det finns lunchrestauranger på gångavstånd från fastigheten.
Friskis och Svettis har en friskvårdsanläggning i området.

Området ligger med närhet till Lackarebäcks Naturskyddsområde med fina promenadstråk.

Fastigheten

Fastigheten har ett attraktivt läge i Lackarebäck intill E6/E20 och med närhet till Mölndals innerstad som har genomgått en stor ombyggnad med nya bostäder, flera nyöppnade butiker, restauranger, caféer, bank, apotek, systembolag och all övrig tänkbar service.

  • Egen lastbrygga
  • Lager och vekstad
  • Ljusa kontorsrum

Faciliteter i fastigheten

Lastkaj Parkering

Service i området

Buss

Energi & hållbarhet

  • Total energianvändning (2025): 22 kWh/m²
  • Klimatpåverkan: 3,11 kg CO₂e/m² (platsbaserad)

Andra hyresgäster i fastigheten

Westcomp AB - Ricardo Nordica Aktiebolag - Matseco Aktiebolag - Aventure Group AB - Entric AB - Desyt AB - X-Bert Musik & Måleri - Patrik R Bygg o Industririvning - Göteborgs Scenteknik AB - Stilfullt by Jessika AB

Karta

Dokument

Kontaktperson

Uthyrare

Katarina Uppling

Fråga oss!

Nyfiken på den här lokalen? Eller behöver du hjälp att hitta rätt lokal för din verksamhet? Oavsett om du vet exakt vad du söker eller om du behöver rådgivning, så finns vi här och hjälper till.

Vi ser fram emot att höra av dig.

Intresseanmälan

Kontaktinformation

All behandling av personuppgifter sker i enlighet med dataskyddsförordningen och annan dataskyddslagstiftning. Läs mer om GDPR

Ett eget husteam ingår i hyran

Som hyresgäst hos oss får ni ett lokalt husteam som ser till att ni trivs och att allt fungerar som det ska. Vi hjälper till med allt från fastighetsskötsel och energioptimering till skyltning och parkering. Ingen fråga är för stor eller för liten. Och skulle era behov förändras brukar vi alltid kunna erbjuda en lösning, vad det än gäller. Varmt välkommen till en värd bortom det förväntade.

Liknande lokaler i Mölndal