Gå till huvudinnehåll

Stockholm Bromma/Mariehäll

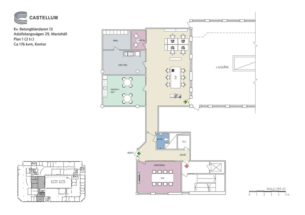
Adolfsbergsvägen 29

Kontor

Yta

176 kvm

Tillträdesdatum

Enl. ök.

Kontorslokal intill Bromma Handel

Modern och flexibel kontorslokal om ca 176 kvm med genomtänkt planlösning i populära Mariehäll. Lokalen erbjuder en ljus och trivsam arbetsmiljö med stora fönster mot en härlig ljusgård. Här finns öppna arbetsytor kombinerat med mötes- och samtalsrum, rymligt konferensrum samt pentry och matplats för sociala pauser. Lokalen är belägen på plan 1 (2 trappor upp) och ger en professionell men samtidigt välkomnande känsla direkt vid entrén.

Läget på Adolfsbergsvägen innebär goda kommunikationer med närhet till både Sundbybergs centrum och Bromma flygplats, samt närhet till service, restauranger och gym. En perfekt lokal för det moderna företaget som värdesätter både funktionalitet och trivsel.

Planlösning

Lokalen omfattar cirka 176 kvm och har en effektiv och modern planlösning som passar ett mindre team. Arbetsytan är disponerad som öppet kontorslandskap med plats för flera arbetsstationer samt kompletterande ytor för samarbete och fokusarbete.

I lokalen finns ett konferensrum i separat del, lämpligt för interna möten och externa besök. Därutöver erbjuds ett samtalsrum för enskilda möten eller koncentrerat arbete. Pentry med mat- och pausyta är placerat i egen del av lokalen och skapar en naturlig samlingspunkt.

Servicefunktionerna består av WC/dusch, el- och teknikrum samt förråd/kopiering. Lokalen har tydlig entré via trapphus och närhet till hiss. Planlösningen är lättorienterad med god balans mellan arbetsytor, mötesrum och gemensamma funktioner.

En yteffektiv kontorslokal som lämpar sig väl för det mindre företaget eller projektteamet som söker ett modernt och funktionellt kontor.

Området

Välkommen till Bromma/Mariehäll, en av Stockholm kommuns största arbetsplatser och ett område som ständigt utvecklas för att bli en förlängning av innerstaden. Beläget vid Bällstaån och gränsande till Sundbyberg, erbjuder detta område en fascinerande mix av kontor, lager och butiker. Inom räckhåll ligger Bromma Blocks, ett imponerande shoppingcenter som inte bara erbjuder en mångfald av butiker utan också ett brett utbud av service. Här finner du allt från shopping och restauranger till andra bekvämligheter. Sundbybergs centrum, en annan närliggande pärla, erbjuder ytterligare möjligheter till shopping, restauranger och en levande stadskärna. Välkommen till Bromma/Mariehäll – där framtid och tradition möts i en pulserande stadsdel!

Kommunikationer

Det går snabbt och lätt att ta sig till Bromma var du än befinner dig. Tvärbanan går ifrån Sickla Udde och genom Bromma, med en hållplats mitt i Mariehäll fram till Solna Station. Området trafikeras av flertalet busslinjer och kopplar ihop Bromma med bland annat Spånga, Alvik, Älvsjö, Solna, Danderyd, Ekerö och Mörby. Sundbyberg som är en stor kommunikationsknutpunkt på gångavstånd erbjuder tunnelbana, pendeltåg och fjärrtåg. Om du färdas med bil är du snabbt ute på lederna med närhet till både E4 och E18.

Parkering

Parkando har hand om driften av parkeringsanläggningen. Det finns möjlighet att antingen hyra fasta platser i garage eller hyra rörliga tillstånd utomhus. Det finns även parkeringsautomater i området för kortare besök. Är du intresserad, kontakta Parkando på telefonnummer 08 408 396 38. Vi vill vara ett hållbart fastighetsföretag och vill göra det enkelt för våra hyresgäster transportera sig miljömedvetet. Är du intresserad av att kunna ladda din elbil på jobbet kan du kontakta din Biträdande förvaltare för mer information.

Service

I området finns både café och restaurang. På café Lilla Hörnan beläget vid Gårdsfogdevägen 3A kan du avnjuta både morgonkaffe med macka samt lunch. På Restaurang Mariehäll beläget runt hörnet på Karlsbodavägen 17C kan du äta högklassig lunch mån-fre. På andra sidan vägen finner ni Bromma Blocks med all tänkbar service - sportbutiker, heminredning, restauranger och gym.

Fastigheten

En av de två huskroppar som fastigheten består av byggdes av bilfirman Lada från forna Sovjetunionen, där de huserade ett antal år. Idag har byggnaderna stora lokaler som är lätta att växa i, det finns även takterrass med utsikt över Bällstaån, i ett område som är under utveckling i och med att Stockholm växer.

Energi & hållbarhet

  • Certifieringar: LEED O+M, Gold, LEED O+M, Silver
  • Total energianvändning (2025): 17 kWh/m²
  • Klimatpåverkan: 0,16 kg CO₂e/m² (platsbaserad)

Andra hyresgäster i fastigheten

JYSK AB - Betongblandaren 13 - Selga brommabutiken - WAGO Sverige AB - teoge - Stockholms kommun - Betongblandaren 13 - IC Control Media & Sport AB - AKG Sverige AB - Åke Sundvall Byggnads AB - Itron Sweden Aktiebolag - High Fidelity CI AB - City Solfilm & Säkerhet i Sverige AB - FIH CREATIONS AB - projektmedia - Ekerö Tak AB

Karta

Dokument

Kontaktperson

Uthyrare

Alan Badareh Marofi

Fråga oss!

Nyfiken på den här lokalen? Eller behöver du hjälp att hitta rätt lokal för din verksamhet? Oavsett om du vet exakt vad du söker eller om du behöver rådgivning, så finns vi här och hjälper till.

Vi ser fram emot att höra av dig.

Intresseanmälan

Kontaktinformation

All behandling av personuppgifter sker i enlighet med dataskyddsförordningen och annan dataskyddslagstiftning. Läs mer om GDPR

Ett eget husteam ingår i hyran

Som hyresgäst hos oss får ni ett lokalt husteam som ser till att ni trivs och att allt fungerar som det ska. Vi hjälper till med allt från fastighetsskötsel och energioptimering till skyltning och parkering. Ingen fråga är för stor eller för liten. Och skulle era behov förändras brukar vi alltid kunna erbjuda en lösning, vad det än gäller. Varmt välkommen till en värd bortom det förväntade.

Liknande lokaler i Stockholm