Gå till huvudinnehåll

Göteborg Lindholmen

Lindholmspiren 7

Kontor

Yta

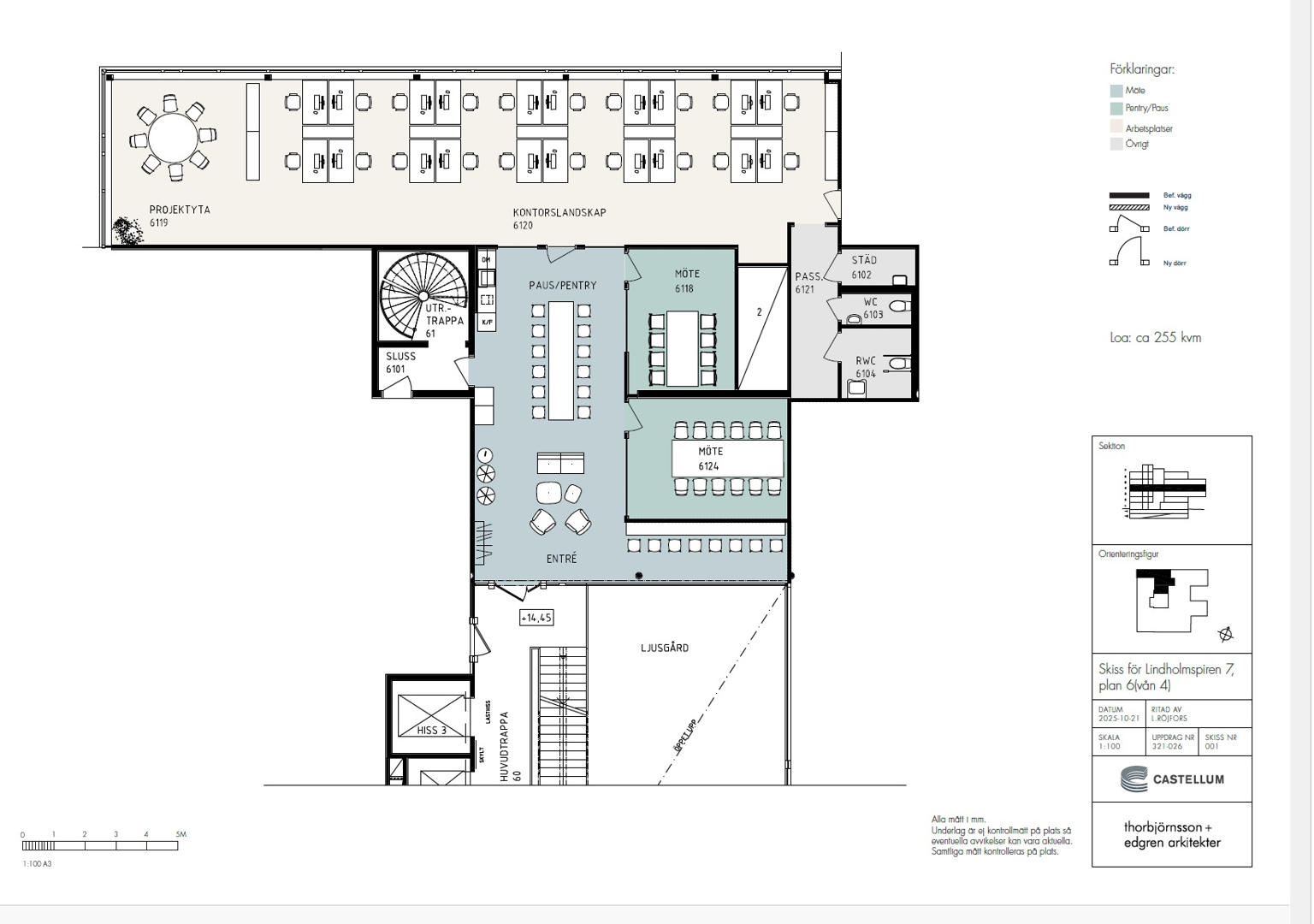
255 kvm

Arbetsplatser

10 - 25 st

Så räknar vi antal arbetsplatser

Detta spann är en uppskattning. Det finns flera faktorer som påverkar hur många arbetsplatser som kan rymmas i en lokal. Inte bara storleken på själva lokalen utan även hur den disponeras. Exempelvis kräver en lokal med många enskilda kontor mer plats än öppen planlösning. Andra begränsningar kan vara tillgången på luft och kyla, eller utrymningsvägar.

Tillträdesdatum

Enl. ök.

Våningsplan

3

Modern och ljus kontorslokal vid kajkanten

I bästa läget på Lindholmen hittar du denna ljusa och moderna lokal. I dagsläget en öppen planlösning med mycket glaspartier. Lokalen kan anpassas efter era specifika önskemål för att uppnå den bästa kreativiteten och resultatet för ert företag. Skapa en lokal som medarbetarna trivs i och känner sig välkomna till.
Vid anpassningar för vi täta dialoger med er, arkitekt och projektledare. Vi försöker alltid ha återbruk och hållbarhet i åtanke i samband med ombyggnad.
Kontoret är beläget precis vid kajkanten där man kan sitta och äta sin lunch eller koppla av med en kopp kaffe. Kan det bli bättre?

Välkommen att kontakta oss för mer info och visning!

Planlösning

Lokalen erbjuder en flexibel och funktionell planlösning som kombinerar öppna ytor med avskilda kontorsrum och konferensrum.

De öppna ytorna ger en luftig miljö där team kan arbeta tillsammans, medan kontorsrummen erbjuder lugna och privata arbetsutrymmen för koncentration och telefonmöten. Här finns även välplanerade konferensrum.

Den blandade planlösningen gör att lokalen kan anpassas för både individuellt arbete och gruppsamverkan, vilket skapar en dynamisk och effektiv arbetsmiljö.

Önskar du en annan utformning av lokalen? -Inga problem! Vi är öppna för förslag för att kunna erbjuda er den bästa lösningen för just ert företag. Vid hyresgästanpassningar försöker vi alltid ha hållbarhet och återbruk i åtanke.

Området

Mitt i hjärtat av Göteborg växer Lindholmen fram som en av Nordens mest dynamiska stadsdelar – en plats där innovation, hållbarhet och stadsliv möts. Här samlas några av världens ledande företag, forskare och kreativa entreprenörer i en unik miljö som andas utveckling och framtidstro.

Lindholmen är navet i Göteborgs kunskapskluster. Med företag inom tech, mobilitet, media och forskning sida vid sida skapas en levande mötesplats som driver regionens tillväxt framåt. Samtidigt erbjuder området moderna bostäder, restauranger vid vattnet, grönskande promenadstråk och en stadspuls som lockar både boende och besökare.

https://www.lindholmeninnovationdistrict.se/sv

Kommunikationer

Kommunikationerna kring Lindholmspiren är svårslagna. Busshållplatsen Lindholmen ligger bara cirka 200 meter från fastigheten, och den nya spårvagnslinjen tas i bruk den 15 december 2025, vilket ytterligare stärker tillgängligheten till och från området.

För den som föredrar vattenvägen går gratisfärjor mellan Lindholmspiren (ca 50 meter från entrén) och Stenpiren mitt i centrala Göteborg – ett snabbt och naturskönt sätt att resa över älven.

Dessutom finns smidig tillgång till E45, E6 och E20 via Lindholmsmotet, vilket gör det enkelt att ta sig vidare både norrut och söderut.

Parkering

Bekväm parkering – oavsett väder

I byggnadens eget garage parkerar du smidigt och tar dig direkt upp till kontoret utan att behöva tänka på vädret. Samtliga platser i garaget är utrustade med elbilsladdare.

I kulverten under huset finns även möjligheter till parkeringsplatser utan elbilsladdare, som Castellum hjälper till att förmedla.

Service

Här finns något för varje smak och tillfälle – från snabba luncher till långa middagar med utsikt över älven. På Lindholmen möts smaker från hela världen, och området bjuder på allt från charmiga caféer till kvällsöppna restauranger och populära takbarer med fantastisk vy.

Med omkring 40 restauranger i området är det enkelt att hitta både gamla favoriter och nya guldkorn – oavsett om det gäller lunch, fika eller afterwork.

Fastigheten

På Lindholmspiren ligger en modern kontorsfastighet uppförd 2017, designad för att möta dagens och morgondagens arbetsbehov. Här kombineras modern arkitektur med generösa ljusinsläpp, flexibla planlösningar och hög teknisk standard.

Högst upp i byggnaden ligger två konferensrum som går att boka för era möten.

  • Vid kajkanten
  • All tänkbar service
  • Härlig miljö

Faciliteter i fastigheten

Restaurang

Service i området

Buss

Energi & hållbarhet

  • Certifieringar: BREEAM New Construction,Excellent
  • Total energianvändning (2025): 22 kWh/m²
  • Klimatpåverkan: 1,71 kg CO₂e/m² (platsbaserad)

Andra hyresgäster i fastigheten

Contornio Lindholmen AB - Getinge AB - Mecenat AB - PS Inkasso & Juridik AB - Kognic AB - Rise Research - 601325 - Oetiker Sweden AB - Irisity AB (Publ) - Fortos Management Consulting AB - Biner Consulting AB - Uptive AB - Consat Digital Solutions AB - Deverything AB

Karta

Dokument

Kontaktperson

Uthyrare

Mathias Grahn

Fråga oss!

Nyfiken på den här lokalen? Eller behöver du hjälp att hitta rätt lokal för din verksamhet? Oavsett om du vet exakt vad du söker eller om du behöver rådgivning, så finns vi här och hjälper till.

Vi ser fram emot att höra av dig.

Intresseanmälan

Kontaktinformation

All behandling av personuppgifter sker i enlighet med dataskyddsförordningen och annan dataskyddslagstiftning. Läs mer om GDPR

Liknande lokaler i Göteborg