Gå till huvudinnehåll

Helsingborg Centrum

Hantverkaregatan 12

Kontor

Yta

1 718 kvm

Arbetsplatser

100 - 150 st

Så räknar vi antal arbetsplatser

Detta spann är en uppskattning. Det finns flera faktorer som påverkar hur många arbetsplatser som kan rymmas i en lokal. Inte bara storleken på själva lokalen utan även hur den disponeras. Exempelvis kräver en lokal med många enskilda kontor mer plats än öppen planlösning. Andra begränsningar kan vara tillgången på luft och kyla, eller utrymningsvägar.

Tillträdesdatum

Enl. ök.

Ledig kontorslokal på Hantverkaregatan i centrala Helsingborg

På Hantverkaregatan 12 finner du en rymlig och flexibel kontorslokal som passar företag som värdesätter lugn, integritet och en arbetsmiljö där fokus får ta plats.

Lokalen har en egen entré direkt från gatan och är fördelad på två våningsplan, vilket skapar naturliga möjligheter att separera olika funktioner eller avdelningar. De många rummen är utrustade med ljudisolering, något som gör miljön särskilt lämplig för verksamheter som har behov av avskildhet, behandlingsrum eller konfidentiella samtal.

Det centrala läget i Helsingborgs gör att ditt företag har nära till både stadens puls och praktisk service. Restauranger, handel och vardagliga bekvämligheter finns inom kort avstånd, vilket skapar en trivsam och funktionell vardag. Samtidigt ligger lokalen i ett område som präglas av lugnare gatumiljöer, vilket ger en behaglig kontrast mellan aktivitet och arbetsro. Närheten till Gustav Adolfs Torg ger dessutom ett levande sammanhang med torghandel, mötesplatser och närhet till Campus.

Lokalen erbjuder både funktion, flexibilitet och en atmosfär som bidrar till ett professionellt men samtidigt välkomnande intryck.

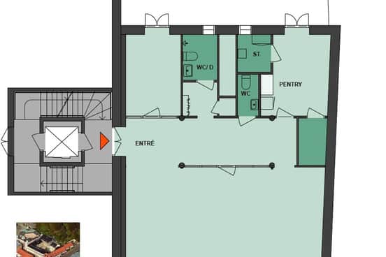
Planlösning

Lokalen är uppdelad på två våningar och erbjuder flera rum i varierande storlekar, flertalet med ljudisolering som skapar god arbetsmiljö. Den egna entrén leder in till en yta som enkelt kan användas som reception, väntrum eller mottagning. Längre in i lokalen finns arbetsrum och mötesrum som passar för både individuellt arbete och mer specialiserade funktioner. Det övre eller undre planet kan användas som en mer avskild del av verksamheten, till exempel behandlingsrum, teamytor eller ostörda kontorsplatser. Planlösningen skapar ett naturligt flöde och gör det lätt att dela upp verksamheten efter behov.

Området

Fastigheten är belägen i direkt anslutning till Gustav Adolfs torg, en aktiv del av Södercity med torghandel, mötesplatser och ett levande stadsliv.
I närområdet finns Campus Helsingborg (Lunds universitet), vilket bidrar till en dynamisk miljö med närhet till studenter, företag och offentlig verksamhet. Området erbjuder en attraktiv mix av handel, service och rekreation.

Kommunikationer

Läget erbjuder goda kommunikationer med flera bussförbindelser i direkt anslutning till fastigheten.
En promenad på cirka 15 minuter tar dig till Helsingborg C (Knutpunkten), där du når tåg-, buss- och färjeförbindelser som knyter samman staden med regionen och Danmark.

Parkering

Fastigheten erbjuder ett tillhörande garage som ger smidig och väderskyddad parkering för hyresgäster.
Därutöver finns parkeringsmöjligheter i närområdet, inklusive korttidsparkering, vilket skapar god tillgänglighet för både besökare och verksamheter i det centrala läget.

Service

I fastighetens närområde finns ett brett och varierat serviceutbud som bidrar till en attraktiv och bekväm vardag för både medarbetare och besökare. Här erbjuds restauranger, caféer, dagligvaruhandel och övrig handel, tillsammans med träningsanläggningar, simhall och olika mötesplatser.
Närheten till Gustav Adolfs torg och Campus Helsingborg bidrar ytterligare till en levande stadsmiljö med god tillgång till både kommersiell och offentlig service.

Fastigheten

Danmark 31 är en centralt belägen fastighet i Södercity som erbjuder funktionella lokaler för kontor och verksamheter. Läget ger goda förutsättningar för företag som vill vara en del av ett levande stadsområde med närhet till service, utbildning och kommunikationer.
Kontorsytorna har tidigare nyttjats av Region Skåne (BUP-verksamhet), vilket innebär att lokalerna har en genomtänkt och funktionell struktur med fokus på god arbetsmiljö. Detta skapar särskilt goda förutsättningar för verksamheter med tydliga flöden och en välorganiserad planlösning.

  • Centralt
  • Ingång via Hantverkargatan
  • Ljudisolerade rum

Faciliteter i fastigheten

Kök

Energi & hållbarhet

  • Certifieringar: BREEAM In-Use, Good
  • Total energianvändning (2025): 10 kWh/m²
  • Klimatpåverkan: 3,62 kg CO₂e/m² (platsbaserad)

Karta

Dokument

Kontaktperson

Uthyrare

Jeanette Zigante

Fråga oss!

Nyfiken på den här lokalen? Eller behöver du hjälp att hitta rätt lokal för din verksamhet? Oavsett om du vet exakt vad du söker eller om du behöver rådgivning, så finns vi här och hjälper till.

Vi ser fram emot att höra av dig.

Intresseanmälan

Kontaktinformation

All behandling av personuppgifter sker i enlighet med dataskyddsförordningen och annan dataskyddslagstiftning. Läs mer om GDPR

Ett eget husteam ingår i hyran

Som hyresgäst hos oss får ni ett lokalt husteam som ser till att ni trivs och att allt fungerar som det ska. Vi hjälper till med allt från fastighetsskötsel och energioptimering till skyltning och parkering. Ingen fråga är för stor eller för liten. Och skulle era behov förändras brukar vi alltid kunna erbjuda en lösning, vad det än gäller. Varmt välkommen till en värd bortom det förväntade.

Liknande lokaler i Helsingborg