Gå till huvudinnehåll

Stockholm Kungsholmen

Warfvinges väg 30

Kontor

Yta

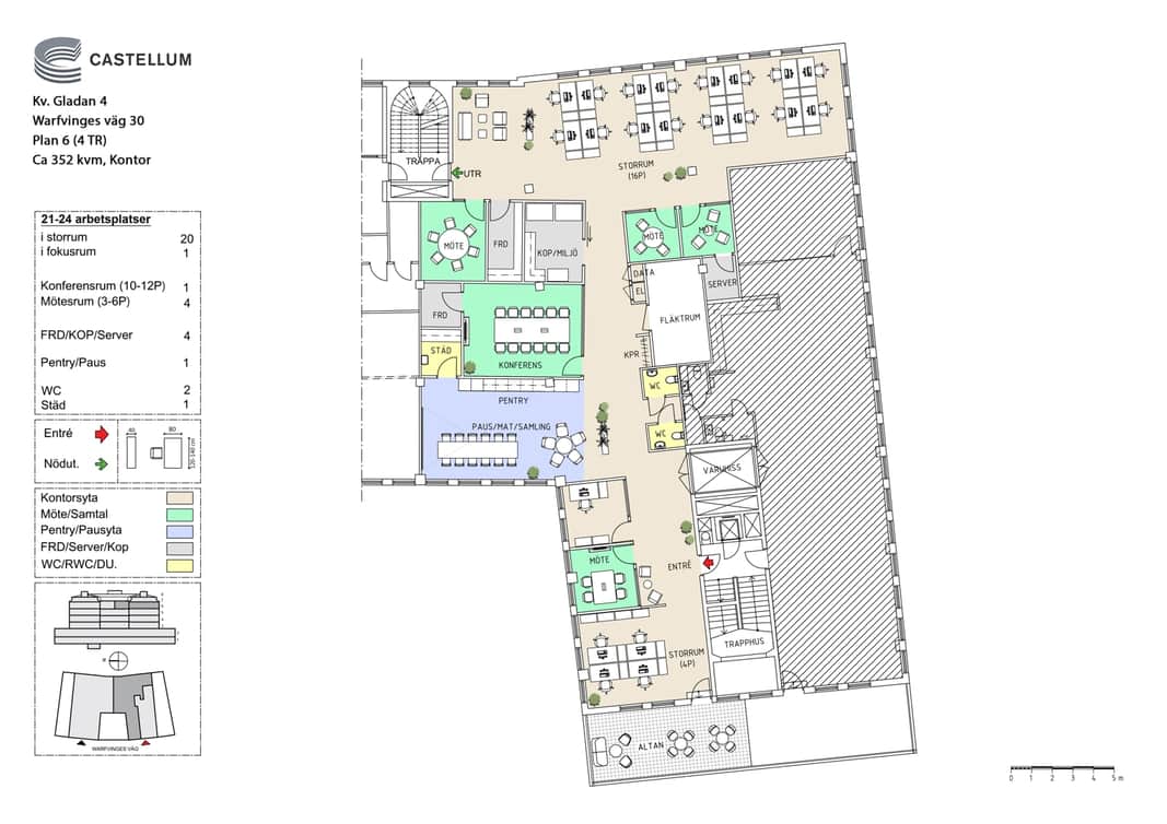
352 kvm

Arbetsplatser

21 - 26 st

Så räknar vi antal arbetsplatser

Detta spann är en uppskattning. Det finns flera faktorer som påverkar hur många arbetsplatser som kan rymmas i en lokal. Inte bara storleken på själva lokalen utan även hur den disponeras. Exempelvis kräver en lokal med många enskilda kontor mer plats än öppen planlösning. Andra begränsningar kan vara tillgången på luft och kyla, eller utrymningsvägar.

Tillträdesdatum

Enl. ök.

Våningsplan

4

Kontor

Detta välplanerade kontor erbjuder flexibla arbetsytor i ett modernt kontorshus med god tillgång till kommunikationer för smidig pendling. Lokalen är utformad för att ge en flexibel arbetsmiljö med en ljus och öppen planlösning samt en terrass för att ta tillvara på sommardagarna. Närheten till populära restaurnager ger goda möjligheter till trevliga luncher och affärsmöten.

Välkommen på visning!

Planlösning

Lokalen erbjuder öppna arbetsytor med flera mötesrum i olika storlekar samt ett större konferensrum. Ett öppet pentry- och pausutrymme ligger i mitten av lokalen. Praktiska ytor som förråd, kopieringsrum, serverrum och tillgång till varuhiss finns välplanerat i lokalen.

Området

Det finns ett hörn av stan där du inte behöver välja. Där du kan vara mitt i vimlet, men också vid sidan av. Där det både finns en rik historia och banbrytande ny, arkitektur. Där du kan koppla upp och ner, äta vietnamesiskt och franskt, spela tennis och dart. Och är mitt i stan, men får så mycket mer för pengarna.

Hörnet vi menar är så klart västra Kungsholmen, stråken mellan Stadshagen och Hornsberg strand för att vara lite mer exakt. Efter många år av intensiv stadsutveckling har den här delen av innerstan fått ett uppsving, med en uppsjö av restauranger, caféer, barer, butiker och folkliv. Men ännu finns här plats för fler. Så alla som både vill äta kakan och ha den kvar, det här är stadsdelen för er.

Välkomna till Kungsholmen.

Kommunikationer

Tunnelbanestationen Stadshagen ligger bara ett stenkast från fastigheten, och området trafikeras även av flera busslinjer. För dig som reser med den gröna linjen ligger Fridhemsplan, Thorildsplan och Kristineberg inom bekvämt promenadavstånd.

Om du cyklar finns väl utbyggda cykelbanor som gör pendlingen smidig. Fastigheten har dessutom ett strategiskt läge vid Essingeleden med lättillgängliga på- och avfarter i både norr- och södergående riktning.

Parkering

Det finns gott om garageplatser i fastigheten och området. Är du intresserad? Kontakta Corepark på telefonnummer 08-650 02 15.

Fastigheten

Denna funkisfastighet har genomgått en varsam renovering och erbjuder nu moderna, flexibla kontorslokaler med välkomnande entréer.

För enkel pendling finns både garage och gemensamma cykel- och omklädningsrum i byggnaden. Dessutom är fastigheten utrustad med två lastkajer, vilket ger utmärkta förutsättningar för smidiga leveranser.

  • Takterrass
  • Goda kummunikationer
  • Moderna lokaler

Faciliteter i fastigheten

Lastkaj Cykelrum Elbilsladdning Garage

Service i området

Buss Tåg

Energi & hållbarhet

  • Total energianvändning (2025): 26 kWh/m²
  • Klimatpåverkan: 2,31 kg CO₂e/m² (platsbaserad)

Andra hyresgäster i fastigheten

VF Sweden AB - Atrium Vårdcentral - Henrik Harlaut Design Group AB - AG Arkitekter AB - Förlagssystem JAL Aktiebolag - Avarn Security AB - Fjärrvärmeprojekt Sverige AB - Region Stockholm, Trafikkontoret - Evidente ES East AB - Eckes-Granini Sverige AB - Bigacom Customer Management AB - Frank Dandy AB - VVS-Metoder Stockholm AB - Nordlys Optik AB - J.A. Lindblads Bokförlag AB - Castellum

Karta

Dokument

Kontaktperson

Uthyrare

Hannah Karlöf

Fråga oss!

Nyfiken på den här lokalen? Eller behöver du hjälp att hitta rätt lokal för din verksamhet? Oavsett om du vet exakt vad du söker eller om du behöver rådgivning, så finns vi här och hjälper till.

Vi ser fram emot att höra av dig.

Intresseanmälan

Kontaktinformation

All behandling av personuppgifter sker i enlighet med dataskyddsförordningen och annan dataskyddslagstiftning. Läs mer om GDPR

Ett eget husteam ingår i hyran

Som hyresgäst hos oss får ni ett lokalt husteam som ser till att ni trivs och att allt fungerar som det ska. Vi hjälper till med allt från fastighetsskötsel och energioptimering till skyltning och parkering. Ingen fråga är för stor eller för liten. Och skulle era behov förändras brukar vi alltid kunna erbjuda en lösning, vad det än gäller. Varmt välkommen till en värd bortom det förväntade.

Liknande lokaler i Stockholm