Gå till huvudinnehåll

Göteborg Hisingen

Exportgatan 47a

Kontor

Yta

541 kvm

Arbetsplatser

25 - 40 st

Så räknar vi antal arbetsplatser

Detta spann är en uppskattning. Det finns flera faktorer som påverkar hur många arbetsplatser som kan rymmas i en lokal. Inte bara storleken på själva lokalen utan även hur den disponeras. Exempelvis kräver en lokal med många enskilda kontor mer plats än öppen planlösning. Andra begränsningar kan vara tillgången på luft och kyla, eller utrymningsvägar.

Tillträdesdatum

Enl. ök.

Våningsplan

3

Kontor med härlig takterrass!

Lokalen har mycket ljusinsläpp med fönster i tre väderstreck och utsikt mot vattnet. Parkeringsplatser intill fastigheten och hiss i båda entréerna. En härligt rymlig takterrass för lunch och fika utomhus under sommarhalvåret och för sociala aktiviteter.

Ta gärna hjälp av oss på Castellum, vi har nycklarna för att utforma en hållbar och attraktiv arbetsplats där medarbetarna mår bra och presterar på topp. I samband med anpassningar försöker vi alltid ha hållbarhet och återbruk i åtanke.

Fastigheten som ligger intill Göta älv har fin utsikt över vattnet. All tänkbar service finns i området och direkt närhet till E6 och vidare förbindelser till andra trafikleder.

Välkommen att kontakta oss för mer information och visning!

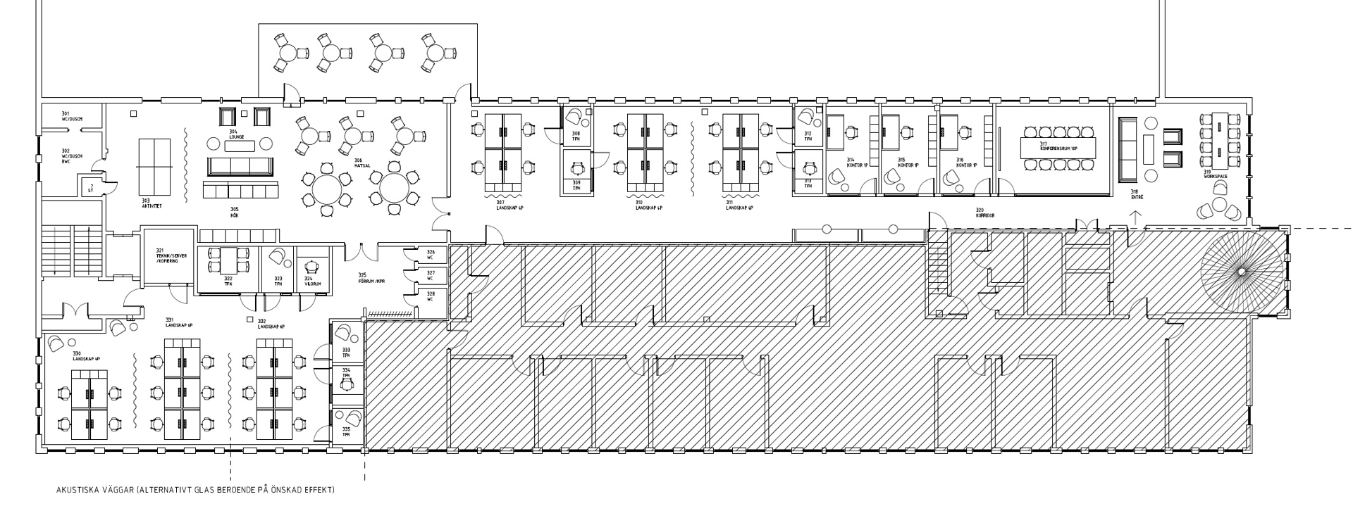
Planlösning

Planlösningen består av öppna ytor och kontorsrum och går att anpassa efter er önskemål och behov.

Området

Trevligt område med all tänkbar service. Fastigheten ligger intill Göta Älv med sjöutsikt

Kommunikationer

Goda bussförbindelser och närhet till E6

Fastigheten

Kontors -och industrifastighet

  • Sjöutsikt
  • Egen brygga
  • Takterrass

Faciliteter i fastigheten

Parkering

Energi & hållbarhet

  • Total energianvändning (2025): 15 kWh/m²
  • Klimatpåverkan: 1,8 kg CO₂e/m² (platsbaserad)

Andra hyresgäster i fastigheten

Euromaster AB - AB Tingstad Rörinstallation

Karta

Dokument

Kontaktperson

Uthyrare

Mathias Grahn

Fråga oss!

Nyfiken på den här lokalen? Eller behöver du hjälp att hitta rätt lokal för din verksamhet? Oavsett om du vet exakt vad du söker eller om du behöver rådgivning, så finns vi här och hjälper till.

Vi ser fram emot att höra av dig.

Intresseanmälan

Kontaktinformation

All behandling av personuppgifter sker i enlighet med dataskyddsförordningen och annan dataskyddslagstiftning. Läs mer om GDPR

Ett eget husteam ingår i hyran

Som hyresgäst hos oss får ni ett lokalt husteam som ser till att ni trivs och att allt fungerar som det ska. Vi hjälper till med allt från fastighetsskötsel och energioptimering till skyltning och parkering. Ingen fråga är för stor eller för liten. Och skulle era behov förändras brukar vi alltid kunna erbjuda en lösning, vad det än gäller. Varmt välkommen till en värd bortom det förväntade.

Liknande lokaler i Göteborg