Gå till huvudinnehåll

Göteborg Centrum

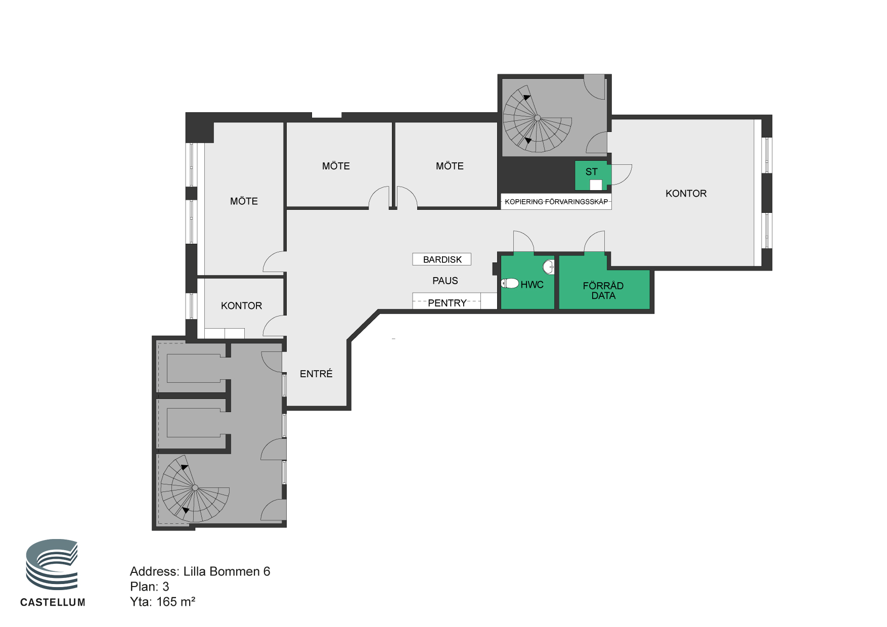
Lilla Bommen 6

Kontor

Hyresindikation

41 000 kr/mån

Detaljerad hyresinformation

Hyra: 490 000 kr/år
Fastighetskatt: 48 510 kr/år
Driftskostnader inklusive el: 31 000 kr/år
Moms tillkommer med 25%

Yta

165 kvm

Arbetsplatser

3 - 11 st

Så räknar vi antal arbetsplatser

Detta spann är en uppskattning. Det finns flera faktorer som påverkar hur många arbetsplatser som kan rymmas i en lokal. Inte bara storleken på själva lokalen utan även hur den disponeras. Exempelvis kräver en lokal med många enskilda kontor mer plats än öppen planlösning. Andra begränsningar kan vara tillgången på luft och kyla, eller utrymningsvägar.

Tillträdesdatum

2026-07-01

Våningsplan

3

Ljus och trevlig kontorlokal

Ett mysigt kontor som har det mesta – flexibilitet, närhet till all tänkbar service. Parkettgolv och glaspartier till rummen, ett kontor att trivas i för medarbetare och kunder.

En kort promenad från Nordstan köpcenter med all tänkbar service.

Låter det här som ett kontor för er? Välkommen att kontakta oss för mer info och visning!

Planlösning

Blandad planlösning med mötesrum, kontorsrum samt ett öppet kontorslandskap.

Området

Det unika vattennära läget mitt i staden, med GöteborgsOperan bara ett stenkast bort och närheten till Centralstationen gör detta till ett av Göteborgs mest attraktiva lägen. Med närhet till restauranger, butiker och andra bekvämligheter blir det enkelt för både medarbetare och kunder att nå din verksamhet. Du har möjligheten att njuta av stadens puls och energi strax utanför dörren.

Smidig access via de stora trafiklederna.

Kommunikationer

Fastigheten ligger i närheten till alla allmänna kommunikationer. På några minuter når du hållplats för buss och spårvagn. Cykelleder finns precis utanför dörren och passagerarbåtarna från Hisingen lägger till vid Lilla Bommens hamn och Stenpiren. Till tågen vid Centralstationen är det några minuters promenad. Där finns även bussterminalen för flygbussar till Landvetter Flygplats samt expressbussar till närområdena kring Göteborg.

Parkering

Garageplatser finns att hyra i byggnaden. Via hissen når man källarplanet där garaget är beläget.

Service

Fastigheten ligger ett stenakst från Nordstan med tillgång till all tänkbar service och butiker som erbjuds i Sveriges tredje största shoppingcenter, Nordstan Affärscentrum.

Fastigheten

Fastighet i åtta våningsplan som består av kontor och ett fåtal butiker. Tegelbyggnad med vissa burspåksfönster.
Garage finns i källarplanet som nås via hiss.
I juni 2022 invigdes Playce, en energisk punkt mitt i Göteborg. En plats för nya möten och inspirerande aktiviteter har vuxit fram mellan husen på Lilla Bommen. Playce är en yta som är till för alla. Det finns gott om sittplatser och trappavsatser att slå sig ner på.

  • Centralt läge
  • All service
  • Lättillgängligt

Faciliteter i fastigheten

Cykelrum Elbilsladdning Garage Restaurang

Service i området

Buss Restaurang Café Hotell Tåg Shopping Gym Spårvagn Färja

Karta

Dokument

Kontaktperson

Uthyrare

Helena Dellborg

Fråga oss!

Nyfiken på den här lokalen? Eller behöver du hjälp att hitta rätt lokal för din verksamhet? Oavsett om du vet exakt vad du söker eller om du behöver rådgivning, så finns vi här och hjälper till.

Vi ser fram emot att höra av dig.

Intresseanmälan

Kontaktinformation

All behandling av personuppgifter sker i enlighet med dataskyddsförordningen och annan dataskyddslagstiftning. Läs mer om GDPR

Liknande lokaler i Göteborg