Nytt kontor 400-835 kvm i totalrenoverad fastighet mitt i Högsbo!
Fastigheten har genomgått en totalrenovering exteriört och entrén är smakfullt renoverad. Lokalytan är idag helt betongren och det finns alla möjligheter att utforma den efter egna önskemål. Ljusinsläpp från fyra väderstreck erbjuder en stimulerande arbetsmiljö. Profilera ditt företag med skylt på fasaden. Parkeringsplatser finns i anslutning till fastigheten. Perfekt läge om du vill ha närhet till centrum men inte sitta mitt i city.
Möjlighet att hyra från ca 400 kvm till ca 835 kvm.
Välkommen att kontakta oss för mer info och visning!
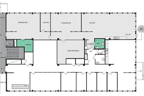
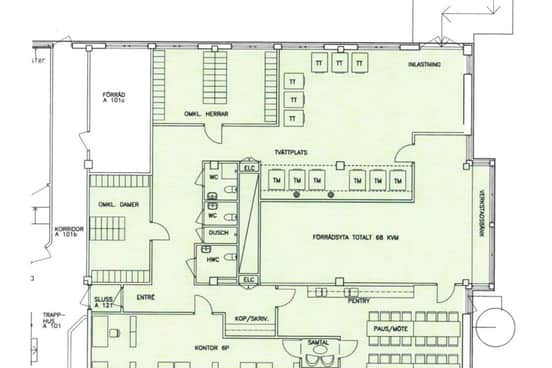
Planlösning
Planlösningen skapas efter era önskemål!
Området
Fastigheten ligger i direkt anslutning till Dag Hammarsköldsleden med fantastiskt skyltläge och ett stenkast till både Frölunda Torg och Köpcenter 421 med såväl service och restauranger. Högsbo genomgår just nu en långsiktig förvandling där man går från att vara ett renodlat industriområde till att bli en blandstad, det vill säga en handels- och mötesplats där många olika verksamheter ryms och där näringsliv samsas med boende, handel, restauranger och samhällsfunktioner av olika slag.
Kommunikationer
Busshållplats precis utanför entrén. Närhet till både Radiomotet och Frölunda Torg och Marklandsgatan.
Service
Omklädningsrum, Besöksparkering
Fastigheten
Nyrenoverad och toppmodern kontorsfastighet
- Modernt
- Flexibel planslöning
- Bra läge
Faciliteter i fastigheten
Service i området
Energi & hållbarhet
- Total energianvändning: 78 kWh / m², år
- Energi CO2-påverkan: 3,9 kg CO₂ / m², år
Andra hyresgäster i fastigheten
Karta
Dokument
Broschyr
Kontaktperson

Nyfiken på den här lokalen? Eller behöver du hjälp att hitta rätt lokal för din verksamhet? Oavsett om du vet exakt vad du söker eller om du behöver rådgivning, så finns vi här och hjälper till.
Vi ser fram emot att höra av dig.