Gå till huvudinnehåll

Göteborg Högsbo/Sisjön

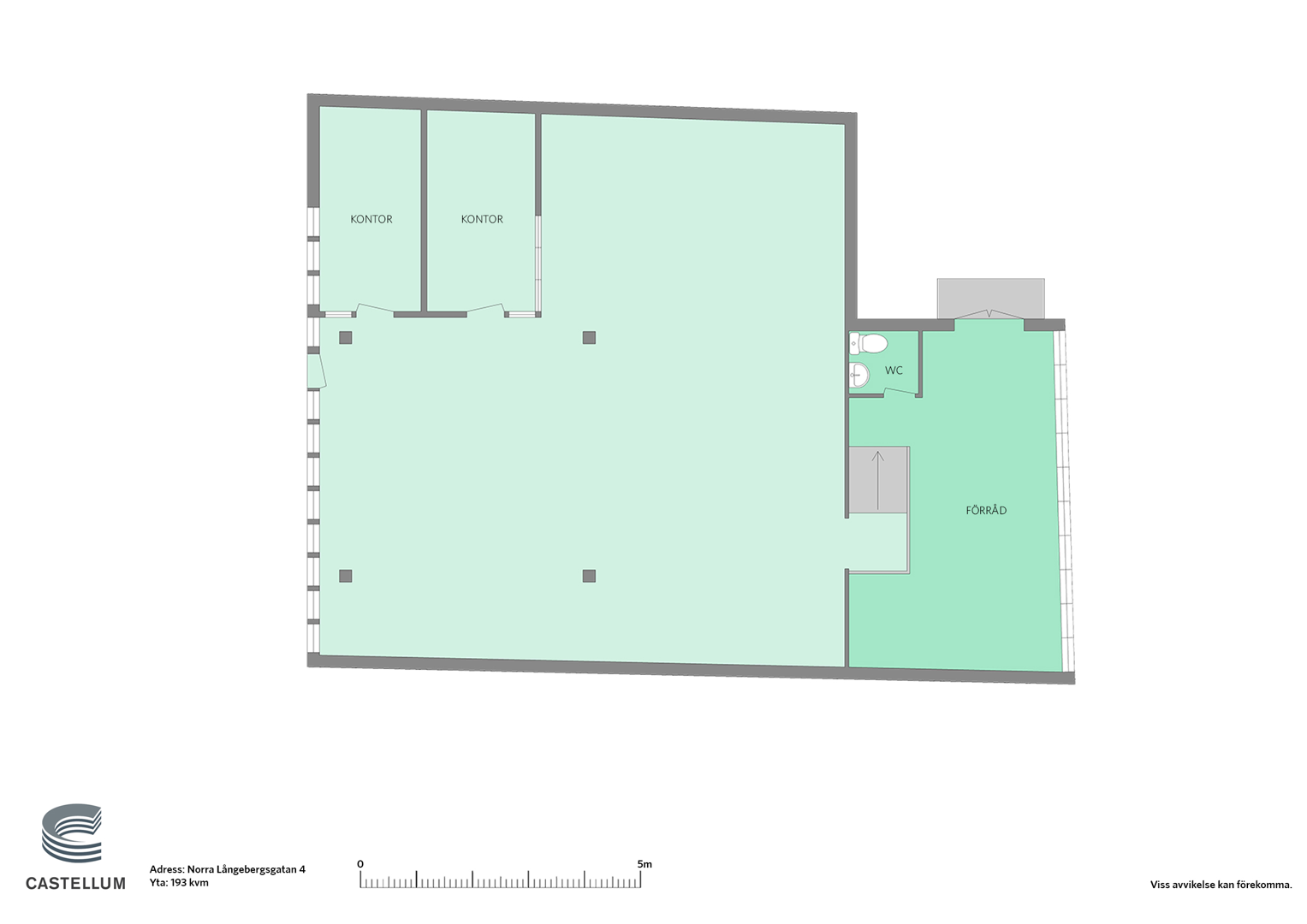
Norra Långebergsgatan 4

Kontor Lager/Logistik

Yta

193 kvm

Arbetsplatser

1 - 5 st

Så räknar vi antal arbetsplatser

Detta spann är en uppskattning. Det finns flera faktorer som påverkar hur många arbetsplatser som kan rymmas i en lokal. Inte bara storleken på själva lokalen utan även hur den disponeras. Exempelvis kräver en lokal med många enskilda kontor mer plats än öppen planlösning. Andra begränsningar kan vara tillgången på luft och kyla, eller utrymningsvägar.

Tillträdesdatum

2026-10-01

Våningsplan

1

Liten kombinationslokal lager och kontor

Välkommen till en enkel lagerlokal med kontorsrum, lagret har en markentré med dubbeldörr 2x2 m samt ett halvt lastintag in till lokalens entrésol.
Till Lastintaget kan man flytta trappan för att få bättre framkomlighet vid leverans.

Välkommen att kontakta oss för mer info och visning!

Planlösning

En stor öppen lageryta samt kontorsrum.

Området

Närområdet kring fastigheten domineras av bilfirmor som sitter i moderna fastigheter med hög standard. Bra exponeringsläge ut mot leden. En ny avfart har kompletterat motet just intill vår fastighet vilket ger goda kommunikationer med bil.

Kommunikationer

Goda möjligheter att resa med kollektivtrafik. Hållplatsen ligger ca 150 m från fastigheten och trafikeras av flera linjer.

Service

Restaurang i grannfastigheten och närhet till Köpcenter 421 med Ica Maxi, butiker och shopping

Fastigheten

Kontorshus i två våningar med stor parkering för hyresgästerna på framsidan, samt en inhägnad markyta för parkering på baksidan.

  • Kontor och lager
  • Halv lastbrygga
  • Lättillgängligt

Faciliteter i fastigheten

Parkering

Service i området

Buss Parkering Restaurang Gym

Energi & hållbarhet

  • Total energianvändning (2025): 12 kWh/m²
  • Klimatpåverkan: 2,18 kg CO₂e/m² (platsbaserad)

Andra hyresgäster i fastigheten

David Brown Santasalo Sweden AB - COBS Aktiebolag - Golvkompaniet i Göteborg AB - Peri Sverige AB - Av-Link Servicepartner AB - APW Bygg & Konsultation AB

Karta

Dokument

Kontaktperson

Uthyrare

Katarina Uppling

Fråga oss!

Nyfiken på den här lokalen? Eller behöver du hjälp att hitta rätt lokal för din verksamhet? Oavsett om du vet exakt vad du söker eller om du behöver rådgivning, så finns vi här och hjälper till.

Vi ser fram emot att höra av dig.

Intresseanmälan

Kontaktinformation

All behandling av personuppgifter sker i enlighet med dataskyddsförordningen och annan dataskyddslagstiftning. Läs mer om GDPR

Ett eget husteam ingår i hyran

Som hyresgäst hos oss får ni ett lokalt husteam som ser till att ni trivs och att allt fungerar som det ska. Vi hjälper till med allt från fastighetsskötsel och energioptimering till skyltning och parkering. Ingen fråga är för stor eller för liten. Och skulle era behov förändras brukar vi alltid kunna erbjuda en lösning, vad det än gäller. Varmt välkommen till en värd bortom det förväntade.

Liknande lokaler i Göteborg