Gå till huvudinnehåll

Jönköping Centrum

Skolgatan 8

Butik Kontor Nyproduktion

Hyresindikation

36 000 kr/mån

Detaljerad hyresinformation

Hyresindikation 36 250 kr per månad inkl drift

Yta

145 kvm

Arbetsplatser

6 - 10 st

Så räknar vi antal arbetsplatser

Detta spann är en uppskattning. Det finns flera faktorer som påverkar hur många arbetsplatser som kan rymmas i en lokal. Inte bara storleken på själva lokalen utan även hur den disponeras. Exempelvis kräver en lokal med många enskilda kontor mer plats än öppen planlösning. Andra begränsningar kan vara tillgången på luft och kyla, eller utrymningsvägar.

Tillträdesdatum

Enl. ök.

Våningsplan

0

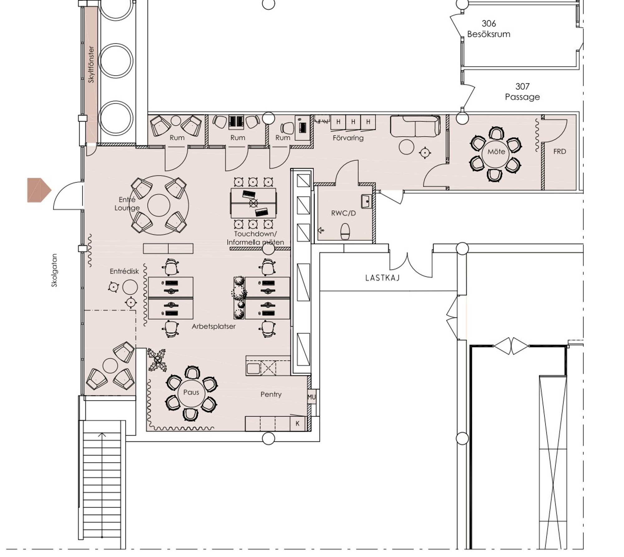
Centralt, modernt och lättillgängligt kontor på Väster

Söker ni en lokal som stärker ert varumärke och förenklar vardagen? Då är denna 145 kvm stora kontorslokal i markplan på Väster i Jönköping ett klockrent val.

Lokalen är nyrenoverad och ljus, med en modern öppen planlösning som kompletteras av välplanerade mötesrum och teamsrum. Perfekt för företag som vill kombinera samarbete, fokus och professionella kundmöten i samma yta.

Läget är svårt att slå. På Väster sitter ni centralt, med utmärkta kommunikationer precis runt hörnet. Medarbetare kan enkelt ta sig hit med tåg eller buss, och för den som kör finns garageparkering i fastigheten.

I samma hus finns gym och mataffär, och i kvarteret väntar ett brett serviceutbud med caféer, lunchställen och shopping – sådant som faktiskt gör skillnad i arbetsdagen.

Kontakta oss för en visning idag!

Området

Stadsdelen Väster har ett stort restaurang- och nöjesutbud. Shoppingmöjligheterna är goda med en stor variation av lokala småbutiker. Parkeringsmöjligheterna är goda med bl.a parkeringshuset Per Brahe.

Kommunikationer

På Väster ligger Resecentrum med tåg- och bussförbindelser. Stadsbussarna trafikerar V. Storgatan som för övrigt är en bilfri väg.

Parkering

I garaget finns parkeringsplatser för husets hyresgäster att hyra. För hyrning av garageplats vänligen kontakta Malin Berglund på Castellum, tel 036-580 11 52. Utomhus finns allmän parkering med P-automat i anslutning till fastigheten.

Service

I närområdet finns all tänkbar service.

Fastigheten

Centralt belägen fastighet uppförd under 1960-talet. Den uthyrningbara ytan uppgår till 19.242 kvm fördelat på åtta våningsplan.

  • Bra kommunikationer
  • Parkering i fastigheten
  • Service i området

Faciliteter i fastigheten

Sopsortering Garage Restaurang Gym

Service i området

Resecentrum Buss Parkering Restaurang Café Hotell Tåg Shopping Gym

Energi & hållbarhet

  • Total energianvändning (2025): 9 kWh/m²
  • Klimatpåverkan: 4,23 kg CO₂e/m² (platsbaserad)

Andra hyresgäster i fastigheten

Scandic Portalen - Atlantis Spa AB - Hemköp - Glädje - Jönköpings kommun-Hotellet 8 - Statens Servicecenter- Hotellet 8 - Columbus Sweden AB - Centrala Trafikinstitutet i Jönköping AB - A Society AB - Hairfashion i Jönköping AB - Mariam Bilal - Jönköpings kommun - Conect Networks & Information Technolog

Karta

Dokument

Kontaktperson

Kommersiell Förvaltare

Fredrik Georgsson

Fråga oss!

Nyfiken på den här lokalen? Eller behöver du hjälp att hitta rätt lokal för din verksamhet? Oavsett om du vet exakt vad du söker eller om du behöver rådgivning, så finns vi här och hjälper till.

Vi ser fram emot att höra av dig.

Intresseanmälan

Kontaktinformation

All behandling av personuppgifter sker i enlighet med dataskyddsförordningen och annan dataskyddslagstiftning. Läs mer om GDPR

Liknande lokaler i Jönköping