Gå till huvudinnehåll

Jönköping Centrum

Trädgårdsgatan 5

Kontor Nyproduktion

Hyresindikation

30 000 kr/mån

Detaljerad hyresinformation

Hyresindikation: 30 450 kr per månad.
Hyran inkluderar driftkostnader såsom; fastgihetsskatt, ventialtion, värme, vatten etc.

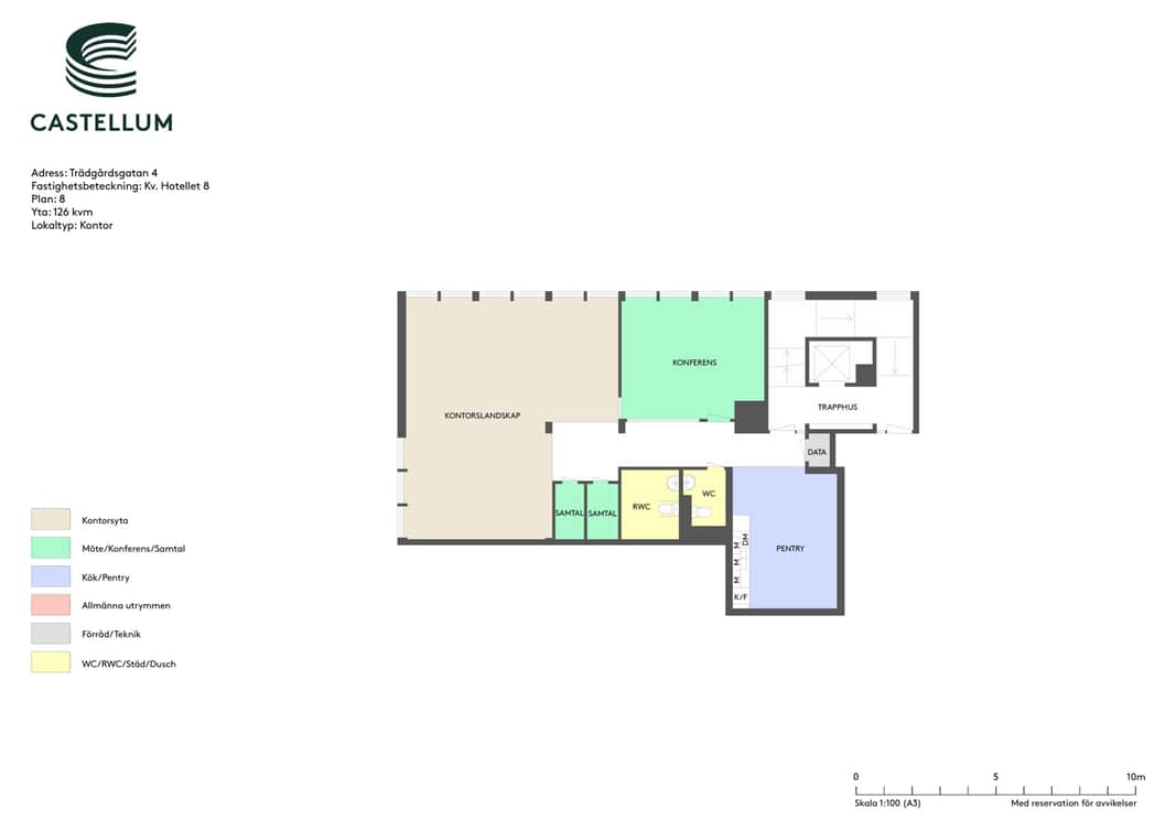
Yta

126 kvm

Arbetsplatser

3 - 14 st

Så räknar vi antal arbetsplatser

Detta spann är en uppskattning. Det finns flera faktorer som påverkar hur många arbetsplatser som kan rymmas i en lokal. Inte bara storleken på själva lokalen utan även hur den disponeras. Exempelvis kräver en lokal med många enskilda kontor mer plats än öppen planlösning. Andra begränsningar kan vara tillgången på luft och kyla, eller utrymningsvägar.

Tillträdesdatum

Enl. ök.

Våningsplan

8

Trädgårdsgatan 5

Central kontorslokal högst upp i huset på våning 8. Här erbjuds ett modernt och fräscht kontor med utsikt över takåsarna i Jönköpings citykärna. Lokalen befinner sig i samma hus som bl.a Scandic och Glädje och är granne till SF Bio.
Dessutom nära till tåg & bussförbindelser samt det breda utbud av närservice som centrala Jönköping erbjuder.

Planlösning

Kontoret lämpar sig väl för arbete i öppet landskap så som det är utformat idag. Kontorslandskapet inrymmer ca 10-12 arbetsplatser med anslutande mötesrum som tidigare varit två mindre samtalsrum. Ytterligare ett större konferensrum med plats för 10-12 personer finns att tillgå i lokalen. Wc & pentry finns i direkt anslutning till entrén.

Området

Stadsdelen Väster har ett stort restaurang- och nöjesutbud. Shoppingmöjligheterna är goda med en stor variation av lokala småbutiker. Parkeringsmöjligheterna är goda med bl.a parkeringshuset Per Brahe.

Kommunikationer

På Väster ligger Resecentrum med tåg- och bussförbindelser. Stadsbussarna trafikerar V. Storgatan som för övrigt är en bilfri väg.

Parkering

I garaget finns parkeringsplatser för husets hyresgäster att hyra. För hyrning av garageplats vänligen kontakta Malin Berglund på Castellum, tel 036-580 11 52. Utomhus finns allmän parkering med P-automat i anslutning till fastigheten.

Service

I närområdet finns all tänkbar service.

Fastigheten

Centralt belägen fastighet uppförd under 1960-talet. Den uthyrningbara ytan uppgår till 19.242 kvm fördelat på åtta våningsplan.

  • Centralt
  • Utsikt
  • Flexibelt

Faciliteter i fastigheten

Garage Restaurang

Service i området

Buss Hotell Tåg

Energi & hållbarhet

  • Total energianvändning (2025): 9 kWh/m²
  • Klimatpåverkan: 4,12 kg CO₂e/m² (platsbaserad)

Andra hyresgäster i fastigheten

Atlantis Spa AB - Hemköp - Glädje - Jönköpings kommun-Hotellet 8 - Statens Servicecenter- Hotellet 8 - Centrala Trafikinstitutet i Jönköping AB - Columbus Sweden AB - A Society AB - Hairfashion i Jönköping AB - Mariam Bilal - Jönköpings kommun - Conect Networks & Information Technolog

Karta

Dokument

Kontaktperson

Uthyrare

Jonas Larsson

Fråga oss!

Nyfiken på den här lokalen? Eller behöver du hjälp att hitta rätt lokal för din verksamhet? Oavsett om du vet exakt vad du söker eller om du behöver rådgivning, så finns vi här och hjälper till.

Vi ser fram emot att höra av dig.

Intresseanmälan

Kontaktinformation

All behandling av personuppgifter sker i enlighet med dataskyddsförordningen och annan dataskyddslagstiftning. Läs mer om GDPR

Ett eget husteam ingår i hyran

Som hyresgäst hos oss får ni ett lokalt husteam som ser till att ni trivs och att allt fungerar som det ska. Vi hjälper till med allt från fastighetsskötsel och energioptimering till skyltning och parkering. Ingen fråga är för stor eller för liten. Och skulle era behov förändras brukar vi alltid kunna erbjuda en lösning, vad det än gäller. Varmt välkommen till en värd bortom det förväntade.

Liknande lokaler i Jönköping