Gå till huvudinnehåll

Göteborg Högsbo/Sisjön

Hulda Mellgrens Gata 1

Kontor

Hyresindikation

15 000 kr/mån

Detaljerad hyresinformation

Hyresindikation i befintligt skick:
Kallhyra: 1550 kr/kvm
Driftkostnad: 120 kr/kvm
Fastighetsskatt 87 kr/kvm
P-tillstånd: 400 kr/månad

Moms om 25% tillkommer

Yta

113 kvm

Arbetsplatser

2 - 6 st

Så räknar vi antal arbetsplatser

Detta spann är en uppskattning. Det finns flera faktorer som påverkar hur många arbetsplatser som kan rymmas i en lokal. Inte bara storleken på själva lokalen utan även hur den disponeras. Exempelvis kräver en lokal med många enskilda kontor mer plats än öppen planlösning. Andra begränsningar kan vara tillgången på luft och kyla, eller utrymningsvägar.

Tillträdesdatum

Enl. ök.

Våningsplan

2

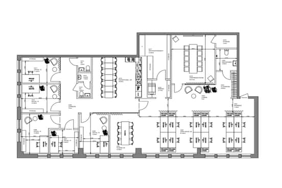
Fint kontor med bra läge och härlig känsla

På våning två finns ett ljust och trivsamt kontor med fyra större rum som passar perfekt som kontor eller konferensrum.

Lokalen har fint ljusinsläpp, glaspartier som skapar rymd och en ljuddämpande textilmatta som ger en lugn och behaglig arbetsmiljö. Planlösningen är yteffektiv och lätt att anpassa efter verksamhetens behov.

I samband med lokalanpassning eller ombyggnad är vår ambition att använda återbrukat material så långt det är möjligt och vi prioriterar hållbarhet för minsta möjliga miljöpåverkan.

Läget är smidigt med enkel access via Söderleden och närhet till köpcentrum 421 med butiker, lunchställen och service. Det finns gott om parkeringsplatser att hyra för 300 kr per månad i direkt anslutning till fastigheten.

Välkommen att kontakta oss för mer information och visning!

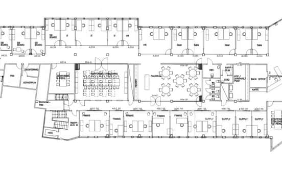
Planlösning

3 st kontorsrum samt 1 st konferensrum. Gemensamhetsytor som pausrum och 1 st wc.

Området

Högsbo är en stadsdel i sydvästra Göteborg, endast några kilometer ifrån stadens centrum. Högsbo har en strategisk placering med en nära sammankoppling till Dag Hammarskjöldsleden, Änggårdsbergen och Söderleden. Det centrala läget med direkt närhet till de stora trafiklederna är en av anledningarna till att området attraherar över 1000 företag i många olika branscher. Området ligger även utanför gränsen för vägtull samt erbjuder cykelavstånd till stadskärnan.

I direkt anslutning till Högsbo, på andra sidan av Söderleden finns även det välkända handels- och industriområdet Sisjön.

Tidigare fungerade Högsbo främst som industri- och verksamhetsområde, karaktären på området har dock genomgått förändringsarbeten under de senaste årtiondena.
Storslagna planer finns för stadsdelen och utvecklingen fortsätter nu ytterligare. I och med anläggandet av kommande bostadsprojekt Södra Änggården, ingår området i ett av de större stads- och utvecklingsprojekten i Göteborg.
Avsikten är att skapa en grön stadsmiljö i direkt anslutning till naturreservatet Änggårdsbergen, en blandstad med upp till 7000 bostäder, arbetsplatser samt all tänkbar service.

På behagligt avstånd från Högsbo finns stora knutpunkter för kollektivtrafik - västerut finns Frölunda Torg, norrut finns Järntorget/Linnéplatsen och österut Mölndals Centrum.

Kommunikationer

De allmänna kommunikationerna utgörs av busslinje 771, 772 och 751 med busshållplats i nära anslutning till fastigheten.

Parkering

Parkeringsmöjligheter finns i anslutning till fastigheten.

Service

Serviceutbudet är stort med tillgång till all typ av närservice i form av banker, post lunchrestauranger, dagligvaruhandel och detaljister!

Högsbo har ett eget köpcentrum 421, där besökare bland annat hittar välkända aktörer såsom ICA Maxi, H & M, MediaMarkt, Hemtex, Dressmann, Intersport och många fler.

Fastigheten

Fastigheten innehåller både kontorsytor och industri/lagerytor.

  • Parkering
  • Nära leden
  • Mysigt

Faciliteter i fastigheten

Parkering

Service i området

Buss

Energi & hållbarhet

  • Total energianvändning (2025): 25 kWh/m²
  • Klimatpåverkan: 2,38 kg CO₂e/m² (platsbaserad)

Andra hyresgäster i fastigheten

Car-O-Liner Group AB - Offitech AB - tre14 Media Group AB - North Sails AB - Rittal AB - ElektronikCentrum Development Sweden AB - Shiloh Industries AB - Scantron AB - J F Johansson Skor Aktiebolag - Benders Byggkraft AB

Karta

Dokument

Kontaktperson

Uthyrare

Katarina Uppling

Fråga oss!

Nyfiken på den här lokalen? Eller behöver du hjälp att hitta rätt lokal för din verksamhet? Oavsett om du vet exakt vad du söker eller om du behöver rådgivning, så finns vi här och hjälper till.

Vi ser fram emot att höra av dig.

Intresseanmälan

Kontaktinformation

All behandling av personuppgifter sker i enlighet med dataskyddsförordningen och annan dataskyddslagstiftning. Läs mer om GDPR

Ett eget husteam ingår i hyran

Som hyresgäst hos oss får ni ett lokalt husteam som ser till att ni trivs och att allt fungerar som det ska. Vi hjälper till med allt från fastighetsskötsel och energioptimering till skyltning och parkering. Ingen fråga är för stor eller för liten. Och skulle era behov förändras brukar vi alltid kunna erbjuda en lösning, vad det än gäller. Varmt välkommen till en värd bortom det förväntade.

Liknande lokaler i Göteborg