Gå till huvudinnehåll

Stockholm Högdalen

Skebokvarnsvägen 370

Kontor

Yta

320 kvm

Tillträdesdatum

Enl. ök.

Våningsplan

3

Ljust kontor med fantastisk terrass

Högst upp i fastigheten hittar du detta trivsamma och ljusa kontor med en härlig terrass som sträcker sig längs hela lokalen. Här får du en unik arbetsmiljö med gott om naturligt ljus och en härlig utomhusyta för möten eller pauser.

Fördelar med lokalen:
✔ Fantastisk terrass längs hela kontoret
✔ Ljus och rymlig planlösning
✔ Representativ entré
✔ Optimalt läge – Högdalens köpcentrum ligger tvärs över gatan

Med närhet till service, butiker och kommunikationer har du allt du behöver för en smidig och inspirerande arbetsdag.

📩 Kontakta oss idag för mer information eller en visning!

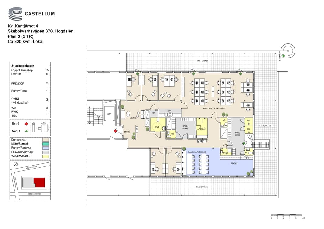
Planlösning

Kontorslokal – ca 320 kvm

Välplanerad kontorslokal högst upp i huset med 21 arbetsplatser, fördelade på öppet kontorslandskap och enskilda kontorsrum. Lokalen erbjuder pentry med paus- och matsal, lounge vid entrén samt flera stödytor såsom förråd/kopiering/IT. Fullt utrustad WC-grupp med RWC samt omklädningsrum med duschar. Stor takterrass i direkt anslutning till lokalen ger ett extra mervärde för pauser och informella möten.

Området

Omgivande byggnader utgörs huvudsakligen av flerbostadshus och förortscentrum med handel. Här är det nära till kommunikationer och service.

Kommunikationer

Fastigheten är belägen ca 10 km från Stockholm City invid Högdalens centrum. I direkt närhet finns Högdalens tunnelbanestation med navet för bussar till Huddinge, Liljeholmen etc.

Service

Högdalens Centrum ligger invid fastigheten, vilket innebär komplett service. Restaurang finns även i byggnaden.

Fastigheten

Kontorsfastighet i Högdalen som är en stadsdel i södra Stockholms.

  • Härlig stor terrass längsmed lokalen
  • Högst upp i fastigheten, fin utsikt
  • Intill Högdalens köpcentrum

Faciliteter i fastigheten

Parkering Restaurang

Service i området

T-bana

Energi & hållbarhet

  • Total energianvändning (2025): 18 kWh/m²
  • Klimatpåverkan: 4,62 kg CO₂e/m² (platsbaserad)

Andra hyresgäster i fastigheten

Cuben Utbildning AB - NR Solskyddsfabriken AB - Restaurang Yin - Speedy Autoservice - GK Ventilation AB - EIE MASKIN Aktiebolag - Frivillig Väntjänst - Berghed Charlotta

Karta

Dokument

Kontaktperson

Uthyrare

Mia Idre

Fråga oss!

Nyfiken på den här lokalen? Eller behöver du hjälp att hitta rätt lokal för din verksamhet? Oavsett om du vet exakt vad du söker eller om du behöver rådgivning, så finns vi här och hjälper till.

Vi ser fram emot att höra av dig.

Intresseanmälan

Kontaktinformation

All behandling av personuppgifter sker i enlighet med dataskyddsförordningen och annan dataskyddslagstiftning. Läs mer om GDPR

Ett eget husteam ingår i hyran

Som hyresgäst hos oss får ni ett lokalt husteam som ser till att ni trivs och att allt fungerar som det ska. Vi hjälper till med allt från fastighetsskötsel och energioptimering till skyltning och parkering. Ingen fråga är för stor eller för liten. Och skulle era behov förändras brukar vi alltid kunna erbjuda en lösning, vad det än gäller. Varmt välkommen till en värd bortom det förväntade.

Liknande lokaler i Stockholm