Gå till huvudinnehåll

Stockholm Kista

Isafjordsgatan 30 A

Kontor

Yta

946 kvm

Arbetsplatser

73 st

Så räknar vi antal arbetsplatser

Detta spann är en uppskattning. Det finns flera faktorer som påverkar hur många arbetsplatser som kan rymmas i en lokal. Inte bara storleken på själva lokalen utan även hur den disponeras. Exempelvis kräver en lokal med många enskilda kontor mer plats än öppen planlösning. Andra begränsningar kan vara tillgången på luft och kyla, eller utrymningsvägar.

Tillträdesdatum

Enl. ök.

Våningsplan

5

Kontor eller utbildning? Du avgör.

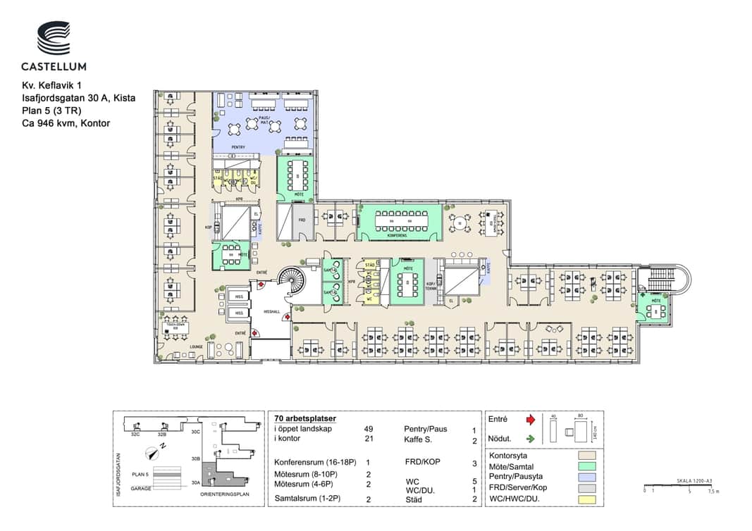
På en central adress i Kista erbjuds en flexibel och modern kontorslokal om 946 kvm, anpassningsbar efter era behov och önskemål. Lokalen passar utmärkt för det större företaget som vill ge sina medarbetare en trivsam och välplanerad arbetsmiljö. Här finns cirka 73 arbetsplatser placerade i ljusa zoner längs fasaden, kompletterade med samtalsrum, ett större mötesrum och generösa ytor för samarbete och fokus.
Pentry och lounge utgör en naturlig samlingspunkt för pauser och spontana möten, medan smart placerade stödfunktioner skapar en effektiv vardag. Fastigheten ligger i ett lugnt läge trots sin direkta närhet till huvudgatan i bubblande Kista centrum, vilket ger en perfekt balans mellan tillgänglighet och arbetsro. Lokalens flexibilitet gör den lika lämpad för traditionellt kontorsarbete som för utbildning och projektbaserade arbetssätt.
Välkommen på visning – här kan ert nästa kapitel ta form.

Planlösning

Lokalen omfattar 946 kvadratmeter och erbjuder en modern, välplanerad arbetsmiljö med god balans mellan öppna ytor och rum för fokus och möten. Här finns cirka 73 arbetsplatser, placerade i ljusa och luftiga zoner längs fasaden för att maximera dagsljus och skapa en trivsam arbetsro. Arbetsstationerna är organiserade i tydliga kluster som stödjer både samarbete och effektivitet i vardagen.
I lokalens mitt finns flera mindre samtalsrum som ger möjlighet till avskildhet när arbetet kräver koncentration eller konfidentiella dialoger. Ett större mötesrum kompletterar utbudet och skapar goda förutsättningar för workshops, presentationer och teammöten. Planlösningen är utformad för att underlätta naturliga flöden genom lokalen, med generösa gångstråk som gör det enkelt att orientera sig.
Pentry- och loungeområdet är placerat nära entrén och fungerar som en social knutpunkt i lokalen. Här finns plats för både lunch, spontana möten och pauser under arbetsdagen. Intill ligger även hygienutrymmen och ett förråd/teknikutrymme som stödjer verksamhetens praktiska behov. En spiraltrappa markerar entrézonen och ger en arkitektonisk karaktär som förstärker lokalens identitet.
Helheten präglas av en genomtänkt struktur där funktionalitet och trivsel går hand i hand. Lokalen erbjuder en flexibel grund som enkelt kan anpassas efter verksamhetens behov och utveckling över tid – en arbetsplats som stödjer både produktivitet och välmående.

Området

Hej, hello, guten tag, ni hao, marhaba. Välkommen till Kista. Platsen där människor från hela världen samlas för att upptäcka, utforska, uppfinna och uppleva. Här testkörs ny teknik, här breder gatukonsten ut sig, här överraskar restaurangerna och här frodas grönska och innovationer, precis som nya förmågor och forskarstjärnor.

Ändå har Kista mer att erbjuda. De närmaste åren kommer stadsdelen få flera tusen nya bostäder och arbetsplatser samt bli en del av tvärbanan, så att livet kan sprudla i varje hörn och under dygnets alla timmar. Och för att ytterligare ta vara på Kistas fulla potential har vi på Castellum gått samman med andra aktörer i ett initiativ som ger stadsdelen en kulturell och social skjuts.

Vad som händer mellan milstolparna är det ingen som vet. Men hör ni hemma bland de nytänkande, är detta platsen för er. Vi lovar att alltid vara på tårna för att hålla jämna steg med både ert företags och Kistas utveckling.

Kommunikationer

Kista är svårslaget om man vill sitta i ett område med bra kommunikationer. Det tar 3 minuter att promenera från fastigheten till Kista tunnelbanestation. Flera busslinjer går genom området, bland annat buss 523 och 178 som stannar vid pendeltågsstationen Helenelund. Du tar dig till Arlanda och Bromma flygplats med pendeltåg eller flygbuss. Snart kommer även Tvärbanan att korsa Kista. Den byggs ut från Norra Ulvsunda via Bromma flygplats.

Service

En kort promenad från fastigheten ligger Kista Galleria. Den är en av Stockholms mest välbesökta gallerior och har ett stort utbud av shopping, restauranger och nöjesaktiviteter - bland annat bowling, bio och gokart.

Fastigheten

En fin och välskött kontorsfastighet med trevliga utemiljöer. Fastigheten är på ca 25 000 kvm. Parkering erbjuds i varmgarage eller utomhus.

Faciliteter i fastigheten

Uteplats Cykelrum Garage

Service i området

Buss Parkering Utegym Restaurang Hotell Shopping Gym T-bana

Energi & hållbarhet

  • Certifieringar: LEED O+M, Silver
  • Total energianvändning (2025): 33 kWh/m²
  • Klimatpåverkan: 3,68 kg CO₂e/m² (platsbaserad)

Andra hyresgäster i fastigheten

Stockholm Kommun - Keflavik 1 - Tibble Campus Kista AB - Järvaskolan AB - Jensen Education Aktiebolag - HRF Hörselskadades Riksförbund - Keflavik 1 - Intel Sweden AB - SSC - Infineon Technologies Nordic AB - Cadence Design Systems AB - Kista Stars International Preschool AB - SOS Alarm - Keflavik 1 - International Preschool Kista AB - El Birria Group AB - Onsemi - Iris Hadar AB - Ingate Systems AB - Järva Ungdomsmottagning - RoyalTable AB - AKG Sverige AB - Radio Evolution Sweden AB - Järva Unga Beroendecentrum - Gateway Digital Sweden AB - Balanced Competence Sweden AB - Kista Rekond - CommScope Sweden AB - Svenska TakVisionärerna AB - Retail 24 - Telpartner Sverige AB - Returab Sverige Aktiebolag - Xclusive Idrott & Kulturförening - Base of Trade Stockholm AB - Abonos omsorg AB - Aviareps AB - Dicentia AB - ABD Bygg AB - Lyx lampor i Göteborg AB - Glowly AB - Dromator Service AB

Karta

Dokument

Kontaktperson

Uthyrare

Rolf Marias

Fråga oss!

Nyfiken på den här lokalen? Eller behöver du hjälp att hitta rätt lokal för din verksamhet? Oavsett om du vet exakt vad du söker eller om du behöver rådgivning, så finns vi här och hjälper till.

Vi ser fram emot att höra av dig.

Intresseanmälan

Kontaktinformation

All behandling av personuppgifter sker i enlighet med dataskyddsförordningen och annan dataskyddslagstiftning. Läs mer om GDPR

Ett eget husteam ingår i hyran

Som hyresgäst hos oss får ni ett lokalt husteam som ser till att ni trivs och att allt fungerar som det ska. Vi hjälper till med allt från fastighetsskötsel och energioptimering till skyltning och parkering. Ingen fråga är för stor eller för liten. Och skulle era behov förändras brukar vi alltid kunna erbjuda en lösning, vad det än gäller. Varmt välkommen till en värd bortom det förväntade.

Liknande lokaler i Stockholm