Gå till huvudinnehåll

Stockholm Kista

Isafjordsgatan 30 C

Kontor

Yta

580 kvm

Tillträdesdatum

Enl. ök.

Modern och flexibel vårdlokal i Kista

Upptäck denna unika vårdlokal på Isafjordsgatan 30C, strategiskt belägen i hjärtat av Kista. Med en total yta på 572 m², erbjuder denna lokal en modern och effektiv arbetsmiljö för vårdpersonal och patienter.

Lokalen erbjuder idag över 14 mottagningsrum som är delvis nyrenoverade, reception, kontors-/behandlingsrum, omklädningsrum, konferensrum, pentry och pausrum.

Lokalen har två separata entréer och möjligheten att delas upp för ökad flexibilitet. Den är belägen högt upp på plan 5, vilket ger en tyst och rofylld miljö med rikligt ljusinsläpp från de många fönstren.

Kista är en idealisk plats för din verksamhet, med sitt centrala läge i en dynamisk stadsdel som erbjuder både närhet till företag och innovation samt en livfull atmosfär med shopping, restauranger och grönområden. Kista tunnelbanestation ligger bara några minuters promenad bort, vilket gör pendlingen smidig för både anställda och besökare.

Missade inte chansen att hyra denna fantastiska vårdlokal. Kontakta oss idag för att boka en visning och upptäck potentialen för din verksamhet i Kista.

Välkommen på visning!

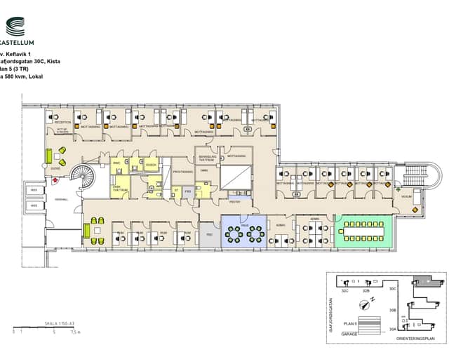
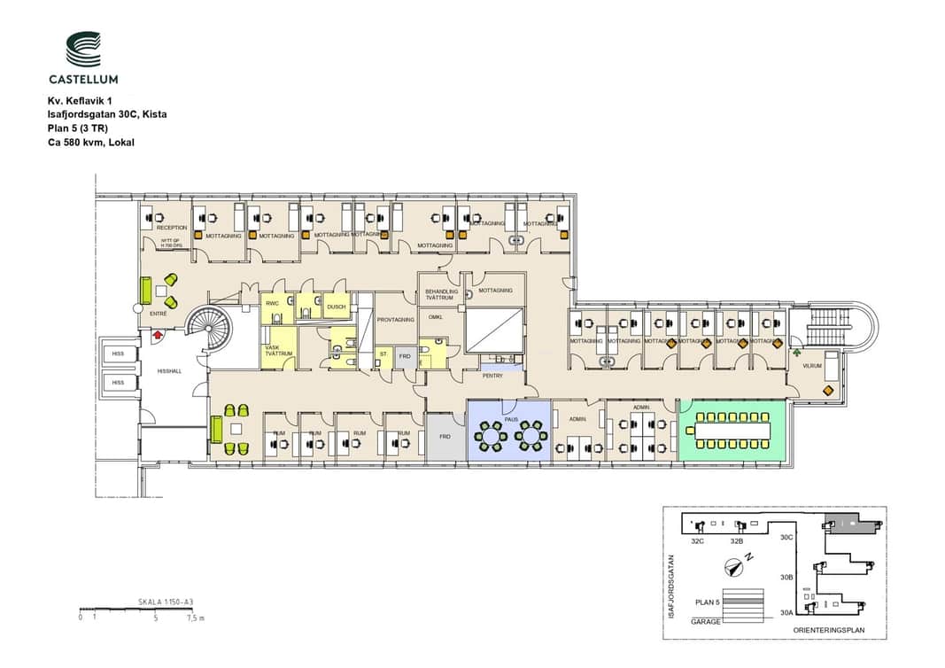
Planlösning

Planlösningen visar en 580 m² stor kontorsyta med en central korridor som leder till mötesrum, arbetsrum och sociala ytor placerade längs båda sidor. I ena delen finns öppna samarbetsytor och konferensrum, medan den andra delen rymmer fler enskilda kontorsrum och stödytor.

Området

Hej, hello, guten tag, ni hao, marhaba. Välkommen till Kista. Platsen där människor från hela världen samlas för att upptäcka, utforska, uppfinna och uppleva. Här testkörs ny teknik, här breder gatukonsten ut sig, här överraskar restaurangerna och här frodas grönska och innovationer, precis som nya förmågor och forskarstjärnor.

Ändå har Kista mer att erbjuda. De närmaste åren kommer stadsdelen få flera tusen nya bostäder och arbetsplatser samt bli en del av tvärbanan, så att livet kan sprudla i varje hörn och under dygnets alla timmar. Och för att ytterligare ta vara på Kistas fulla potential har vi på Castellum gått samman med andra aktörer i ett initiativ som ger stadsdelen en kulturell och social skjuts.

Vad som händer mellan milstolparna är det ingen som vet. Men hör ni hemma bland de nytänkande, är detta platsen för er. Vi lovar att alltid vara på tårna för att hålla jämna steg med både ert företags och Kistas utveckling.

Kommunikationer

Kista är svårslaget om man vill sitta i ett område med bra kommunikationer. Det tar 3 minuter att promenera från fastigheten till Kista tunnelbanestation. Flera busslinjer går genom området, bland annat buss 523 och 178 som stannar vid pendeltågsstationen Helenelund. Du tar dig till Arlanda och Bromma flygplats med pendeltåg eller flygbuss. Snart kommer även Tvärbanan att korsa Kista. Den byggs ut från Norra Ulvsunda via Bromma flygplats.

Service

En kort promenad från fastigheten ligger Kista Galleria. Den är en av Stockholms mest välbesökta gallerior och har ett stort utbud av shopping, restauranger och nöjesaktiviteter - bland annat bowling, bio och gokart.

Fastigheten

En fin och välskött kontorsfastighet med trevliga utemiljöer. Fastigheten är på ca 25 000 kvm. Parkering erbjuds i varmgarage eller utomhus.

  • Unik vårdlokal
  • Ljus lokal högst upp i huset
  • Flexibel planlösning

Faciliteter i fastigheten

Parkering Garage

Service i området

Buss Parkering Restaurang Café Shopping Gym

Energi & hållbarhet

  • Certifieringar: LEED O+M, Silver
  • Total energianvändning (2025): 33 kWh/m²
  • Klimatpåverkan: 3,68 kg CO₂e/m² (platsbaserad)

Andra hyresgäster i fastigheten

Stockholm Kommun - Keflavik 1 - Tibble Campus Kista AB - Järvaskolan AB - Jensen Education Aktiebolag - HRF Hörselskadades Riksförbund - Keflavik 1 - Intel Sweden AB - SSC - Infineon Technologies Nordic AB - Cadence Design Systems AB - Kista Stars International Preschool AB - SOS Alarm - Keflavik 1 - International Preschool Kista AB - El Birria Group AB - Onsemi - Iris Hadar AB - Ingate Systems AB - Järva Ungdomsmottagning - RoyalTable AB - AKG Sverige AB - Radio Evolution Sweden AB - Järva Unga Beroendecentrum - Gateway Digital Sweden AB - Balanced Competence Sweden AB - Kista Rekond - CommScope Sweden AB - Svenska TakVisionärerna AB - Retail 24 - Telpartner Sverige AB - Returab Sverige Aktiebolag - Xclusive Idrott & Kulturförening - Base of Trade Stockholm AB - Abonos omsorg AB - Aviareps AB - Dicentia AB - ABD Bygg AB - Lyx lampor i Göteborg AB - Glowly AB - Dromator Service AB

Karta

Dokument

Kontaktperson

Uthyrare

Rolf Marias

Fråga oss!

Nyfiken på den här lokalen? Eller behöver du hjälp att hitta rätt lokal för din verksamhet? Oavsett om du vet exakt vad du söker eller om du behöver rådgivning, så finns vi här och hjälper till.

Vi ser fram emot att höra av dig.

Intresseanmälan

Kontaktinformation

All behandling av personuppgifter sker i enlighet med dataskyddsförordningen och annan dataskyddslagstiftning. Läs mer om GDPR

Ett eget husteam ingår i hyran

Som hyresgäst hos oss får ni ett lokalt husteam som ser till att ni trivs och att allt fungerar som det ska. Vi hjälper till med allt från fastighetsskötsel och energioptimering till skyltning och parkering. Ingen fråga är för stor eller för liten. Och skulle era behov förändras brukar vi alltid kunna erbjuda en lösning, vad det än gäller. Varmt välkommen till en värd bortom det förväntade.

Liknande lokaler i Stockholm