Härlig kontorslokal ljusinsläpp från tre väderstreck
Lokalen är belägen i vår populära fastighet Kista One som ligger precis intill Kista Galleria.
Med detta får närhet till både service och kommunikationer samt ett brett urval av restauranger.
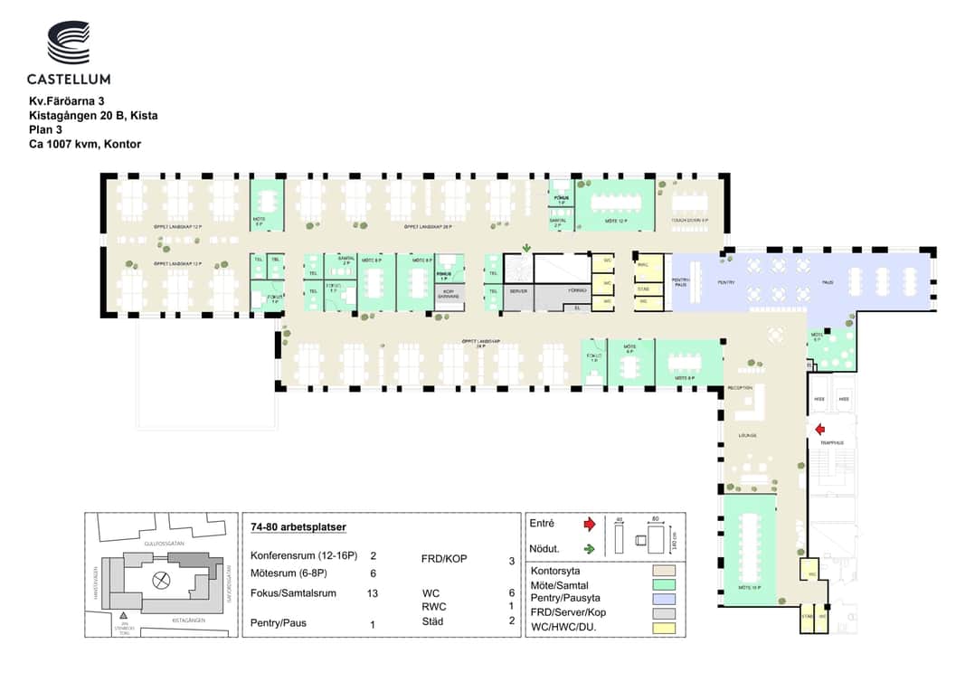
Lokalen har ett härligt ljusinsläpp från tre väderstreck. Bortsett från pentry och toaletter är den idag stomren, vilket skapar optimala förutsättningar för att tillsammans med er utforma kontoret och dess planlösning för just er verksamhet.
Varmt välkomna på visning!
Området
Hej, hello, guten tag, ni hao, marhaba. Välkommen till Kista. Platsen där människor från hela världen samlas för att upptäcka, utforska, uppfinna och uppleva. Här testkörs ny teknik, här breder gatukonsten ut sig, här överraskar restaurangerna och här frodas grönska och innovationer, precis som nya förmågor och forskarstjärnor. Ändå har Kista mer att erbjuda. De närmaste åren kommer stadsdelen få flera tusen nya bostäder och arbetsplatser samt bli en del av tvärbanan, så att livet kan sprudla i varje hörn och under dygnets alla timmar. Och för att ytterligare ta vara på Kistas fulla potential har vi på Castellum gått samman med andra aktörer i ett initiativ som ger stadsdelen en kulturell och social skjuts. Vad som händer mellan milstolparna är det ingen som vet. Men hör ni hemma bland de nytänkande, är detta platsen för er. Vi lovar att alltid vara på tårna för att hålla jämna steg med både ert företags och Kistas utveckling.
Kommunikationer
Kista är svårslaget om man vill sitta i ett område med bra kommunikationer. Det tar 3 minuter att promenera från fastigheten till Kista tunnelbanestation. Flera busslinjer går genom området, bland annat buss 523 och 178 som stannar vid pendeltågsstationen Helenelund. Du tar dig till Arlanda och Bromma flygplats med pendeltåg eller flygbuss. Snart kommer även Tvärbanan att korsa Kista. Just nu byggs den ut från Norra Ulvsunda via Bromma flygplats till Ursvik för att sedan fortsätta till Kista och Helenelund.
Service
Som hyresgäst på Kista One får du tillgång till en rad olika tjänster som förenklar vardagen för dig och dina kollegor. De två bemannade receptionerna vid huvudentréerna erbjuder receptionsservice och uthyrning av gemensamma konferensrum. Ett fullt utrustat fastighetsgym som drivs av Motion Studios är öppet för samtliga hyresgäster. Garage och separat cykelrum finns i fastigheten och hissar går direkt mellan de olika planen. Där finns laddningsstationer för elbilar och elcyklar tillsammans med tryckluft för pumpning av däck. I garaget erbjuds också biltvätt med service. Kista One erbjuder nu ett nytt gym och en rad andra bekvämligheter för hyresgästerna – allt för att underlätta och höja vardagsupplevelsen i fastigheten. En kort promenad från fastigheten ligger Kista Galleria. Den är en av Stockholms mest välbesökta gallerior och har ett stort utbud av shopping, restauranger och nöjesaktiviteter - bland annat bowling, bio och gokart.
Fastigheten
Fastigheten Kista One är platsen för alla. Vi erbjuder en rad olika kontorslösningar med ett serviceutbud som innehåller allt ett företag behöver. Med två bemannade receptioner och fyra konferensrum, som drivs av teamet på I Know A Guy, sträcker sig vår service från effektiv posthantering till professionell eventplanering, och såklart allt där emellan! På innergården har vi skapat en inbjudande miljö med mängder av sittplatser, en terrass och massor av grönytor. Dessutom har Fastigheten Kista One investerat i hållbarhet. Med en solcellsanläggning, geoanläggning och en egen biodling strävar vi mot att minska vår påverkan på miljön. Vår fastighet är stolt certifierad som LEED Gold, vilket understryker vårt engagemang för hållbarhet och miljöansvar.
- Närhet till service och kommunikationer
Faciliteter i fastigheten
Service i området
Energi & hållbarhet
- Laddplatser & solceller
- Hållbarhetscertifiering: LEED New Construction, Gold
- Total energianvändning: 49 kWh / m², år
- Energi CO2-påverkan: 0,1 kg CO₂ / m², år
Andra hyresgäster i fastigheten
Excillum AB - Enea AB - ACO Hud Nordic AB - Regus - Permobil Aktiebolag - Cellmax Technologies AB - Signify Sweden AB - Sigma Connectivity WSI AB - Pirelli Tyre Nordic Aktiebolag - Wind River AB - Joyweek - Grenkeleasing AB - Responda Group AB - Synoptik - Tillmobil i Norden AB - Analog Devices AB - Sylog Sverige AB - Mama Mia - MACOM - Hamilton Nordic AB - Comfort-Kedjan AB - Higher Self Kista AB Konkurs 241223 - Akkodis Edge Sweden AB - BayWa r.e. Solar Systems Filial - Nefab Aktiebolag - Castellum Stockholm AB - Bitlog Nordic AB - Init Sweden AB - Sunway Communication AB - ResMed Sweden AB - T2 Data Aktiebolag - AB Electrolux - Altegra Consulting AB - Microchip Technology Sweden AB - Photomate Scandinavia AB - Excedo Networks AB - Global House AB - Swereco AB - VFS Global Sweden AB - Nordic Bulkers AB - Innophase IoT AB - Holy Greens AB - Bramsburgers AB - TeraSi AB
Karta
Dokument
Kontaktperson

Nyfiken på den här lokalen? Eller behöver du hjälp att hitta rätt lokal för din verksamhet? Oavsett om du vet exakt vad du söker eller om du behöver rådgivning, så finns vi här och hjälper till.
Vi ser fram emot att höra av dig.