Gå till huvudinnehåll

Stockholm Kista

Kistagången 20B

Kontor

Yta

633 kvm

Arbetsplatser

20 - 37 st

Så räknar vi antal arbetsplatser

Detta spann är en uppskattning. Det finns flera faktorer som påverkar hur många arbetsplatser som kan rymmas i en lokal. Inte bara storleken på själva lokalen utan även hur den disponeras. Exempelvis kräver en lokal med många enskilda kontor mer plats än öppen planlösning. Andra begränsningar kan vara tillgången på luft och kyla, eller utrymningsvägar.

Tillträdesdatum

Enl. ök.

Modern kontorslokal med eget lastintag

I denna populära fastighet, Kista One, finns denna moderna kontorslokal med lagerdel. Kontoret har direkt lastintag in i lokalen.

Lokalen ligger i centrala Kista och erbjuder rikligt med ljusinsläpp från två väderstreck. Från lagret finns en lasthiss som går direkt upp till kontoret, vilket underlättar smidiga logistiklösningar. Det finns också en lastkaj med bra avlastningsyta som gör det enkelt att hantera större leveranser och försändelser.

Lagerytan kan även användas som ett showroom, med en ingång från Kistagången, vilket ger möjlighet att marknadsföra era produkter samtidigt som man har nära tillgång till kontoret.

I fastighetens bottenplan finns restauranger, en gemensam reception och mötesrum.

Kista One ligger precis intill Kista galleria där ni finner ett brett utbud av service, restauranger och närhet till kommunikationer.

Lokalen är möjlig att anpassa helt efter era behov, önskemål och verksamhet.

Varmt välkomna på visning!

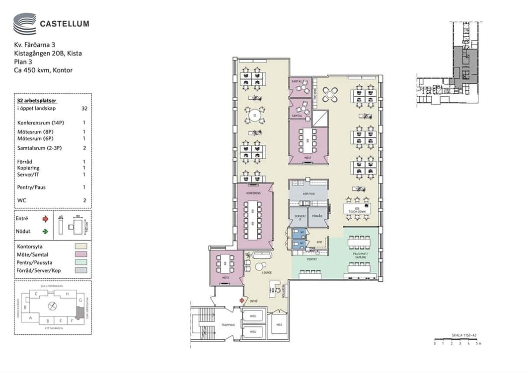
Planlösning

Planlösningen erbjuder ett öppet kontorslandskap med 32 arbetsplatser, kompletterat med flera mötes- och samtalsrum samt rymliga sociala ytor. Här finns också pentry, lounge, förråd och IT‑rum, utformade för ett effektivt och modernt arbetsflöde.

Området

Välkommen till Kista. Platsen där människor från hela världen samlas för att upptäcka, utforska, uppfinna och uppleva. Här testkörs ny teknik, här breder gatukonsten ut sig, här överraskar restaurangerna och här frodas grönska och innovationer, precis som nya förmågor och forskarstjärnor.

Ändå har Kista mer att erbjuda. De närmaste åren kommer stadsdelen få flera tusen nya bostäder och arbetsplatser samt bli en del av tvärbanan, så att livet kan sprudla i varje hörn och under dygnets alla timmar. Och för att ytterligare ta vara på Kistas fulla potential har vi på Castellum gått samman med andra aktörer i ett initiativ som ger stadsdelen en kulturell och social skjuts.

Vad som händer mellan milstolparna är det ingen som vet. Men hör ni hemma bland de nytänkande, är detta platsen för er. Vi lovar att alltid vara på tårna för att hålla jämna steg med både ert företags och Kistas utveckling.

Kommunikationer

Kista är svårslaget om man vill sitta i ett område med bra kommunikationer. Det tar 3 minuter att promenera från fastigheten till Kista tunnelbanestation. Flera busslinjer går genom området, bland annat buss 523 och 178 som stannar vid pendeltågsstationen Helenelund. Du tar dig till Arlanda och Bromma flygplats med pendeltåg eller flygbuss. Snart kommer även Tvärbanan att korsa Kista. Just nu byggs den ut från Norra Ulvsunda via Bromma flygplats till Ursvik för att sedan fortsätta till Kista och Helenelund.

Service

Som hyresgäst på Kista One får du tillgång till en rad olika tjänster som förenklar vardagen för dig och dina kollegor. De två bemannade receptionerna vid huvudentréerna erbjuder receptionsservice och uthyrning av gemensamma konferensrum. Ett fullt utrustat fastighetsgym som drivs av Motion Studios är öppet för samtliga hyresgäster. Garage och separat cykelrum finns i fastigheten och hissar går direkt mellan de olika planen. Där finns laddningsstationer för elbilar och elcyklar tillsammans med tryckluft för pumpning av däck. I garaget erbjuds också biltvätt med service.

Kista One erbjuder nu ett nytt gym och en rad andra bekvämligheter för hyresgästerna – allt för att underlätta och höja vardagsupplevelsen i fastigheten.

En kort promenad från fastigheten ligger Kista Galleria. Den är en av Stockholms mest välbesökta gallerior och har ett stort utbud av shopping, restauranger och nöjesaktiviteter - bland annat bowling, bio och gokart.

Fastigheten

Fastigheten Kista One är platsen för alla. Vi erbjuder en rad olika kontorslösningar med ett serviceutbud som innehåller allt ett företag behöver. Med två bemannade receptioner och fyra konferensrum, som drivs av teamet på I Know A Guy, sträcker sig vår service från effektiv posthantering till professionell eventplanering, och såklart allt där emellan!

På innergården har vi skapat en inbjudande miljö med mängder av sittplatser, en terrass och massor av grönytor. Dessutom har Fastigheten Kista One investerat i hållbarhet. Med en solcellsanläggning, geoanläggning och en egen biodling strävar vi mot att minska vår påverkan på miljön. Vår fastighet är stolt certifierad som LEED Gold, vilket understryker vårt engagemang för hållbarhet och miljöansvar.

  • Närhet till service och kommunikationer
  • Lastintag direkt in i lokalen

Faciliteter i fastigheten

Lastkaj Elbilsladdning Reception

Service i området

T-bana

Energi & hållbarhet

  • Certifieringar: LEED New Construction, Gold
  • Total energianvändning (2025): 35 kWh/m²
  • Klimatpåverkan: 0,27 kg CO₂e/m² (platsbaserad)

Andra hyresgäster i fastigheten

Excillum AB - ACO Hud Nordic AB - Regus - Cellmax Technologies AB - Signify Sweden AB - Sigma Connectivity WSI AB - Pirelli Tyre Nordic Aktiebolag - Wind River AB - Joyweek - Grenkeleasing AB - Responda Group AB - Synoptik - Tillmobil i Norden AB - Analog Devices AB - Mama Mia - MACOM - Hamilton Nordic AB - Comfort-Kedjan AB - Akkodis Edge Sweden AB - TeraSi AB - Nefab Aktiebolag - Castellum Stockholm AB - Din Vårdcentral i Stockholm AB - Bitlog Nordic AB - Init Sweden AB - Sunway Communication AB - ResMed Sweden AB - T2 Data Aktiebolag - Altegra Consulting AB - Microchip Technology Sweden AB - Photomate Scandinavia AB - Retail 24 - Excedo Networks AB - Global House AB - Swereco AB - VFS Global Sweden AB - Nordic Bulkers AB - Innophase IoT AB - Holy Greens AB - Bramsburgers AB - Audika AB - Färöarna 3 - Molex Sweden - Intersurgical AB - Ugglan Dental

Karta

Dokument

Kontaktperson

Uthyrare

Rolf Marias

Fråga oss!

Nyfiken på den här lokalen? Eller behöver du hjälp att hitta rätt lokal för din verksamhet? Oavsett om du vet exakt vad du söker eller om du behöver rådgivning, så finns vi här och hjälper till.

Vi ser fram emot att höra av dig.

Intresseanmälan

Kontaktinformation

All behandling av personuppgifter sker i enlighet med dataskyddsförordningen och annan dataskyddslagstiftning. Läs mer om GDPR

Liknande lokaler i Stockholm