Gå till huvudinnehåll

Västerås Kopparlunden

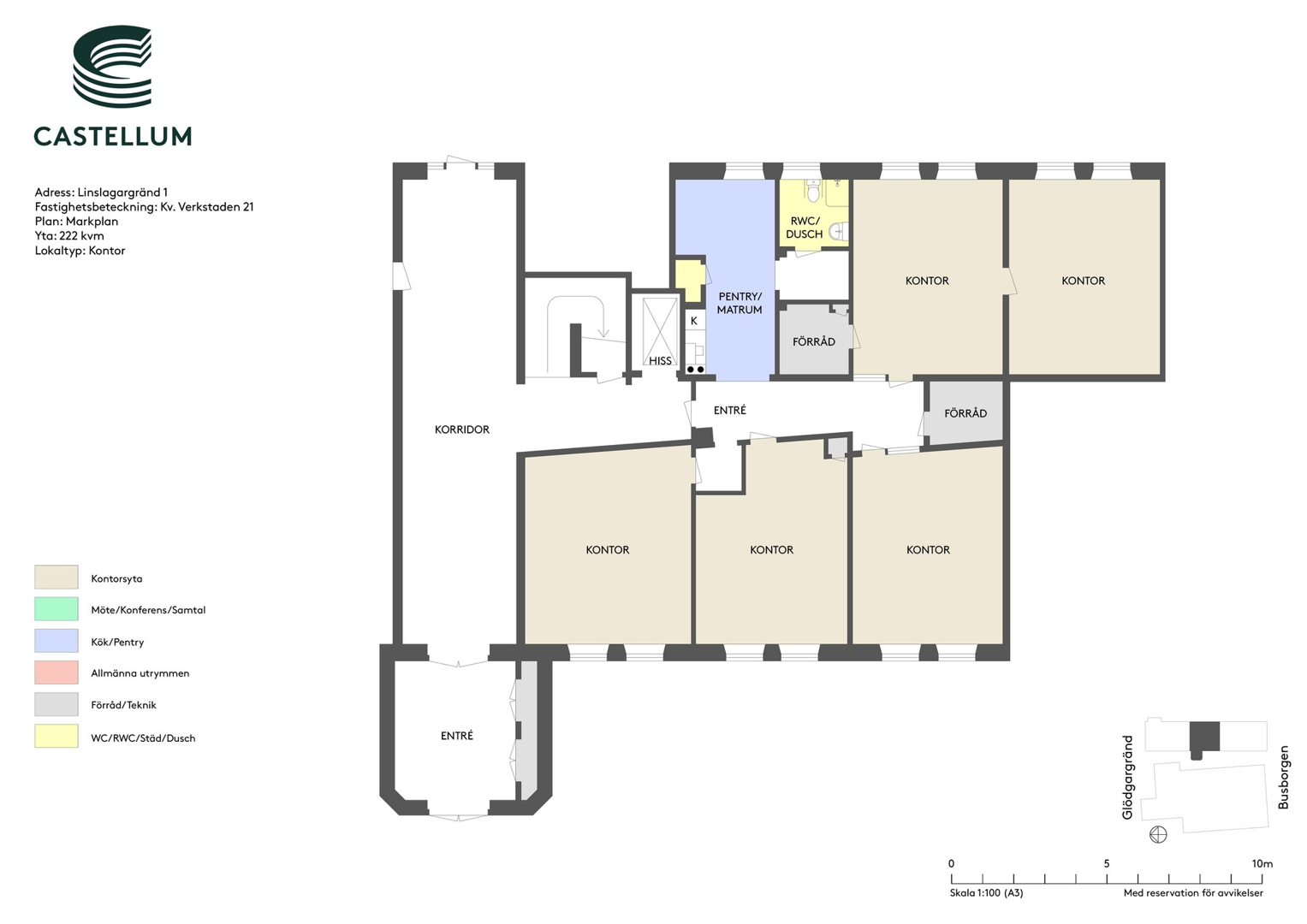
Linslagargränd 1, Kopparlunden

Kontor

Yta

222 kvm

Tillträdesdatum

Enl. ök.

Ljus och flexibel kontorslokal om 222 kvm i markplan

Välkommen till en representativ och välplanerad kontorslokal om 222 kvm i markplan i byggnad 3 i det populära området Kopparlunden. Här erbjuds en funktionell yta med tydlig struktur och flera separata kontorsrum – perfekt för företag som värdesätter både effektivitet och trivsel.

Kontakta oss gärna för mer information eller för att boka en visning!

Planlösning

Planlösningen rymmer flera rymliga kontorsrum med fina ljusinsläpp, kompletterat med pentry/matrum, RWC med dusch, flera förråd samt goda kommunikationsytor. Utformningen lämpar sig väl för allt från konsultverksamhet och administration till kreativa eller kundnära funktioner.

Området

Kopparlunden är en av Västerås mest dynamiska och karaktärsfulla stadsdelar – en plats där industrihistorisk miljö möter moderna kontor, service och stadsliv. Det täta företagsklustret skapar energi och möjligheter, samtidigt som området utvecklas mot en levande blandstad med plats för både arbete och vardagsliv.
Här samsas anrika tegelbyggnader med modern arkitektur, och inom området finns restauranger, caféer, bageri, gym och annan service som förenklar arbetsdagen. Kopparlunden har ett strategiskt läge med närhet till E18 och Cityringen, samtidigt som Västerås city och Centralstationen nås till fots på några minuter.

Kommunikationer

Kopparlunden har ett mycket bra kommunikationsläge. Området nås enkelt med bil via E18, Cityringen, Östra Ringvägen, Kopparbergsvägen och Pilgatan. Goda bussförbindelser finns i direkt anslutning till området, och Västerås Centralstation ligger på bekvämt promenadavstånd.

Parkering

Goda parkeringsmöjligheter finns inom och i direkt anslutning till Kopparlunden, vilket gör det enkelt för både medarbetare och besökare att ta sig till området. Här finns även cykelparkeringar och laddmöjligheter för elbil.

Service

Servicen finns runt knuten i Kopparlunden. I området finns bland annat Kopparlundens Bageri, ICA To Go, restauranger, gym, friskvård och företagshälsovård. Här finns även laddstationer för elbil och smidiga parkeringslösningar. På kort promenadavstånd erbjuds dessutom hotell, biograf och ytterligare serviceutbud i city.

Faciliteter i fastigheten

Sopsortering

Service i området

Buss Restaurang Café Hotell Elbilsladdning Gym

Andra hyresgäster i fastigheten

Mindflower AB - Alfa eCare AB - Lernia Bemanning AB - BBR Ekonomi AB - Libera AB - AlEss.Gävletaxi AB - Lento Ekonomi AB - Rhino Industrial Projects AB

Karta

Dokument

Kontaktperson

Uthyrare

Sofie Lindström

Fråga oss!

Nyfiken på den här lokalen? Eller behöver du hjälp att hitta rätt lokal för din verksamhet? Oavsett om du vet exakt vad du söker eller om du behöver rådgivning, så finns vi här och hjälper till.

Vi ser fram emot att höra av dig.

Intresseanmälan

Kontaktinformation

All behandling av personuppgifter sker i enlighet med dataskyddsförordningen och annan dataskyddslagstiftning. Läs mer om GDPR

Ett eget husteam ingår i hyran

Som hyresgäst hos oss får ni ett lokalt husteam som ser till att ni trivs och att allt fungerar som det ska. Vi hjälper till med allt från fastighetsskötsel och energioptimering till skyltning och parkering. Ingen fråga är för stor eller för liten. Och skulle era behov förändras brukar vi alltid kunna erbjuda en lösning, vad det än gäller. Varmt välkommen till en värd bortom det förväntade.

Liknande lokaler i Västerås