Gå till huvudinnehåll

Göteborg Centrum

Ebbe Lieberathsgatan 18 C

Kontor

Yta

217 kvm

Arbetsplatser

4 - 12 st

Så räknar vi antal arbetsplatser

Detta spann är en uppskattning. Det finns flera faktorer som påverkar hur många arbetsplatser som kan rymmas i en lokal. Inte bara storleken på själva lokalen utan även hur den disponeras. Exempelvis kräver en lokal med många enskilda kontor mer plats än öppen planlösning. Andra begränsningar kan vara tillgången på luft och kyla, eller utrymningsvägar.

Tillträdesdatum

Enl. ök.

Våningsplan

4

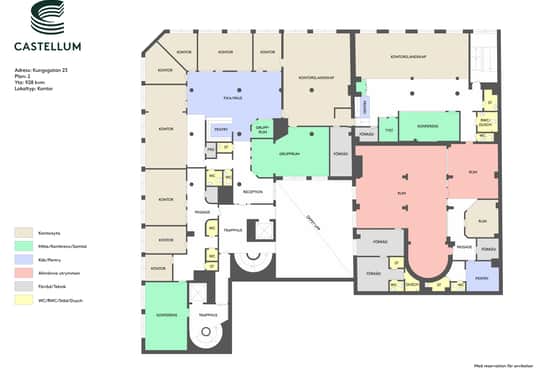
Yteffektivt kontor plan 4.

Ett kontor med mycket ljusinsläpp som ger en behaglig arbetsmiljö. I dagsläget en blandad planlösning med kontorsrum och en öppen yta för t ex aktivitetsbaserat kontor eller en kreativ arbetsyta.
Lokalen går att anpassa för att matcha ert företags behov.
I samband med lokalanpassning eller ombyggnad är vår ambition att använda återbrukat material så långt det är möjligt och vi prioriterar hållbarhet för minsta möjliga miljöpåverkan.
Närheten till utmärkta kommunikationsmöjligheter gör pendlingen till och från kontoret både enkel och bekväm.
På bara 3 minuters promenad når man spårvagn, Willys, ICA Maxi, gym och flera restauranger.

Parkeringsplatser finns att hyra.

Välkommen att kontakta oss för mer info och vising!

Planlösning

Fyra kontorsrum, konferensrum och öppen kontorsyta. Pentry, wc och dusch.

Området

Det pågår många spännande projekt i närheten av fastigheten. Fastigheten ligger i ett nytt område som växer fram mellan Göteborg och Mölndal. Idag består omgivningen till största del av industri, men Göteborgs kommun och Mölndals stad har tagit fram en gemensam översiktsplan för att skapa en levande stadsdel och här skall 5000 – 10 000 nya invånare bo här.

Kommunikationer

Området har ett utmärkt geografiskt läge mellan de två knutpunkterna Korsvägen och Mölndals C. Kollektivtrafiken är mycket bra med lätt tillgång till spårvagn och buss. Därtill ligger fastigheterna med direktanslutning till E6:an där man med enkelhet kan fortsätta söderut mot Malmö, norrut mot Oslo eller österut mot Stockholm. Från centrala Göteborg cyklar du till kontoret på tio minuter. Spårvagnen tar ungefär lika lång tid. Om du vill ta bilen till jobbet ligger E6/E20 och Mölndalsvägen precis intill fastigheten.

Service

I närområdet finns redan idag flera stora matbutiker, bensinmackar, restauranger, gym och hotell. Under de närmsta åren kommer serviceutbudet öka i takt med att området expanderar.

Fastigheten

Fastigheten har varit ett huvudkontor för Telia nu huserar cirka 20 olika företag inom alla möjliga verksamhetsområden. Stora investeringar har gjorts i fastigheten senaste åren, framförallt då på ventilationsfronten.

  • Nära serviceutbud
  • P-platser
  • Restauranger

Faciliteter i fastigheten

Cykelrum

Service i området

Buss Gym Spårvagn

Energi & hållbarhet

  • Certifieringar: LEED O+M, Gold
  • Total energianvändning (2025): 15 kWh/m²
  • Klimatpåverkan: 1,79 kg CO₂e/m² (platsbaserad)

Andra hyresgäster i fastigheten

Statens museer för världskultur - JPA Revision AB - Magelungen Utveckling AB - IT-Högskolan Sverige AB - Agrell & Andra Konstruktion AB - Symetri AB - Lumina Adhesives AB - Rockwell Automation AB - Insieme Consulting AB - ProcuArt AB - Sussis Lunchbar KB - Tarkett Aktiebolag - Olivia Personlig Assistans AB - Mobitex Technology AB

Karta

Dokument

Kontaktperson

Uthyrare

Katarina Uppling

Fråga oss!

Nyfiken på den här lokalen? Eller behöver du hjälp att hitta rätt lokal för din verksamhet? Oavsett om du vet exakt vad du söker eller om du behöver rådgivning, så finns vi här och hjälper till.

Vi ser fram emot att höra av dig.

Intresseanmälan

Kontaktinformation

All behandling av personuppgifter sker i enlighet med dataskyddsförordningen och annan dataskyddslagstiftning. Läs mer om GDPR

Liknande lokaler i Göteborg