Gå till huvudinnehåll

Trollhättan Strömnäs

Lasarettsvägen 1-19

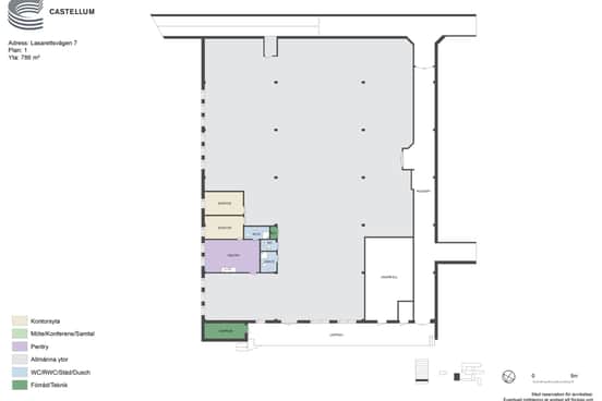
Kontor

Yta

900 kvm

Arbetsplatser

20 - 40 st

Så räknar vi antal arbetsplatser

Detta spann är en uppskattning. Det finns flera faktorer som påverkar hur många arbetsplatser som kan rymmas i en lokal. Inte bara storleken på själva lokalen utan även hur den disponeras. Exempelvis kräver en lokal med många enskilda kontor mer plats än öppen planlösning. Andra begränsningar kan vara tillgången på luft och kyla, eller utrymningsvägar.

Tillträdesdatum

Enl. ök.

Våningsplan

5

Utbildningslokal alternativt kontor.

Lokal i ett våningsplan som är passningsbar för utbildning eller kontor. Planlösningen består i dag av kontorsrum, zoner för öppna föreläsningssalar alternativt kontorslandskap, konferensrum, pentry och pausyta.
Ljus lokal belägen på femte våning.
Ytorna erbjuder obegränsade möjligheter för kreativitet och samarbete. Renovering kommer att ske innan inflyttning, låt oss skapa något extraordinärt tillsammans!
Nära till natursköna områden. Trots den idylliska miljön är vi strategiskt placerade för att ge närhet till stadens bekvämligheter och affärsdistrikt.
Välkommen att kontakta oss för mer info och visning!

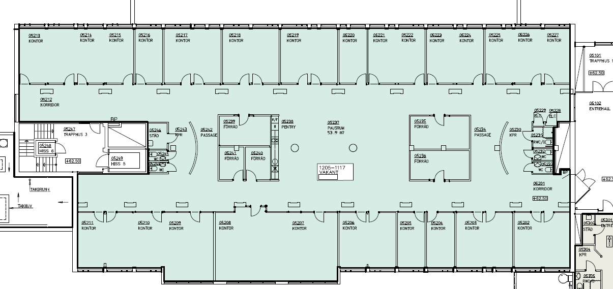
Planlösning

Idagsläget är lokalen rumsindelad.

Området

Trollhätte Kanalpark i Trollhättan följer Göta älvs vatten från området Vårvik, förbi Trollhättans Stadspark, längs med Spikön och Strandgatan, genom Trollhättefallen och Älvrummet ner till det fantastiska Slussområdet. Området bjuder på storslagna utsikter, goda fiskevatten och en härlig temalekplats.
Trollhättans kanske mäktigaste plats, Trollhättefallen, som bjuder på ett magnifikt skådespel när dammluckorna öppnas och 300 000 liter vatten per sekund forsar ner i älvfåran.
Känn pulsen från Strandgatan som går längs Trollhätte kanal, njut av god mat och dryck för att sedan upptäcka centrala Trollhättan. Shoppa loss, gå på teater, besök Walk of Fame

Kommunikationer

Fastigheten ligger lättillgängligt från E45 och busshållplats på promenadavstånd, ca 100 meter.

Parkering

Gott om parkeringsmöjligheter finns vid fastigheten.

Service

Närhet till all tänkbar service i stans centrala delar, så som restauranger, caféer, butiker, livsmedelsbutiker.

Fastigheten

Kvarteret Läkaren 1 som ligger i ett naturskönt område består av åtta olika huskroppar. Byggnaderna är i tegel med mycket ljusinläpp via stora fönsterpartier.

  • Lättillgängligt läge vid E 45
  • Utsikt
  • Parkering

Service i området

Buss

Energi & hållbarhet

  • Total energianvändning (2025): 25 kWh/m²
  • Klimatpåverkan: 0,6 kg CO₂e/m² (platsbaserad)

Andra hyresgäster i fastigheten

Trollhättans Kommun - Nordic International School AB - VÄSTRA GÖTALANDSREGIONEN - Praktiska Sverige AB - Erlaskolan - Kunskapscompaniet Ankaret AB - Byggnads Väst - ULNA AB - Siemens - AcadeMedia Eductus AB - Leif Reés - Advokat Marie Nestenborg AB - Afasiföreningen i Norra Älvsborg - FMLS Dyslexiförbundet i Fyrstad - Juristpanelen Advokatbyra i Göteborg HB

Karta

Dokument

Kontaktperson

Kommersiell Förvaltare

Therése Nilsson

Fråga oss!

Nyfiken på den här lokalen? Eller behöver du hjälp att hitta rätt lokal för din verksamhet? Oavsett om du vet exakt vad du söker eller om du behöver rådgivning, så finns vi här och hjälper till.

Vi ser fram emot att höra av dig.

Intresseanmälan

Kontaktinformation

All behandling av personuppgifter sker i enlighet med dataskyddsförordningen och annan dataskyddslagstiftning. Läs mer om GDPR

Ett eget husteam ingår i hyran

Som hyresgäst hos oss får ni ett lokalt husteam som ser till att ni trivs och att allt fungerar som det ska. Vi hjälper till med allt från fastighetsskötsel och energioptimering till skyltning och parkering. Ingen fråga är för stor eller för liten. Och skulle era behov förändras brukar vi alltid kunna erbjuda en lösning, vad det än gäller. Varmt välkommen till en värd bortom det förväntade.

Liknande lokaler i Trollhättan