Gå till huvudinnehåll

Uppsala City

Kungsgatan 43

Kontor

Yta

62 kvm

Tillträdesdatum

Enl. ök.

Våningsplan

3

Vårdlokal i välkända Läkarhuset – mitt i centrala Uppsala

Välkommen till Läkarhuset – en etablerad och välkänd fastighet mitt i centrala Uppsala. Här erbjuds nu en vårdlokal om 62 kvm med ett attraktivt läge, goda kommunikationer och ett naturligt flöde av patienter och besökare.

Lokalen är idag anpassad för vårdverksamhet och disponeras med väntrum, behandlingsrum samt personalutrymmen, vilket ger goda förutsättningar för en smidig start eller vidare expansion av er verksamhet.

Det centrala läget gör det enkelt för era patienter och kunder att hitta till er, oavsett om de reser med kollektivtrafik, bil eller till fots.

En utmärkt möjlighet för er som söker en färdig vårdmiljö i ett av Uppsalas mest välkända vårdbyggnader.

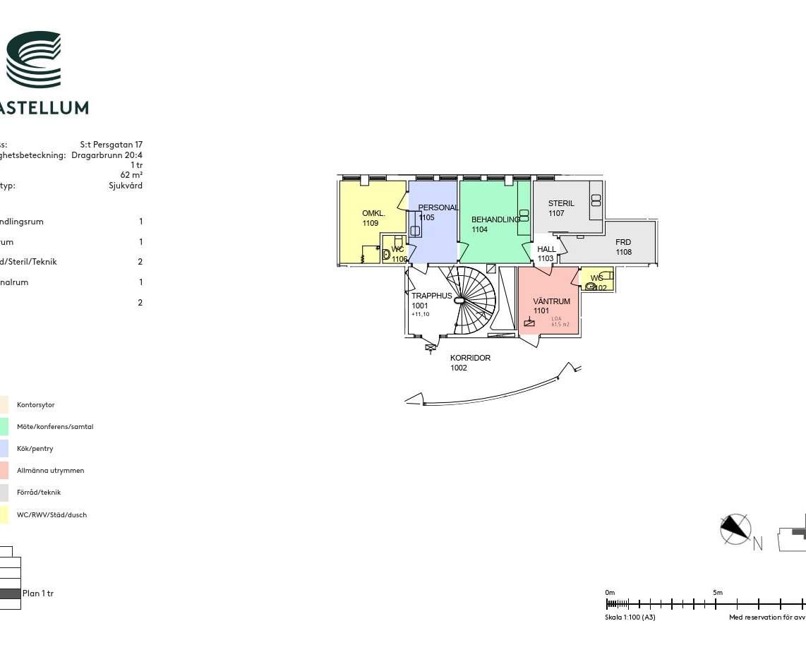
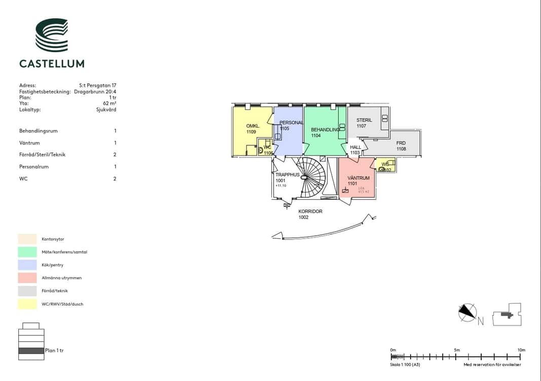
Planlösning

Lokalen har en praktisk planlösning för det mindre vårdbolaget. Här finns ett väntrum med wc, behandlingsrum, sterilrum, förråd, personalrum samt omklädningsrum.

Området

I hjärtat av Uppsala centrum ligger Läkarhuset. Här har du nära till en koncentration av handel, restauranger och kultur. I princip all tänkbar service fins precis utanför entrén.

Kommunikationer

Mycket centralt läge med 5 min promenad till Resecentrum, busshållplats intill fastigheten.

Parkering

Plats i parkeringsgarage finns att hyra.

Service

Här har ni nära till allt city kan erbjuda i form av service och upplevelser. Gågatan ligger bara ett kvarter bort och i S:t Per gallerian finns matbutik, och apotek. Om hörnet på Dragarbrunnsgatan finns även Forsa Hembageri med fantastiska bröd och konditorivaror. Actic, Member24 och Fitness 24/7 är bara ett par kvarter bort liksom Stora Torget.
Vad gäller restauranger har ni näst intill obegränsat med valmöjligheter. Till Centralstationen är det bara 500 meter att gå.

Fastigheten

Fastigheten är uppdelad på en äldre renoverad del, som inrymmer vårdverksamhet, samt en tillbyggd kontorsdel från 2007 som inrymmer kontorslokaler. I gatuplan finns restaurang, optiker, syatelje.

  • Centralt
  • Kommunikationer
  • Service

Faciliteter i fastigheten

Omklädningsrum Parkering Kök

Service i området

Resecentrum Buss Parkering Restaurang Café Hotell Tåg Shopping Elbilsladdning Gym

Energi & hållbarhet

  • Total energianvändning (2025): 32 kWh/m²
  • Klimatpåverkan: 16,07 kg CO₂e/m² (platsbaserad)

Andra hyresgäster i fastigheten

StarrMedica Ögonklinik - Monkeymountain Brewery AB - Mollbrinks Konsthandel Aktiebolag - Eartech Hörselkliniker - Manpower - Synoptik - Peops Relations AB - Adjutari Advokatbyrå AB - Humana Assistans - SYNLAB Medilab - Salgado Kommunikation AB - Clinica Laser - Uppsala ÖNH Specialisten AB - Salong Favorit - Svea Hair Clinic - Tandtrollaren - Tandläkare Sophia Börjesson - Sara Daniels - Dentli - Askungen Syateljé - Tandläkarhuset i Uppsala AB - Lia Wahlgren Tandläkare AB - Uppsala Tandhygienistklinik AB - Rabéns Fotklinik - Salong Marguerite

Karta

Dokument

Kontaktperson

Kommersiell Förvaltare

Gustav Sköld

Fråga oss!

Nyfiken på den här lokalen? Eller behöver du hjälp att hitta rätt lokal för din verksamhet? Oavsett om du vet exakt vad du söker eller om du behöver rådgivning, så finns vi här och hjälper till.

Vi ser fram emot att höra av dig.

Intresseanmälan

Kontaktinformation

All behandling av personuppgifter sker i enlighet med dataskyddsförordningen och annan dataskyddslagstiftning. Läs mer om GDPR

Liknande lokaler i Uppsala