Gå till huvudinnehåll

Stockholm Kungsholmen

Strandbergsgatan 12

Kontor

Yta

304 kvm

Arbetsplatser

15 - 25 st

Så räknar vi antal arbetsplatser

Detta spann är en uppskattning. Det finns flera faktorer som påverkar hur många arbetsplatser som kan rymmas i en lokal. Inte bara storleken på själva lokalen utan även hur den disponeras. Exempelvis kräver en lokal med många enskilda kontor mer plats än öppen planlösning. Andra begränsningar kan vara tillgången på luft och kyla, eller utrymningsvägar.

Tillträdesdatum

2026-09-01

Våningsplan

6

Modern kontorslokal med egen terrass i attraktiva Stadshagen

Välkommen till Strandbergsgatan 12 – en ljus och fräsch kontorslokal om ca 304 kvm i attraktiva Stadshagen.

Här sitter du i ett område med mycket goda kommunikationer och endast cirka 6 minuter från Stockholm Centralstation. Samtidigt finns närhet till Kungsholms strand, vilket skapar fina möjligheter till pauser och rörelse under arbetsdagen.

Lokalen håller en modern standard med generöst ljusinsläpp och en trivsam arbetsmiljö. Ytorna är flexibla och kan anpassas efter verksamhetens behov. Den egna terrassen utgör ett uppskattat mervärde och ger extra yta för både arbete och sociala pauser.

En välplanerad kontorslokal för företag som söker god tillgänglighet och en representativ helhet.

Välkommen att boka visning.

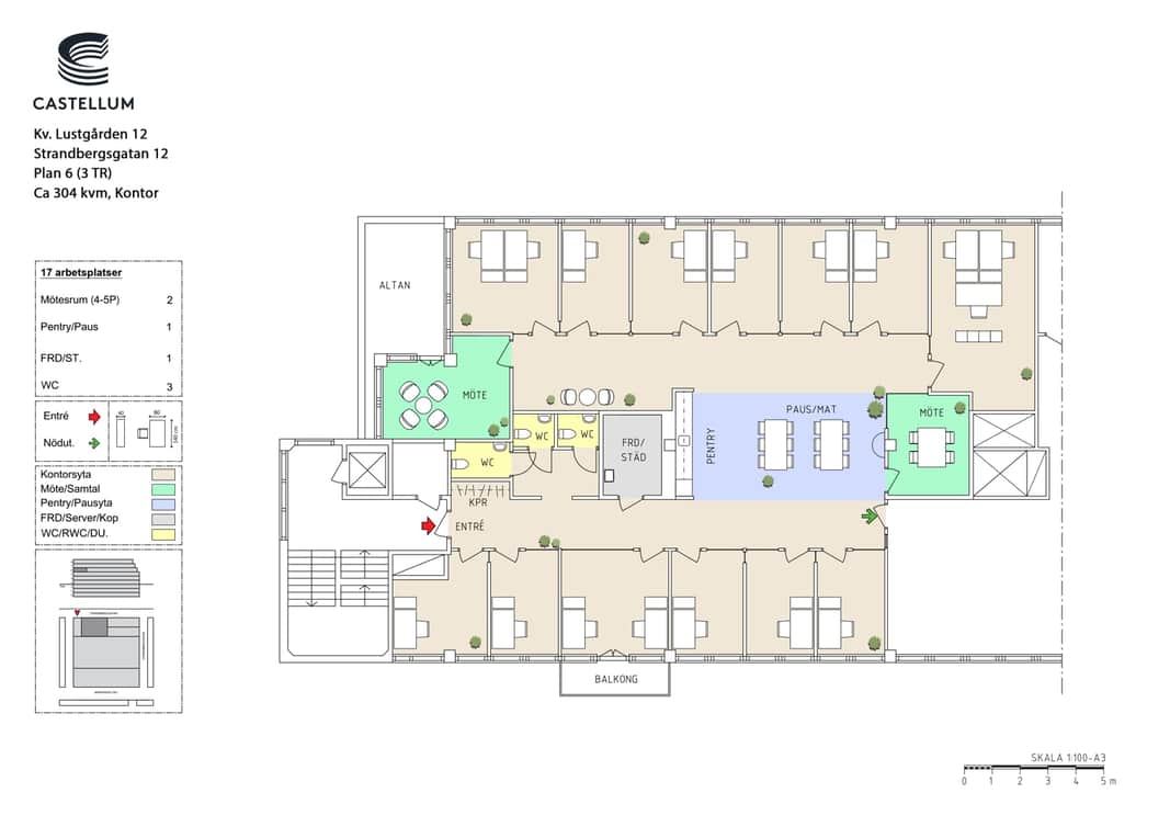
Planlösning

Flexibel planlösning där kontoret i dag är fördelat på flera enskilda kontor samt en större social yta i anslutning till pentryt. Ytterligare usp är den egna terrassen som ligger i direkt anslutning från ena mötesrummet.

Området

Kungsholmen är idag en pulserande stadsdel i ständig utveckling. Det som en gång var ett industriområde har förvandlats till en modern blandstad där bostäder, arbetsplatser, idrottshallar, butiker och restauranger samsas längs livliga gator.

Samtidigt har områdets unika parkytor och strandpromenader varsamt bevarats och förädlats, vilket ger Kungsholmen sin speciella charm. Resultatet är en levande stadsdel som förenar historia och nutid, perfekt anpassad för dagens behov.

Kommunikationer

Området är vältrafikerat med flera busslinjer som passerar i närheten. För dig som pendlar med den gröna tunnelbanelinjen ligger Fridhemsplan, Thorildsplan och Kristineberg på bekvämt promenadavstånd.

Cykelpendlare kan dra nytta av de väl utbyggda cykelbanorna i området. Fastigheten har dessutom ett utmärkt läge vid Essingeleden, med smidiga på- och avfarter i både norr- och södergående riktning.

Parkering

Det finns gott om garageplatser i fastigheten och området. Är du intresserad? Kontakta Corepark på telefonnummer 08-650 02 15.

Fastigheten

Kontorsbyggnaden uppfördes 1948 som garage- och industrilokal för Bilägarnas Inköpscentral, föregångaren till OK. Byggnadens ursprungliga kvaliteter lever kvar än idag och präglar de ljusa och flexibla kontorslokalerna.

Fastigheten erbjuder ett brett serviceutbud, inklusive restaurang, garage med biluthyrning, biltvätt, gym och frisör. För cyklister finns bekvämligheter i form av gemensamma cykelrum och omklädningsrum, vilket gör pendlingen smidigare och enklare.

  • Egen takterrass
  • Fina promenadstråk
  • Goda kommunikationer

Faciliteter i fastigheten

Omklädningsrum Cykelrum Terrass Elbilsladdning Skyltläge Garage Restaurang

Service i området

Buss Restaurang Café Gym Grönområde T-bana

Energi & hållbarhet

  • Certifieringar: LEED O+M, Gold
  • Total energianvändning (2025): 29 kWh/m²
  • Klimatpåverkan: 4,59 kg CO₂e/m² (platsbaserad)

Andra hyresgäster i fastigheten

Kungsholmens Kontorshotell AB - Designgymnasiet i Sverige AB - Eatery - Framtiden i Sverige AB - DOiNC AB - Kemakta Konsult AB - Reed & Mackay Sverige AB - Molöf Bygg AB - Hermes Medical Solutions AB - Strategia Projektledning AB - TeleTornet Sales AB - Newsafe Sweden AB - Svenska Hem Bygg & Entreprenad AB - Pokayoke AB - Kungsholmens träningsklubb AB - Pricka AB - NC Network Construction AB - Hertz - Castellum - Zanna Frisör Studie AB - Dynamite Carwash AB - Vaktmästeriet Företagsservice i Sthlm AB - Rimbo Hus AB - Byggmontage Forsell AB - Cloudberry Care AB - Framtiden

Karta

Dokument

Kontaktperson

Uthyrare

Hannah Karlöf

Fråga oss!

Nyfiken på den här lokalen? Eller behöver du hjälp att hitta rätt lokal för din verksamhet? Oavsett om du vet exakt vad du söker eller om du behöver rådgivning, så finns vi här och hjälper till.

Vi ser fram emot att höra av dig.

Intresseanmälan

Kontaktinformation

All behandling av personuppgifter sker i enlighet med dataskyddsförordningen och annan dataskyddslagstiftning. Läs mer om GDPR

Ett eget husteam ingår i hyran

Som hyresgäst hos oss får ni ett lokalt husteam som ser till att ni trivs och att allt fungerar som det ska. Vi hjälper till med allt från fastighetsskötsel och energioptimering till skyltning och parkering. Ingen fråga är för stor eller för liten. Och skulle era behov förändras brukar vi alltid kunna erbjuda en lösning, vad det än gäller. Varmt välkommen till en värd bortom det förväntade.

Liknande lokaler i Stockholm