Gå till huvudinnehåll

Stockholm Kungsholmen

Warfvinges väg 29

Kontor

Yta

706 kvm

Arbetsplatser

50 - 70 st

Så räknar vi antal arbetsplatser

Detta spann är en uppskattning. Det finns flera faktorer som påverkar hur många arbetsplatser som kan rymmas i en lokal. Inte bara storleken på själva lokalen utan även hur den disponeras. Exempelvis kräver en lokal med många enskilda kontor mer plats än öppen planlösning. Andra begränsningar kan vara tillgången på luft och kyla, eller utrymningsvägar.

Tillträdesdatum

Enl. ök.

Letar du efter en flexibel lokal för vård eller kontor på Västra Kungsholmen med bra skyltläge mot gatan ?

Då är detta den perfekta lokalen för dig!

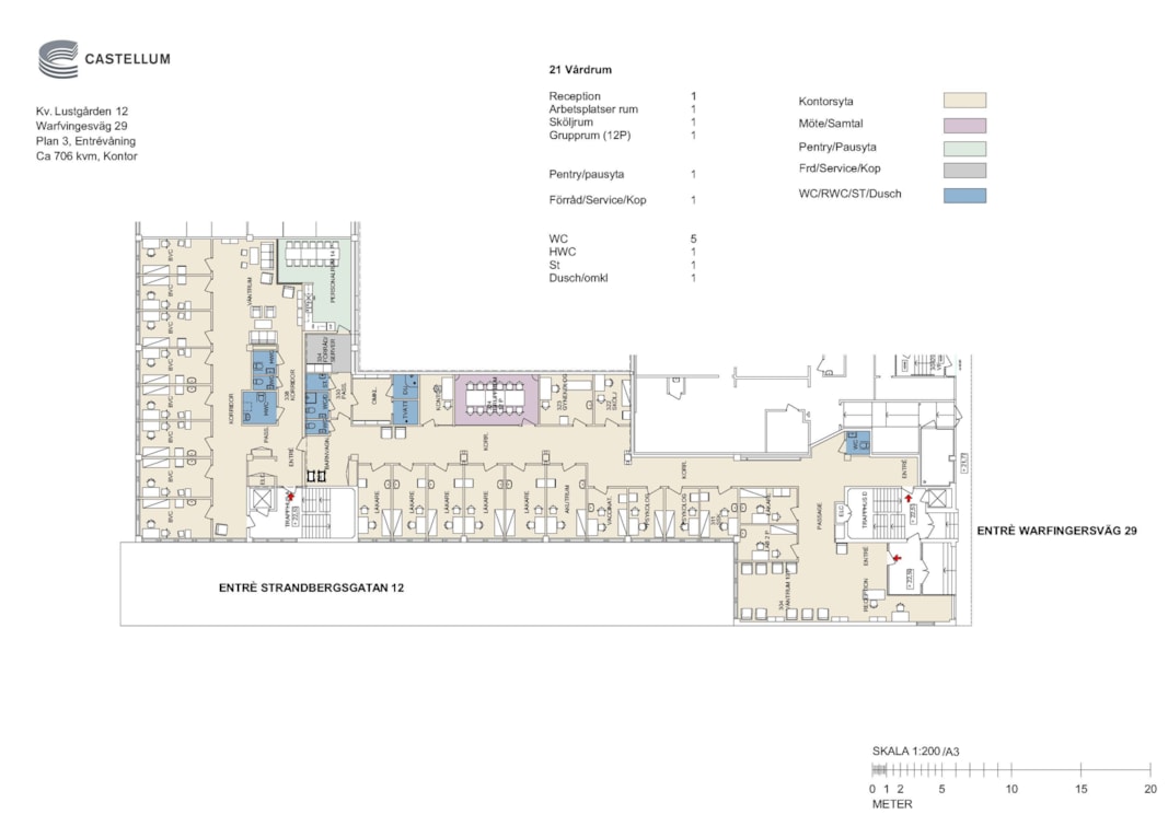
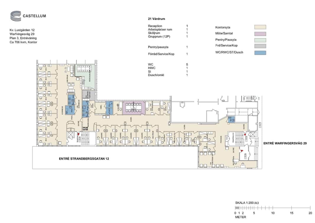
Med två separata entréer kan du enkelt dela upp ingången för personal och externa besökare. Lokalen ligger på Warfvingesväg 29 och Strandbergsgatan 12, 2 trappor upp.

Den rumsindelade lokalen har idag 16 rum med handfat som enkelt kan demonteras , 6 rum utan handfat, omklädningsrum, väntrum, konferensrum och ett pentry/paus-rum.

Perfekt för både vårdverksamheter och företag som söker ett kontor med tydlig rumsindelning.

Vill du kunna träna under lunchen? Då finns SATS i grannhuset, Nordic Wellness och Friskis & Svettis i området och i fastigheten finns gemensamma omklädningsrum med duschar.

Tar du cykeln till jobbet kan du lätt parkera den i ett låst cykelrum i fastigheten. Och tar du bilen till jobbet finns garage i fastigheten med laddplatser för din bil.

Funderar du på lunchalternativ? Då behöver du inte gå långt. För i fastigheten huserar restaurangen Eatery som erbjuder frukost, lunch, fika, afterwork och catering.

Inte nog med att det finns tunnelbana ett par minuter från fastigheten. Bussar förstärker ytterligare kommunikationen och dessa går till Hornstull, Sergels torg, Odenplan och Nacka C.

Vill du skapa en arbetsplats att längta till? Behöver du hjälp att utforma ditt framtida kontor?
Ta gärna hjälp av oss på Castellum! Vi har nycklarna för att utforma en hållbar och attraktiv arbetsplats, där medarbetarna mår bra och presterar på topp.

Välkommen på visning!

Planlösning

NO:
Planlösningen erbjuder flertal arbetsplatser i separata kontor. Lokalen har ett större konferensrum, flera mötesrum i olika storlekar. Pentry- och pausyta ligger avskilt för en lugn lunch, entrén har en större lungeyta med reception och det finns även en mindre lounge i anslutning till pentry- pausrummet. Praktiska funktioner som förråd, kopieringsyta och omklädningsrum med dusch finns även det i lokalen.

Området

Kungsholmen är idag en pulserande stadsdel i ständig utveckling. Det som en gång var ett industriområde har förvandlats till en modern blandstad där bostäder, arbetsplatser, idrottshallar, butiker och restauranger samsas längs livliga gator.

Samtidigt har områdets unika parkytor och strandpromenader varsamt bevarats och förädlats, vilket ger Kungsholmen sin speciella charm. Resultatet är en levande stadsdel som förenar historia och nutid, perfekt anpassad för dagens behov.

Kommunikationer

Området är vältrafikerat med flera busslinjer som passerar i närheten. För dig som pendlar med den gröna tunnelbanelinjen ligger Fridhemsplan, Thorildsplan och Kristineberg på bekvämt promenadavstånd.

Cykelpendlare kan dra nytta av de väl utbyggda cykelbanorna i området. Fastigheten har dessutom ett utmärkt läge vid Essingeleden, med smidiga på- och avfarter i både norr- och södergående riktning.

Parkering

Det finns gott om garageplatser i fastigheten och området. Är du intresserad? Kontakta Corepark på telefonnummer 08-650 02 15.

Fastigheten

Kontorsbyggnaden uppfördes 1948 som garage- och industrilokal för Bilägarnas Inköpscentral, föregångaren till OK. Byggnadens ursprungliga kvaliteter lever kvar än idag och präglar de ljusa och flexibla kontorslokalerna.

Fastigheten erbjuder ett brett serviceutbud, inklusive restaurang, garage med biluthyrning, biltvätt, gym och frisör. För cyklister finns bekvämligheter i form av gemensamma cykelrum och omklädningsrum, vilket gör pendlingen smidigare och enklare.

  • Vårdlokal
  • Två entréer
  • Tunnelbana några minuter bort

Faciliteter i fastigheten

Garage Restaurang

Service i området

Gym T-bana

Energi & hållbarhet

  • Certifieringar: LEED O+M, Gold
  • Total energianvändning (2025): 29 kWh/m²
  • Klimatpåverkan: 4,59 kg CO₂e/m² (platsbaserad)

Andra hyresgäster i fastigheten

Kungsholmens Kontorshotell AB - Designgymnasiet i Sverige AB - Eatery - Framtiden i Sverige AB - DOiNC AB - Kemakta Konsult AB - Reed & Mackay Sverige AB - Molöf Bygg AB - Hermes Medical Solutions AB - Strategia Projektledning AB - TeleTornet Sales AB - Newsafe Sweden AB - Svenska Hem Bygg & Entreprenad AB - Pokayoke AB - Kungsholmens träningsklubb AB - Pricka AB - NC Network Construction AB - Hertz - Castellum - Zanna Frisör Studie AB - Dynamite Carwash AB - Vaktmästeriet Företagsservice i Sthlm AB - Rimbo Hus AB - Byggmontage Forsell AB - Cloudberry Care AB - Framtiden

Karta

Dokument

Kontaktperson

Uthyrare

Hannah Karlöf

Fråga oss!

Nyfiken på den här lokalen? Eller behöver du hjälp att hitta rätt lokal för din verksamhet? Oavsett om du vet exakt vad du söker eller om du behöver rådgivning, så finns vi här och hjälper till.

Vi ser fram emot att höra av dig.

Intresseanmälan

Kontaktinformation

All behandling av personuppgifter sker i enlighet med dataskyddsförordningen och annan dataskyddslagstiftning. Läs mer om GDPR

Ett eget husteam ingår i hyran

Som hyresgäst hos oss får ni ett lokalt husteam som ser till att ni trivs och att allt fungerar som det ska. Vi hjälper till med allt från fastighetsskötsel och energioptimering till skyltning och parkering. Ingen fråga är för stor eller för liten. Och skulle era behov förändras brukar vi alltid kunna erbjuda en lösning, vad det än gäller. Varmt välkommen till en värd bortom det förväntade.

Liknande lokaler i Stockholm