Gå till huvudinnehåll

Borås Centrum

Torggatan 25

Kontor

Hyresindikation

62 000 kr/mån

Detaljerad hyresinformation

Tillkommer på hyran
Driftkostnader f n 150 kr/kvm/år
Fastighetsskatt fn 75 kr/kvm/år
Moms 25%

Yta

440 kvm

Arbetsplatser

5 - 30 st

Så räknar vi antal arbetsplatser

Detta spann är en uppskattning. Det finns flera faktorer som påverkar hur många arbetsplatser som kan rymmas i en lokal. Inte bara storleken på själva lokalen utan även hur den disponeras. Exempelvis kräver en lokal med många enskilda kontor mer plats än öppen planlösning. Andra begränsningar kan vara tillgången på luft och kyla, eller utrymningsvägar.

Tillträdesdatum

Enl. ök.

Våningsplan

2

Stora Torget! Bra exponering med det centralaste läget!

Mitt i vår vackra stad finner ni denna lokal med bästa möjliga skyltläge mitt i citykärnan. Belägen mitt i händelsernas centrum i vår unika och centralaste fastighet - kv Midas!

Lokalen har mycket ljusinsläpp från två väderstreck och är belägen på plan 2. Den kommer att genomgå renovering innan inflyttning (bilderna är olika förslag på planlösning och ytskikt). Den nås enkelt via den välkomnande entrén med trappa och hiss från gatuplan mot Stora Torget.
Här kan du marknadsdsföra dig via de stora fönstren. Ingen kan missa att ni finns där!

Du är med och påverkar din egen planlösningen oavsett om Du vill ha kontorsrum eller mer öppna ytor så tittar vi gemensamt på en lösning. Vid anpassningar försöker vi alltid ha återbruk och hållbarhet i åtanke.

Vill du etablera din verksamhet med bästa placerings-och skyltläge för att bli en framgångsaga?

Välkommen att kontakta oss för mer info och visning!

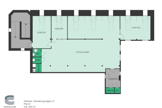
Planlösning

Idag är lokalen en stor öppen yta med personalutrymme.
Takhöjden är ca 3.30 m - 4.0 m.

Området

Ett stenkast bort från denna centralt belägna fastighet finner du Borås vackra Stadspark, delvis omgiven av Viskan vilken rinner genom centrum.
Till Stadsparken tar du dig för en kort break i citypulsen eller varför inte njuta av en medhavd lunch, kaffe eller passa på att kika in till lunchrestaurangen som ligger direkt när du kommit in i parken. Alldeles i närheten finner vi även Sandwalls plats med dess uteserveringar, caféer och restauranger som är en perfekt och mycket populär mötesplats både för affärslunchen och en träff i goda vänners sällskap.
Inte sällan är det full fart här på lunchtid och om det är soligt och fint väder - ja, då gäller det att vara ute i god tid för att få plats på uteserveringarna! Fastigheten är belägen vid Stora Torget i Borås.

Kommunikationer

Med tåg och buss tar du dig enkelt hit, gångavstånd från Centralstationen och Södra Torget med det flesta bussförbindelser.
För dig som pendlar från Göteborg är restiden till Borås ca 45-50 minuter och avgångar är frekventa, både med tåg och buss.

Parkering

Besöksparkering finns i t ex Midas-garaget och på Midas-terrassen.

Service

Hos oss har varje hyresgäst ett eget team!
Med ett starkt lokalt engagemang är vi måna om att leva upp till de förväntningar som ställs på en trygg och långsiktig hyresvärd, varje dag, i stort och smått.
Alla våra fastigheter sköts av vår egen personal och som hyresgäst har du tillgång till ett eget Castellumteam som ser till att du trivs hos oss.
Och om dina behov så småningom förändras kan vi, tack vare vår storlek, nästan alltid erbjuda en lösning. För att göra det enkelt för våra hyresgäster att leva hållbart erbjuder vi bland annat gröna hyresavtal och förnybar el.

Fastigheten

Fastigheten är belägen vid Stora Torget i Borås.
Byggnaden innehar butiker och kontor och garage.

  • Skyltläge
  • Mitt i City
  • Stora fönster

Faciliteter i fastigheten

Cykelrum Parkering Skyltläge Garage Restaurang

Service i området

Resecentrum Buss Parkering Restaurang Café Hotell Tåg Shopping Gym

Energi & hållbarhet

  • Total energianvändning (2025): 35 kWh/m²
  • Klimatpåverkan: 5,32 kg CO₂e/m² (platsbaserad)

Karta

Dokument

Kontaktperson

Uthyrare

Erik Williamson

Fråga oss!

Nyfiken på den här lokalen? Eller behöver du hjälp att hitta rätt lokal för din verksamhet? Oavsett om du vet exakt vad du söker eller om du behöver rådgivning, så finns vi här och hjälper till.

Vi ser fram emot att höra av dig.

Intresseanmälan

Kontaktinformation

All behandling av personuppgifter sker i enlighet med dataskyddsförordningen och annan dataskyddslagstiftning. Läs mer om GDPR

Liknande lokaler i Borås