Gå till huvudinnehåll

Göteborg Säve

Säve flygplatsväg 25

Kontor

Yta

620 kvm

Arbetsplatser

10 - 50 st

Så räknar vi antal arbetsplatser

Detta spann är en uppskattning. Det finns flera faktorer som påverkar hur många arbetsplatser som kan rymmas i en lokal. Inte bara storleken på själva lokalen utan även hur den disponeras. Exempelvis kräver en lokal med många enskilda kontor mer plats än öppen planlösning. Andra begränsningar kan vara tillgången på luft och kyla, eller utrymningsvägar.

Tillträdesdatum

Enl. ök.

Våningsplan

2

Kontor och utbildningslokal

Nu finns en lokal tillgänglig som kan användas för kontorsverksamhet eller utbildningsändamål. Lokalen är ljus och rymlig med möjligheter att anpassa den efter era behov - från planlösning till inredningsdetaljer. Oavsett om ni vill skapa öppna arbetsytor, effektiva mötesrum eller inspirerande loungeytor kan vi tillsammans forma en lokal som speglar er verksamhet och stärker ert varumärke. Vid anpassningar har vi tät dialog med er, arkitekt och projektledare. Vi försöker alltid ha hållbarhet och återbruk i åtanke.

Välkommen att kontakta oss för mer info eller boka en visning!

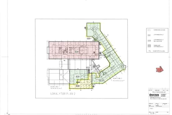
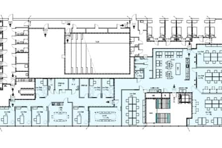
Planlösning

Här finns en flexibel yta som kan skräddarsys helt efter era behov och önskemål.

Området

Nordic Hub Säve! Säve utvecklingsområde byter namn till Nordic Hub Säve. Det gamla flygplatsområdet omfattar närmare 3 miljoner kvadratmeter mark och ligger i ett av Nordens bästa logistiklägen, i en region som är världsledande inom elektromobilitet. Här möts innovation och hållbarhet för att driva framtidens affärer inom elektromobilitet och logistik. Avståndet till Göteborgs Hamn är bara ca 15 min. Göteborg och Västsverige är motorn i omställningen till elektrifierade fordon och tjugo procent av all utrikeshandel går via Göteborgs Hamn.
För den långsiktiga utvecklingen av området krävs nya detaljplaner. Tidplanen är att kunna starta om ett par år, utvecklingsarbete kommer pågå under många år framåt, kanske för alltid för ur ett perspektiv blir det aldrig färdigt. Vi kommer alltid att både vilja och behöva utveckla området över tid tillsammans med våra partners. Det pågår redan idag ett samarbete mellan SEEL, Chalmers och RISE, där det drivs forsknings- och utvecklingsarbete i absolut världsklass

I dagsläget har vi ca 65 st olika företag och verksamheter i området. Ett flertal av de hyresgäster som bedriver verksamhet i området är logistikföretag samt även företag inom fordonsindustrin, ett par av dessa med stark koppling till elektromobilitet. Vi har även flygverksamhet i form av helikopterflyg - ambulanshelikopter, sjöräddningshelikopter och polishelikopter som utgår härifrån. I området arbetar totalt ca 400 st personer i de olika verksamheterna. Utvecklingen av Säve skulle på sikt kunna tillföra mer än 7 000 nya jobb här på plats.

Kommunikationer

Med buss nr 36 tar man sig enkelt och smidigt mellan Hjalmar Brantingsplatsen och Säve Flygplats.

Parkering

Parkeringsmöjligheter vid fastigheten

  • Läget
  • Göteborgs Hamn 15 min
  • Restaurang

Faciliteter i fastigheten

Garage Restaurang

Service i området

Buss Parkering Restaurang

Karta

Dokument

Kontaktperson

Uthyrare

Helena Dellborg

Fråga oss!

Nyfiken på den här lokalen? Eller behöver du hjälp att hitta rätt lokal för din verksamhet? Oavsett om du vet exakt vad du söker eller om du behöver rådgivning, så finns vi här och hjälper till.

Vi ser fram emot att höra av dig.

Intresseanmälan

Kontaktinformation

All behandling av personuppgifter sker i enlighet med dataskyddsförordningen och annan dataskyddslagstiftning. Läs mer om GDPR

Liknande lokaler i Göteborg