Gå till huvudinnehåll

Örebro City

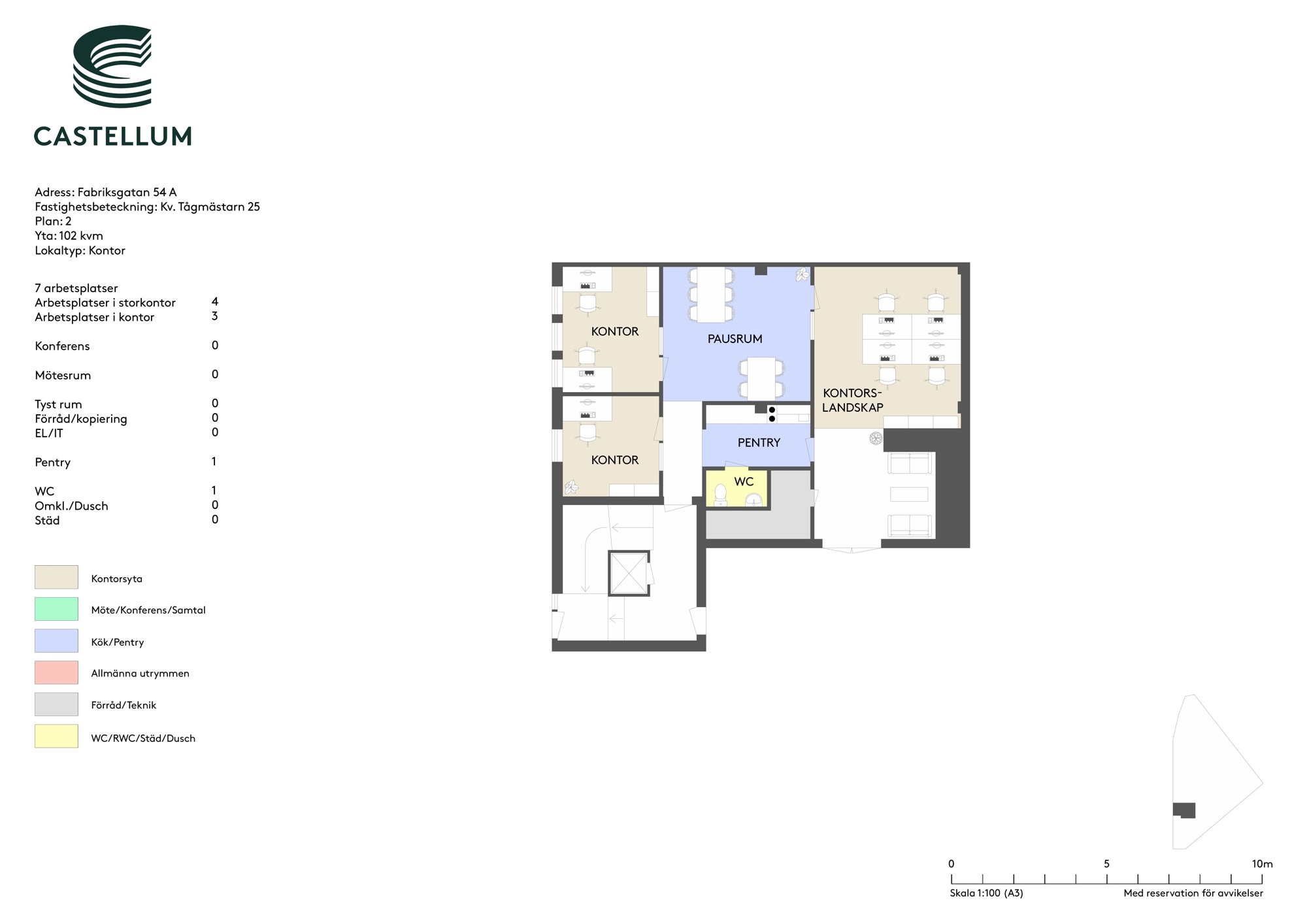
Fabriksgatan 54 A

Kontor Lager/Logistik

Yta

102 kvm

Arbetsplatser

1 - 6 st

Så räknar vi antal arbetsplatser

Detta spann är en uppskattning. Det finns flera faktorer som påverkar hur många arbetsplatser som kan rymmas i en lokal. Inte bara storleken på själva lokalen utan även hur den disponeras. Exempelvis kräver en lokal med många enskilda kontor mer plats än öppen planlösning. Andra begränsningar kan vara tillgången på luft och kyla, eller utrymningsvägar.

Tillträdesdatum

Enl. ök.

Våningsplan

1

Fin kombinerad kontors- och lagerlokal

Är er verksamhet i behov av både lager och kontor, samtidigt som ni vill sitta centralt och lättillgängligt i Örebro?
Då kanske denna lokal kan passa er bra, belägen en halv trappa upp (bottenvåningen) med parkeringsmöjligheter precis utanför.

Lokalen har ett gynnsamt läge då den ligger precis vid den södra infartsleden till centrala Örebro vilket bidrar till att man enkelt och smidigt kan ta sig till och från kontoret utan att fastna i den hektiska stadstrafiken. Samtidigt når ni Örebros stadskärna och Södra Station inom några minuters promenad där ni kan ta del av dess rika utbud av restauranger, butiker och lokal/regional-trafik med mera

Fastigheten har en gemensam upphöjd innergård med sittplatser där ni kan njuta av förmiddagskaffet samtidigt som ni knyter nya kontakter i huset.

I anslutning till fastigheten finner ni Drottningparken där även Örebros skatepark finns, som är en av Sveriges största, bästa och vackraste skateparker. På sommaren finns här även en liten kioskverksamhet där man kan ta en glasspaus i solen och titta på alla duktiga åkare.

Fastigheten ligger granne med Virginska skolan som driver en bufférestaurang, frisörsalong och konditori som vissa dagar i veckan är öppet till mycket förmånliga priser.

Vill man motionera på lunchen så finns både bra promenadstråk, Gustavsviks gym & motionssim och närheten till Backahallen där man kan spela både badminton, tennis och padel.

Planlösning

Planlösningen är uppdelad och flexibel i sin utformning. Det finns två regelrätta kontor och en lite större yta, som kan användas till fler skrivbord, lagerplats eller varför inte som ett aktivitetsrum.
I anslutning till pentryt finns en generös pausyta med plats för både lunchbord och kaffehörna.

Inflytt enlig överenskommelse.

Området

Utmärkt läge strax utanför centrala Örebro.
Bra mix av stora och små hyresgäster.

Kommunikationer

Avstånd till centrum 900 m. Södra Station inom 500 m.
Lokalbussar inom 700 m. Fastigheten nås smidigt med bil via
södra infartsleden till Örebro.

Parkering

Parkering i mån av plats för hyresgäster.

Service

Närhet till ett flertal restauranger.

Fastigheten

Fastigheten ligger precis vid den södra infartsleden till centrala Örebro vilket gör att du kommer direkt ut på E18/E20
mot Göteborg och Stockholm.

  • Närhet till Södra Station
  • Laddstolpar
  • Nära city och grönområde

Faciliteter i fastigheten

Parkering Elbilsladdning

Service i området

Buss Parkering Restaurang Café Elbilsladdning

Energi & hållbarhet

  • Certifieringar: LEED O+M, Gold
  • Total energianvändning (2025): 8 kWh/m²
  • Klimatpåverkan: 1,64 kg CO₂e/m² (platsbaserad)

Andra hyresgäster i fastigheten

DHL Nordic AB - Falck Sverige AB - Tågmästaren 25 - EG Sverige AB - Kinnarps - Aveki - Thermia - RTB Revision AB - Menardi Juridik - Datekadministration - Närke Isolering AB - HäradSkog i Örebro Aktiebolag - Etteplan - Centerpartiet - Telebolaget Mk AB - Byggstrateg - Psykolog Maria Klimkowicz AB - Tarkett Aktiebolag - Nivea - HIQ - Löfbergs Lila - Fazer - Essity Hygiene and Health AB - Happy User AB - Assemblin El AB

Karta

Dokument

Kontaktperson

Kommersiell Förvaltare

Tomas Carlsson

Fråga oss!

Nyfiken på den här lokalen? Eller behöver du hjälp att hitta rätt lokal för din verksamhet? Oavsett om du vet exakt vad du söker eller om du behöver rådgivning, så finns vi här och hjälper till.

Vi ser fram emot att höra av dig.

Intresseanmälan

Kontaktinformation

All behandling av personuppgifter sker i enlighet med dataskyddsförordningen och annan dataskyddslagstiftning. Läs mer om GDPR

Ett eget husteam ingår i hyran

Som hyresgäst hos oss får ni ett lokalt husteam som ser till att ni trivs och att allt fungerar som det ska. Vi hjälper till med allt från fastighetsskötsel och energioptimering till skyltning och parkering. Ingen fråga är för stor eller för liten. Och skulle era behov förändras brukar vi alltid kunna erbjuda en lösning, vad det än gäller. Varmt välkommen till en värd bortom det förväntade.

Liknande lokaler i Örebro