Gå till huvudinnehåll

Örebro Aspholmen

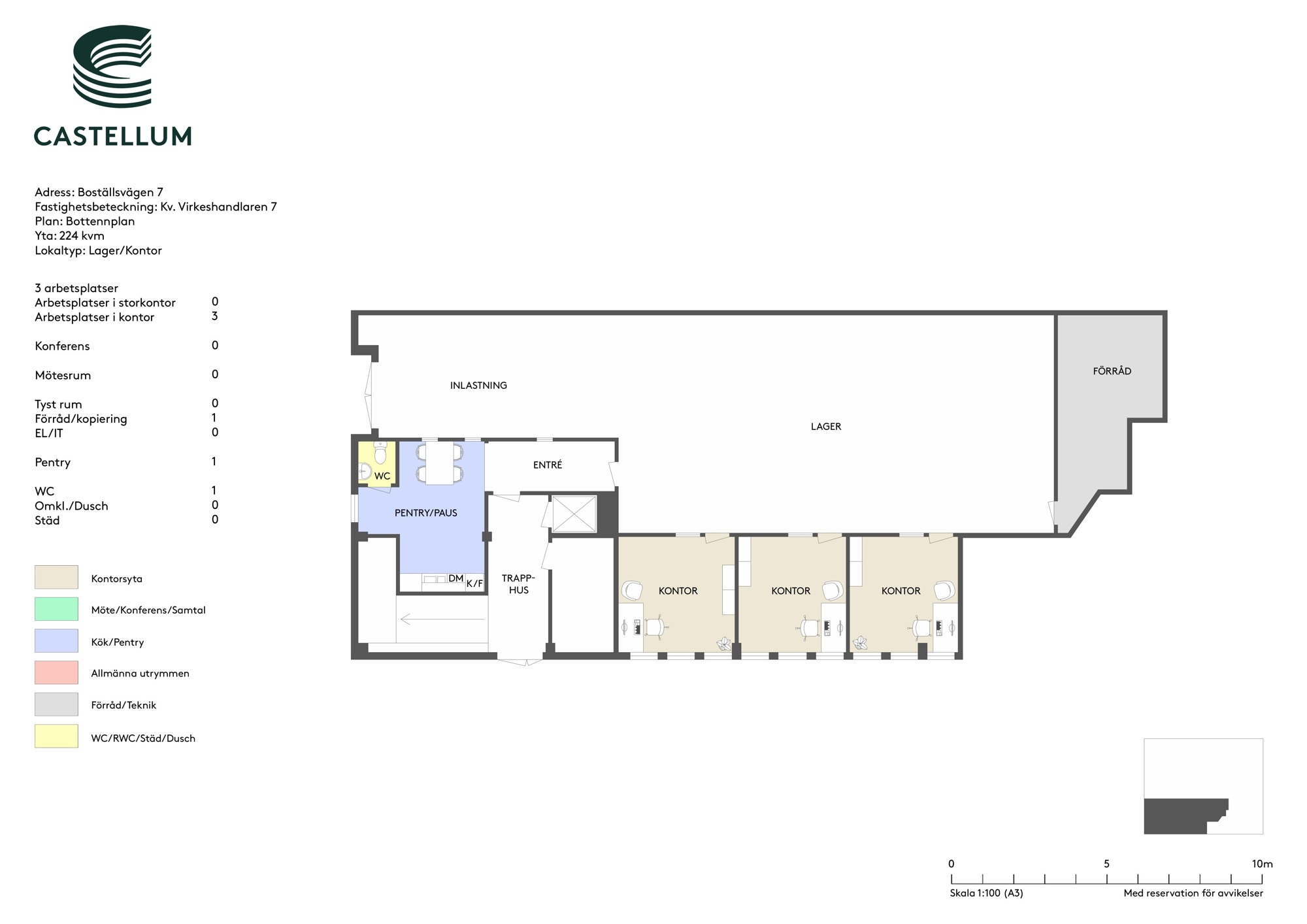
Boställsvägen 7

Kontor Lager/Logistik

Yta

224 kvm

Arbetsplatser

1 - 4 st

Så räknar vi antal arbetsplatser

Detta spann är en uppskattning. Det finns flera faktorer som påverkar hur många arbetsplatser som kan rymmas i en lokal. Inte bara storleken på själva lokalen utan även hur den disponeras. Exempelvis kräver en lokal med många enskilda kontor mer plats än öppen planlösning. Andra begränsningar kan vara tillgången på luft och kyla, eller utrymningsvägar.

Tillträdesdatum

Enl. ök.

Våningsplan

1

Lager- och kontorslokal med trivsamt läge på Aspholmen!

Varmt välkomna till denna trivsamma lokal, strategiskt belägen på Aspholmen. Här sitter ni lättillgängligt i entréplan med egen port och smidigt att parkera bilen.

Lokalen erbjuder er lageryta med egen port för inlastning, förråd, tre kontor och pentry med tillhörande pausyta samt WC.

Här finns även möjlighet att ladda elbilen för er som har behov av miljövänliga transportalternativ. Dessutom har ni tillgång Aspholmens stora utbud av närservice så som lunchrestauranger, gym, padel, café och bekväm cykelväg till Örebro city!

Lokalen är idag 224 kvm men här finns möjlighet att öppna upp till en av grannlokalerna för att få mer yta om ytterligare ca 150 kvm.

Varmt välkomna att kontakta oss för mer information och visning!

Planlösning

Lokalen är fördelad på lager, förråd, tre kontorsrum och paustrum med pentry och WC. Inlastning till lager via port och entré via trapphus.

Området

Aspholmen är ett av Örebros snabbast växande områden och det är inte undra på. Här har du allt du behöver för att lösa det där kluriga vardagspusslet. Vill du uträtta ärenden eller träna under lunchen? Här finns ett varierat utbud av butiker och träningsanläggningar, som till exempel gym, padel, bowling, simulatorgolf, simhall och massage. För den hungriga finns också mycket att välja på, allt från sallader och husmanskost till kebab och italienskt. Och varför inte passa på att köpa fredagsgodis eller fika till konferensen?
Du tar dig enkelt hit, enkelt ut på E18/E20 och enkelt in till stan.

Kommunikationer

Tack vare närheten till E18/E20 tar du dig snabbt in och ut ur området. Området ligger både smart och centralt, oavsett om du tar dig hit med buss, bil eller varför inte cykel? En fin och nyrenoverad cykelbana löper hela vägen in till city.

Parkering

På Aspholmen är det lätt att parkera bilen, här finns gott om p-platser i hela området. Urladdat batteri eller tom tank? Inga problem, här har du nära till såväl laddstolpar som bensinstationer.

Fastigheten

I fastigheten finns butiks-, kontors- och lagerlokaler.
Förnyelsebar fjärrvärme och grön el.

  • Lättillgängligt läge
  • Lager med egen port
  • Möjlighet till elbilsladdning

Faciliteter i fastigheten

Parkering Elbilsladdning Restaurang Gym

Service i området

Buss

Energi & hållbarhet

  • Total energianvändning (2025): 13 kWh/m²
  • Klimatpåverkan: 2,52 kg CO₂e/m² (platsbaserad)

Andra hyresgäster i fastigheten

Nordlo - SITECH Sverige - Avarn Security - Avonova Hälsa AB - Kiwa Sweden AB - Virkeshandlaren 7 - Björnberg IT Partner - Epiroc Sweden AB - Novatic Industrial AB - A Hub, A-hub - ASSA ABLOY Entrance Systems Sweden AB - Account Ekonomipartner AB - EBAB - Fronta - Arkeologgruppen i Örebro AB - Konecranes AB - Virkeshandlaren 7 - Fiskarhedenvillan - ECAB Ekonomicentra AB - MOBA Sweden AB - ADK Tjänst AB - Blomés Eltjänst AB - Köksteam Riab AB - Härjedals Kök AB - Assemblin El AB

Karta

Dokument

Kontaktperson

Kommersiell Förvaltare

Reynolds Ndugwa Kigula

Fråga oss!

Nyfiken på den här lokalen? Eller behöver du hjälp att hitta rätt lokal för din verksamhet? Oavsett om du vet exakt vad du söker eller om du behöver rådgivning, så finns vi här och hjälper till.

Vi ser fram emot att höra av dig.

Intresseanmälan

Kontaktinformation

All behandling av personuppgifter sker i enlighet med dataskyddsförordningen och annan dataskyddslagstiftning. Läs mer om GDPR

Liknande lokaler i Örebro