Gå till huvudinnehåll

Jönköping Ljungarums Industriområde

Granitvägen 7

Kontor

Hyresindikation

81 000 kr/mån

Detaljerad hyresinformation

Hyresindikation 80 850 kr per månad för kontor och lager ex driftskostnader.
20 000 kr per månad för uteyta.

Yta

693 kvm

Arbetsplatser

5 - 18 st

Så räknar vi antal arbetsplatser

Detta spann är en uppskattning. Det finns flera faktorer som påverkar hur många arbetsplatser som kan rymmas i en lokal. Inte bara storleken på själva lokalen utan även hur den disponeras. Exempelvis kräver en lokal med många enskilda kontor mer plats än öppen planlösning. Andra begränsningar kan vara tillgången på luft och kyla, eller utrymningsvägar.

Tillträdesdatum

2027-01-01

Våningsplan

1

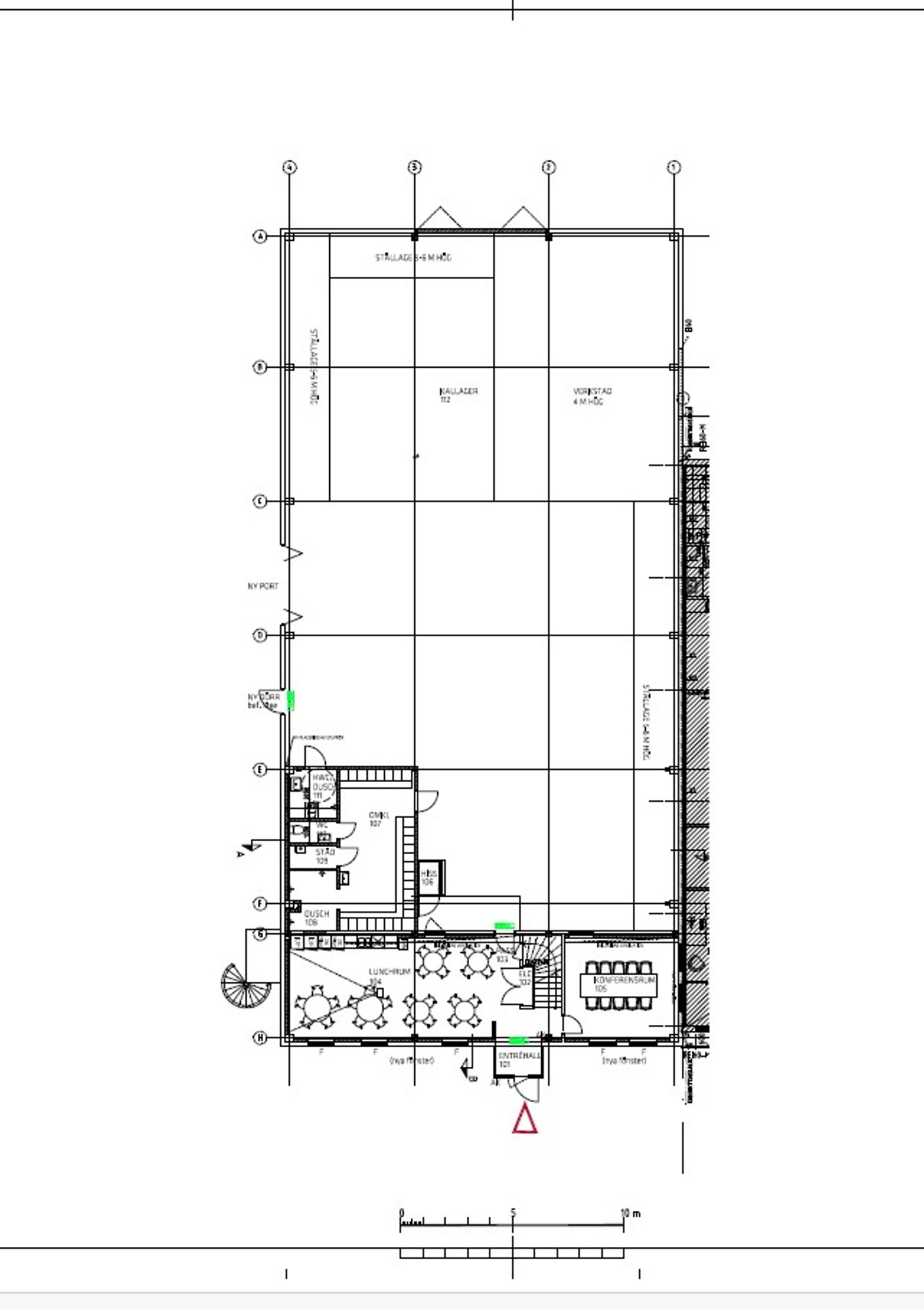
Rymlig och flexibel lokal med strategiskt läge i Jönköping

Nu finns möjlighet att hyra en välplanerad och mångsidig lokal om närmare 700 kvm, belägen på attraktiva Gamla Flygfältet i Jönköping. Här erbjuds en optimal kombination av lager, kontor och personalutrymmen – perfekt för verksamheter som söker både funktionalitet och komfort.

Lagerdelen omfattar drygt 500 kvm och kompletteras av en stor port som gör lastning och lossning smidig och effektiv. Till lokalen hör även en generös asfalterad uteyta om cirka 800 kvm, vilket skapar utmärkta förutsättningar för logistik, uppställning eller annan verksamhetsanpassning.

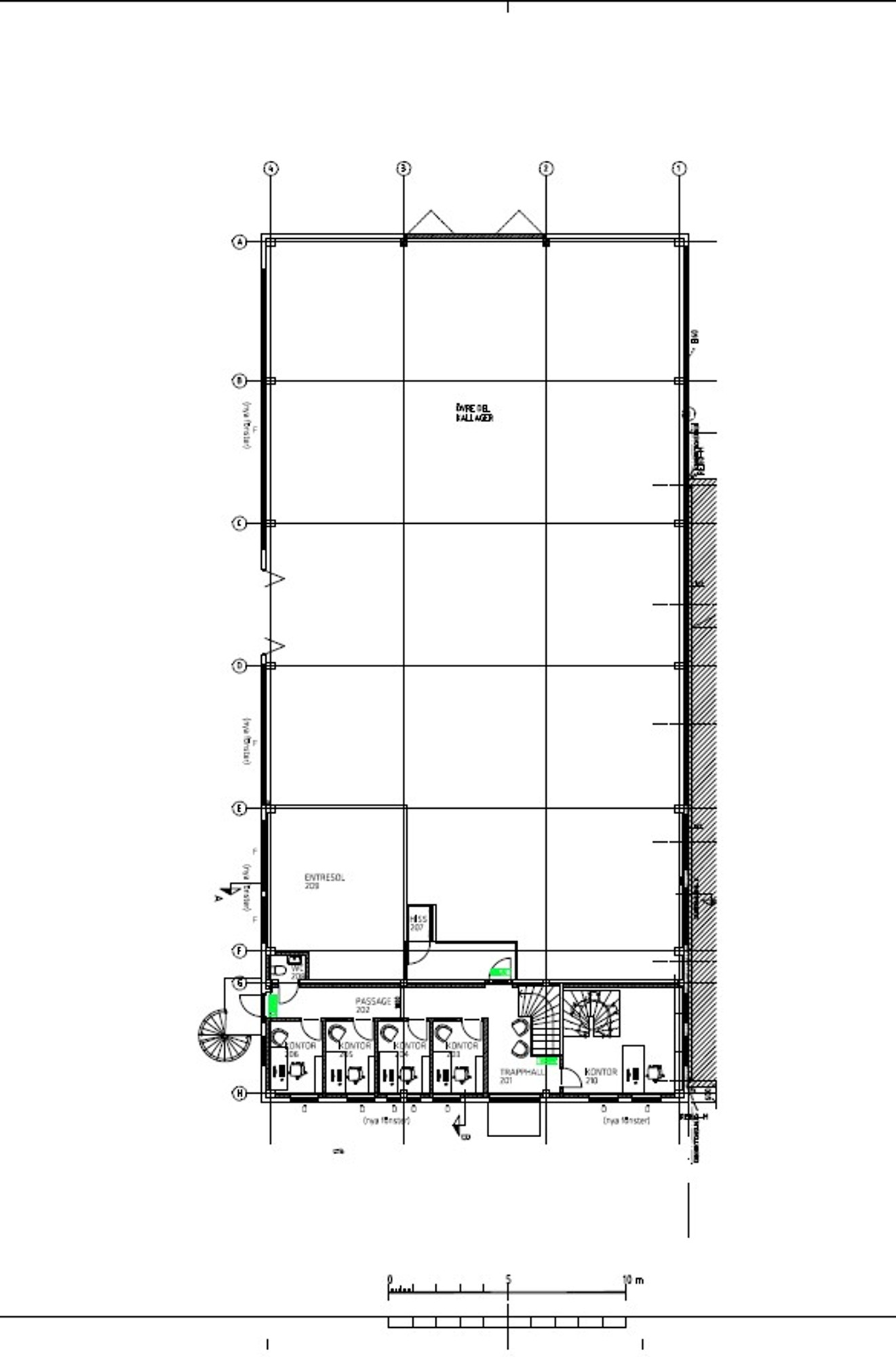
På markplan finns praktiska ytor såsom konferensrum/kontor, kök/pentry samt omklädningsrum. En trappa upp möts du av en rymlig entresol med fem kontor, konferensrum, ett väl tilltaget kök med pentry, omklädningsrum samt tre WC. Här finns även en terrass med utsikt över lagerdelen, vilket ger en luftig och inspirerande arbetsmiljö.

Fastigheten är belägen i ett etablerat och expansivt företagsområde med närhet till flera välkända aktörer, vilket skapar goda affärsmöjligheter och ett starkt nätverk.

Detta är en lokal som passar utmärkt för företag inom lager, logistik, handel eller lättare industri – med möjlighet att anpassa ytorna efter just er verksamhet.

Välkommen att upptäcka potentialen!

Området

Fastigheten är belägen på Ljungarums industriområde med närhet både till Jönköping city och Solåsens centrum. Området inrymmer handel, tjänsteproducerande företag, lättare industri och restauranger.

Kommunikationer

Utmärkta vägförbindelser till E4:an, centrum och Asecs. Goda bussförbindelser med centrum.

Parkering

Parkeringsplatser till husets hyresgäster och dess besökare finns i anslutning till fastigheten.

Fastigheten

Fastigheten är belägen på Ljungarums industriområde. Med sitt centralt belägna läge är fastigheten lättillgänglig. Den rymmer en mix av tjänsteproducerande företag, lagerlokaler och kontor.

  • Inhägnad asfalterad utegård ca 800 kvm
  • Centralt läge
  • Bra mix av butiker/service

Energi & hållbarhet

  • Total energianvändning (2025): 9 kWh/m²
  • Klimatpåverkan: 6,68 kg CO₂e/m² (platsbaserad)

Andra hyresgäster i fastigheten

Axima AB - Elektroskandia Sverige AB- Örontofsen 5 - Malmixx Projekt AB-Örontofsen 5 - Skjutebo Kraft AB - Rekogruppen - Småländska Städaktiebolaget - Ringvall Reklam Aktiebolag - Energigruppen i Jönköping AB

Karta

Dokument

Kontaktperson

Uthyrare

Jonas Larsson

Fråga oss!

Nyfiken på den här lokalen? Eller behöver du hjälp att hitta rätt lokal för din verksamhet? Oavsett om du vet exakt vad du söker eller om du behöver rådgivning, så finns vi här och hjälper till.

Vi ser fram emot att höra av dig.

Intresseanmälan

Kontaktinformation

All behandling av personuppgifter sker i enlighet med dataskyddsförordningen och annan dataskyddslagstiftning. Läs mer om GDPR

Ett eget husteam ingår i hyran

Som hyresgäst hos oss får ni ett lokalt husteam som ser till att ni trivs och att allt fungerar som det ska. Vi hjälper till med allt från fastighetsskötsel och energioptimering till skyltning och parkering. Ingen fråga är för stor eller för liten. Och skulle era behov förändras brukar vi alltid kunna erbjuda en lösning, vad det än gäller. Varmt välkommen till en värd bortom det förväntade.

Liknande lokaler i Jönköping