Gå till huvudinnehåll

Stockholm Sundbyberg

Sturegatan 10

Kontor

Yta

2 700 kvm

Tillträdesdatum

Enl. ök.

Unik byggnad i hjärtat av Sundbyberg med plats för framtidens idéer

På en av Sundbybergs mest attraktiva adresser, Sturegatan 10, hittar du en fastighet som kombinerar historisk atmosfär med moderna möjligheter. Här möts funktionalistisk arkitektur, högt i tak, ljusa väggar och halvmåneformade korridorer med konstnärlig utsmyckning. En byggnad med atmosfär, unika lokaler med karaktär och storslagen rymd.

De tre planen omfattar totalt 2 700 kvm med generösa ytor, stora och små salar, samlingsytor, personalytor och reception. Här finns bland annat den tidigare biosalongen och teatersalongen, som tillsammans med flexibla rum och ateljéer gör huset perfekt för en mix av kreativa, publika och kommersiella verksamheter.

Möjligheterna framåt är stora:
•Kultur- och eventhus – utställningar, scenkonst, konserter, workshops.
•Utbildning – gymnasium, folkhögskola, vuxenutbildning, studieförbund eller andra kreativa skolprofiler.
•Studios & skapande – film- och fotoproduktion, musik- och poddstudios och makerspaces.
•Profilkontor – för alla som vill ha en inspirerande och unik miljö.
•Hybridlösningar – en mix av verksamheter som samverkar och skapar ett levande hus.

Byggnaden är q-märkt och varsamt moderniserad för att behålla sin karaktär men möter dagens alla krav. Här får du en plats som både bär på historia och öppnar dörren till massor av nya möjligheter.

Välkommen att upptäcka hur byggnaden kan bli ett levande nav för kultur, utbildning, möten och skapande i hjärtat av Sundbyberg.

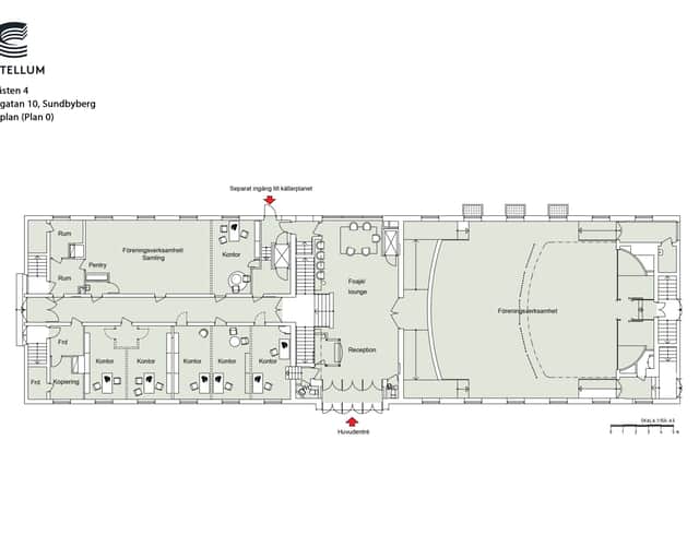
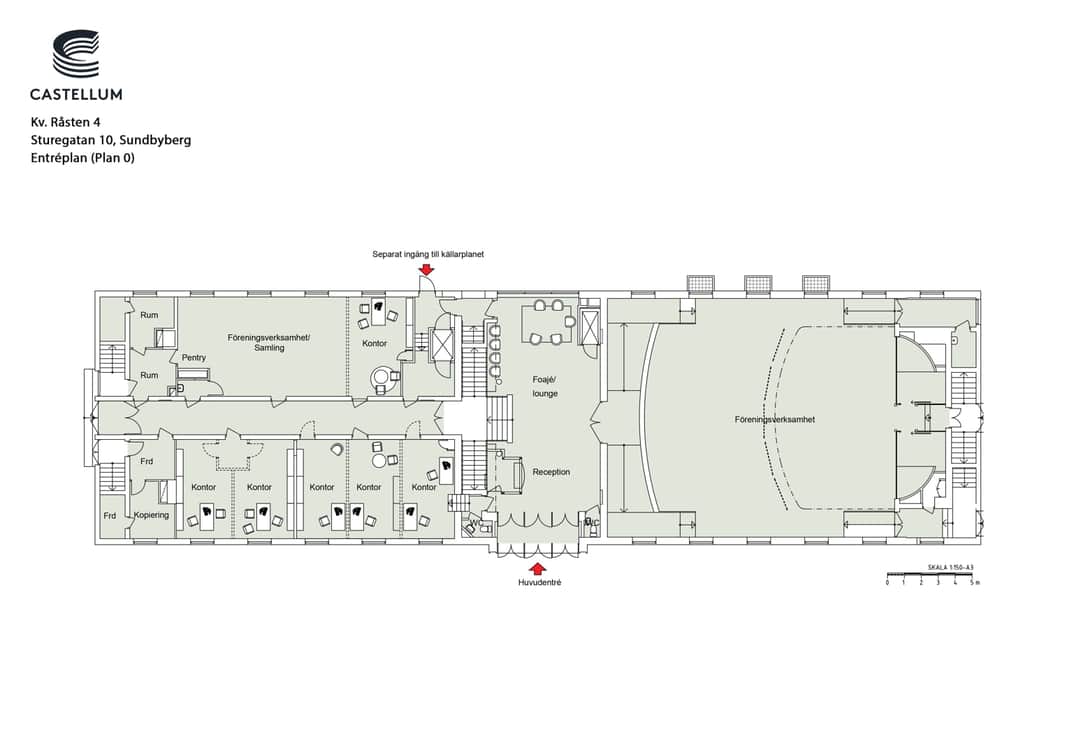
Planlösning

NO:
Källarplan består till stor del av öppen yta med intilliggande pentry samt grupprum, även mindre datarum och vilrum finns i källarplanet. Praktiska utrymmen som serverrum och förråd finns här.

Entréplan har en flera enskilda kontorsrum, reception, loungeyta samt två samlingsrum i olika storlekar. Här finns även praktiska ytor som förråd och WC.

Plan 1 har en stor indelningsbar yta för kontorsplatser eller föreningsverksamhet. Här finns även mindre rum, pentry och loungeyta. Från plan 1 har man även tillgång till det stora samlingsrummet som man kan nå från entréplan. På detta plan finns även flertal grupprum och mindre rum.

Plan 2 har en stor öppen yta för kontorsplatser samt plats för material-bibliotek och förråd. Här finns också ett konferensrum sam ett stort rum för möten eller föreningsverksamhet.

Vindsplanet består av ett grupprum samt två förråd.

Skolfastighet med genomtänkt struktur och flexibilitet

Byggnaden kan enkelt utformas utifrån ert behov för att fungera optimalt som skola och erbjuder i en alternativ utformning en effektiv planlösning för så väl gymnasium som vuxenutbildning eller studieförbund. Här kan skapas goda förutsättningar för lärande genom väl avgränsade undervisningsmiljöer och generösa gemensamhetsytor både för elever och personal.
Klassrum i flera storlekar, grupprum, fokusrum och öppna studieytor som stödjer varierade arbetssätt och modern pedagogik. Elevhälsa, skolledning och administration kan integreras i byggnaden på ett sätt som ger närhet till undervisningen men samtidigt möjlighet till avskildhet.
Planlösningen är logiskt uppbyggd för god överblick, trygga flöden och enkel orienterbarhet.

Ritningsförslag som enkelt kan ändras utifrån era förutsättningar och behov.
•Plan -1 (ca 401 m²): Elevmatsal med pentry, grupprum, omklädning, dusch, vilrum, RWC samt förråd och teknik. Separat entré.
•Plan 0 (ca 721 m²): Entréplan med reception/lounge, fem klassrum, lärarrum, samtalsrum och personalytor.
•Plan 1 (ca 713 m²): Fyra klassrum, studieytor, fokus- och grupprum, elevpaus samt elevhälsa och lärarutrymmen.
•Plan 2 (ca 531 m²): Större klassrum, skolledning (rektor, admin, SYV, kurator), studieytor och lounge.
•Plan 3 (ca 76 m²): Vaktmästeri samt drift- och teknikutrymmen.

Området

Sundbyberg är Sveriges minsta kommun – och den mest expansiva. Här möter du en spännande blandning av bostäder, arbetsplatser, butiker och restauranger. Med över 2 500 registrerade företag och en växande befolkning är Sundbyberg en av Stockholms mest dynamiska stadsdelar – men behåller ändå sin unika småstadskänsla.

Sturegatan är Sundbybergs självklara huvudgata och erbjuder ett brett utbud av service, mat och shopping. Byggnaden ligger mitt i denna levande stadskärna och blir en naturlig mötesplats.

Kommunikationer

Här är det nära till allt. På bara några minuters promenad når du en av Sveriges största trafikknutpunkter:

•Tunnelbana, pendeltåg och tvärbana som snabbt tar dig in till centrala Stockholm (8 minuter).
•Bussar och fjärrtåg för smidiga resor regionalt och nationellt.
•Nära till E4 och E18 för enkel bilpendling.

Här sitter du alltså mitt i Stockholmsregionen, med optimal tillgänglighet för både medarbetare, besökare och publik.

Fastigheten

I början av 1920-talet hade föreningslivet växt sig så stort att det inte längre fick plats i det befintliga Folkets Hus. 1925 startades en nybyggnadsfond där 10 öre per vecka togs ut av fackföreningsmedlemmar. Detta gav startkapital till denna fastighet som blev Sundbybergs Nya Folkets Hus med en modern biosalong och en teaterdel. Under åren 2000 och 2001 gjordes en omfattande men varsam, då exteriör och ursprunglig interiör är q-märkt, renovering och modernisering av byggnaden som då anpassades till kontorsverksamhet.


Här möter du unika moderna lokaler som fortfarande talar en intressant historia.

Faciliteter i fastigheten

Balkong Omklädningsrum Café Kök Reception

Service i området

Buss Restaurang Café Tåg Gym Grönområde T-bana

Energi & hållbarhet

  • Klimatpåverkan: 0,09 kg CO₂e/m² (platsbaserad)

Karta

Dokument

Kontaktperson

Uthyrare

Hannah Karlöf

Fråga oss!

Nyfiken på den här lokalen? Eller behöver du hjälp att hitta rätt lokal för din verksamhet? Oavsett om du vet exakt vad du söker eller om du behöver rådgivning, så finns vi här och hjälper till.

Vi ser fram emot att höra av dig.

Intresseanmälan

Kontaktinformation

All behandling av personuppgifter sker i enlighet med dataskyddsförordningen och annan dataskyddslagstiftning. Läs mer om GDPR

Ett eget husteam ingår i hyran

Som hyresgäst hos oss får ni ett lokalt husteam som ser till att ni trivs och att allt fungerar som det ska. Vi hjälper till med allt från fastighetsskötsel och energioptimering till skyltning och parkering. Ingen fråga är för stor eller för liten. Och skulle era behov förändras brukar vi alltid kunna erbjuda en lösning, vad det än gäller. Varmt välkommen till en värd bortom det förväntade.

Liknande lokaler i Stockholm