Gå till huvudinnehåll

Borås Regementsområdet

Kasernvägen 10

Kontor

Yta

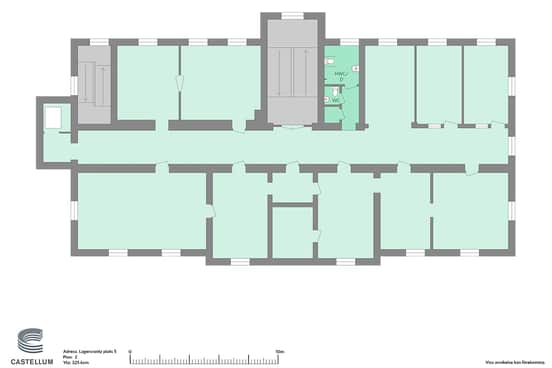
342 kvm

Arbetsplatser

10 - 16 st

Så räknar vi antal arbetsplatser

Detta spann är en uppskattning. Det finns flera faktorer som påverkar hur många arbetsplatser som kan rymmas i en lokal. Inte bara storleken på själva lokalen utan även hur den disponeras. Exempelvis kräver en lokal med många enskilda kontor mer plats än öppen planlösning. Andra begränsningar kan vara tillgången på luft och kyla, eller utrymningsvägar.

Tillträdesdatum

Enl. ök.

Våningsplan

1

Historisk byggnad i f d regementet I15

Ljust kontor med högt i tak och stora vackra spröjsade fönster i unik byggnad på historiska regementet I15. Härligt ljusinsläpp i lokalen från tre väderstreck som ger en trivsam arbetsmiljö för medarbetare och kunder. Det finns plats för både enskilt arbete i egna rum samt mötesrum och sociala ytor.

Det är en egen entré till lokalen. Byggnaden är utsmyckad med fantastiska detaljer.

Bara 1,5 km från Borås centrum ligger gamla regementet med fina grönområden utanför dörren. Perfekt att ta en lunchpromenad!

Kan detta bli ditt nya kontor att göra framgångsrika affärer i?

Det finns väl fungerande kollektivtrafik till området och gott om parkeringsplatser i anslutning till fastigheten.

Välkommen att kontakta oss för mer info och visning!

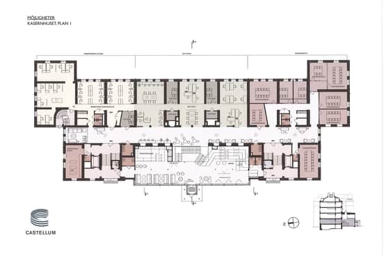
Planlösning

Lokalen består av kontorsrum i varierande storlekar samt mötesrum.

Området

Mycket grönytor runt fastigheten och närhet till friluftsområdet vid Pickesjön.

Kommunikationer

Lättillgängligt för bilburna, tar ca 45 minuter mellan Göteborg och Borås. Landvetter Flygplats når man på ca 30 minuter.
Busshållplats finns på området med turer till resecenter.
Goda kommunikationer med buss samt tåg. Motorväg hela vägen mellan Borås och Göteborg.

Parkering

Det finns gott om parkeringsplatser på området.

Service

Närhet till lunchrestauranger och till Borås City med all tänkbar service.

Fastigheten

Gamla regementet I15 byggdes år 1624 och avvecklades år 1998. Fastigheten består av 8 st huskroppar och det bedrivs bl a kontors- och skolverksamhet i lokalerna. Anrika vackra stenbyggnader med mycket rymd och högt i tak.

  • Fd regementet
  • Grönområde
  • Nära trafikleder

Faciliteter i fastigheten

Parkering

Service i området

Buss

Energi & hållbarhet

  • Total energianvändning (2025): 18 kWh/m²
  • Klimatpåverkan: 5,35 kg CO₂e/m² (platsbaserad)

Andra hyresgäster i fastigheten

Kunskapsskolan i Sverige Aktiebolag - Gothia Reklamfoto AB - Montessoriskolan Malmen - AKISA-Auktoriserade Konsulter i Sverige - Regementsmässen I15 AB - Borås Stad - Kjelltex AB - Doo AB - Brf Lagerkransen i Borås - BRF Kaserngården

Karta

Dokument

Kontaktperson

Uthyrare

Erik Williamson

Fråga oss!

Nyfiken på den här lokalen? Eller behöver du hjälp att hitta rätt lokal för din verksamhet? Oavsett om du vet exakt vad du söker eller om du behöver rådgivning, så finns vi här och hjälper till.

Vi ser fram emot att höra av dig.

Intresseanmälan

Kontaktinformation

All behandling av personuppgifter sker i enlighet med dataskyddsförordningen och annan dataskyddslagstiftning. Läs mer om GDPR

Liknande lokaler i Borås