Gå till huvudinnehåll

Stockholm Kista

Borgarfjordsgatan 14

Kontor

Yta

175 kvm

Tillträdesdatum

Enl. ök.

Våningsplan

6

Fint kontor för det mindre företaget

Letar du efter ett fräscht och fint kontor med smidig tillgång till allt du behöver? Denna välplanerade lokal på cirka 175 kvm erbjuder en modern och trivsam arbetsmiljö med plats för nio medarbetare. Här möts du av en smart struktur med arbetsplatser samlade i ett ljust kontorsrum, kompletterat med mötesrum i olika storlekar för både fokus och samarbete.
Pentry och lounge skapar en naturlig samlingspunkt för paus och informella möten, medan serverrum, kopiering och förvaring är praktiskt placerade för att underlätta vardagen. Två WC och städutrymme bidrar till en smidig och funktionell helhet.
Läget i Kista ger utmärkta kommunikationer och närhet till allt du behöver. Med Kista Galleria bara ett stenkast bort finns restauranger, butiker och service inom räckhåll. Dessutom erbjuds goda parkeringsmöjligheter för både anställda och besökare.
Välkommen på visning – här väntar en arbetsplats som kombinerar komfort, funktion och tillgänglighet.

Planlösning

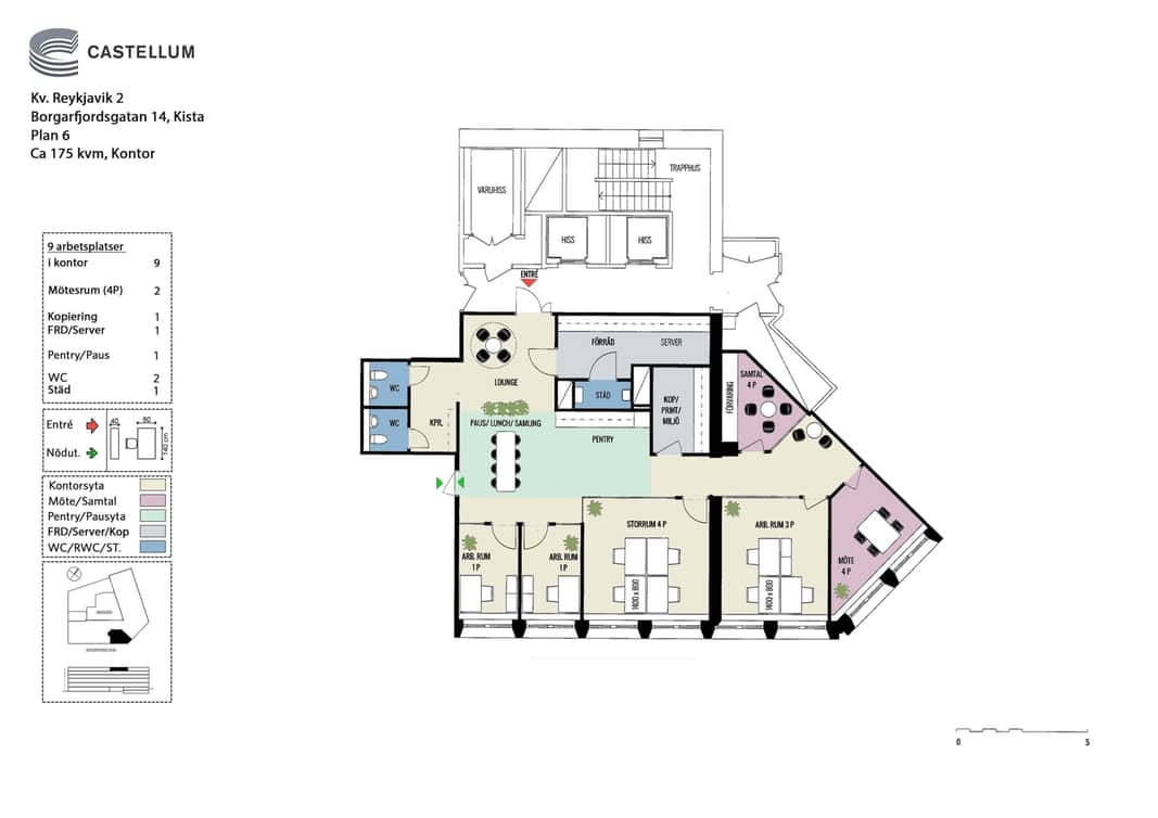
Planlösningen omfattar cirka 175 kvm och är utformad för att ge ett mindre team en effektiv och välfungerande arbetsmiljö. Direkt vid entrén möts man av en öppen och lättöverskådlig struktur där kontorsytan ligger centralt placerad med nio arbetsplatser samlade i ett gemensamt rum. Runt denna kärna finns flera mötes- och samtalsrum i olika storlekar – från mindre enpersonrum till mötesrum för fyra personer – vilket skapar goda möjligheter för både fokuserat arbete och samarbeten.
Längs ena sidan av lokalen ligger pentry och pausytor, utformade för lunch, fika och informella möten. Intill finns kopierings- och miljöstation samt ett separat server- och förrådsrum som stödjer verksamhetens tekniska och praktiska behov. Två WC och ett städutrymme är placerade nära entrén för smidigt flöde och god tillgänglighet.
Helheten är kompakt men genomtänkt, med tydliga funktioner och logiska rörelsemönster som gör lokalen lätt att använda i vardagen. Planlösningen skapar en balans mellan arbetsro, möten och sociala ytor och lämpar sig väl för företag som söker en effektiv och trivsam kontorsmiljö.

Området

Hej, hello, guten tag, ni hao, marhaba. Välkommen till Kista. Platsen där människor från hela världen samlas för att upptäcka, utforska, uppfinna och uppleva. Här testkörs ny teknik, här breder gatukonsten ut sig, här överraskar restaurangerna och här frodas grönska och innovationer, precis som nya förmågor och forskarstjärnor.

Ändå har Kista mer att erbjuda. De närmaste åren kommer stadsdelen få flera tusen nya bostäder och arbetsplatser samt bli en del av tvärbanan, så att livet kan sprudla i varje hörn och under dygnets alla timmar. Och för att ytterligare ta vara på Kistas fulla potential har vi på Castellum gått samman med andra aktörer i ett initiativ som ger stadsdelen en kulturell och social skjuts.

Vad som händer mellan milstolparna är det ingen som vet. Men hör ni hemma bland de nytänkande, är detta platsen för er. Vi lovar att alltid vara på tårna för att hålla jämna steg med både ert företags och Kistas utveckling.

Kommunikationer

Kista är svårslaget om man vill sitta i ett område med bra kommunikationer. Det tar fem minuter att promenera från fastigheten till Kista tunnelbanestation. Flera busslinjer går genom området, bland annat buss 523 och 178 som stannar vid pendeltågsstationen Helenelund. Du tar dig till Arlanda och Bromma flygplats med pendeltåg eller flygbuss. Snart kommer även Tvärbanan att korsa Kista. Den byggs ut från Norra Ulvsunda via Bromma flygplats, Kista och vidare till Helenelund.

Service

En promenad på fem minuter från fastigheten ligger Kista Galleria. Den är en av Stockholms mest välbesökta gallerior och har ett stort utbud av shopping, restauranger och nöjesaktiviteter - bland annat bowling, bio och gokart.

Fastigheten

Ett attraktivt hus om totalt ca 12 000 kvm, med ljusa och effektiva lokaler. Parkering erbjuds i varmgarage och utomhus.
En kort promenad om 4-5 min leder till T-bana, busstorget och Kista galleria med dess rika utbud av service. Och lika nära är det till grönområden för en stärkande lunchpromenad.

  • Perfekt för det mindre företaget
  • Gott om parkering

Faciliteter i fastigheten

Parkering Garage Restaurang

Service i området

Gym T-bana

Energi & hållbarhet

  • Certifieringar: LEED O+M, Silver
  • Total energianvändning (2025): 18 kWh/m²
  • Klimatpåverkan: 2,88 kg CO₂e/m² (platsbaserad)

Andra hyresgäster i fastigheten

RKS - ALSO Sweden AB - ANSYS Sweden AB - Stockholms Kommun - Eatery Sverige AB

Karta

Dokument

Kontaktperson

Uthyrare

Rolf Marias

Fråga oss!

Nyfiken på den här lokalen? Eller behöver du hjälp att hitta rätt lokal för din verksamhet? Oavsett om du vet exakt vad du söker eller om du behöver rådgivning, så finns vi här och hjälper till.

Vi ser fram emot att höra av dig.

Intresseanmälan

Kontaktinformation

All behandling av personuppgifter sker i enlighet med dataskyddsförordningen och annan dataskyddslagstiftning. Läs mer om GDPR

Liknande lokaler i Stockholm