Gå till huvudinnehåll

Stockholm Smista

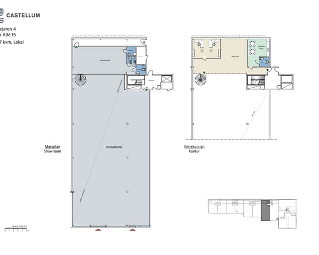
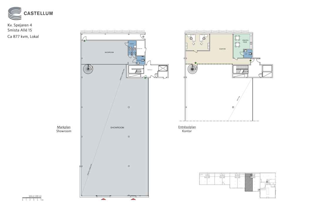
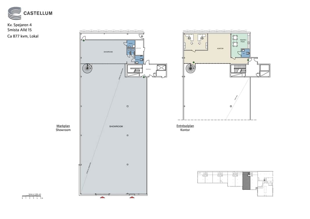
Smista Allé 15

Industri Lager/Logistik

Yta

877 kvm

Tillträdesdatum

Enl. ök.

Ledig lokal intill E4:an i fordonsklustret Smista

Så här fint kan ni som hyresgäst få i lokalen i Smista! Bilden ger en vision av hur lokalen kan se ut.

Smista Allé är Stockholms mest väletablerade handelsområde för motorrelaterad verksamhet.

Byggnaden ligger med ett unikt skyltläge mot E4/E20. Här passerar cirka 100 000 fordon per dag.

Lokalen passar perfekt som showroom och är modernt utformad med 6,6 meter fri takhöjd, stora glaspartier ut mot Smista Allé samt kontorsinredda entresolplan.

I fastigheten finns gott om parkering i de två parkeringsplanen.

Takhöjd: 6,6 meter fri takhöjd
Portstorlek: 3,5 x 3,5 meter
Bärighet: 1000 kg/kvm
Miljöklassificering: Miljöbyggnad Silver

Välkommen på visning!

Området

Smista Allé är beläget i direkt anslutning till E4/E20 i södra Stockholm.
Området har utvecklats av Castellum och är idag Stockholms mest väletablerade fordonskluster med aktörer såsom Audi, Porsche, Mercedes, BMW, Volkswagen, Lexus, Mini Cooper, Ford och Hedin Bil.

Förutom ett unikt skyltläge mot E4/E20 erbjuder Smista också närhet till handelsområdet Kungens Kurva, med flera etablerade varumärken, bland annat IKEA, Heron City, Mio. Allt detta endast 10 minuter från Stockholm.

Kommunikationer

Smista Allé löper parallellt med motorvägen E4/E20, mellan trafikplatserna Bredäng och Kungens Kurva. Flera bussar trafikerar området och tar dig smidigt till de närliggande tunnelbanestationerna. Närmaste tunnelbanestationen är Sätra som endast ligger fem minuters promenad bort.

Fastigheten

Fastigheten är en del av utveckling av Smista. Ett område som bland annat blivit ett bilhandelscentrum för premiummärken. Byggnaden med unik arkitektur ligger med utmärkt skyltläge utmed E4/E20.

  • Väletablerat fordonskluster
  • Bästa skyltläget i Stockholm
  • Direkt anslutning till E4/E20

Faciliteter i fastigheten

Lastport Parkering Skyltläge Garage Skyltfönster

Service i området

Buss Parkering Restaurang Café Hotell Shopping T-bana

Energi & hållbarhet

  • Certifieringar: Miljöbyggnad nyproduktion, Silver
  • Total energianvändning (2025): 12 kWh/m²
  • Klimatpåverkan: 3,48 kg CO₂e/m² (platsbaserad)

Andra hyresgäster i fastigheten

XPENG & JLR Smista - Tullinge Bil Sverige AB - Carcenter Luleå AB - Hexie New Energy Auto Service Sweden AB - Husqvarna AB - Ryds Bilglas AB - Spejaren 4 - Volkswagen Smista - Stockholm Carhouse AB

Karta

Dokument

Kontaktperson

Uthyrare

Mia Idre

Fråga oss!

Nyfiken på den här lokalen? Eller behöver du hjälp att hitta rätt lokal för din verksamhet? Oavsett om du vet exakt vad du söker eller om du behöver rådgivning, så finns vi här och hjälper till.

Vi ser fram emot att höra av dig.

Intresseanmälan

Kontaktinformation

All behandling av personuppgifter sker i enlighet med dataskyddsförordningen och annan dataskyddslagstiftning. Läs mer om GDPR

Ett eget husteam ingår i hyran

Som hyresgäst hos oss får ni ett lokalt husteam som ser till att ni trivs och att allt fungerar som det ska. Vi hjälper till med allt från fastighetsskötsel och energioptimering till skyltning och parkering. Ingen fråga är för stor eller för liten. Och skulle era behov förändras brukar vi alltid kunna erbjuda en lösning, vad det än gäller. Varmt välkommen till en värd bortom det förväntade.

Liknande lokaler i Stockholm