Gå till huvudinnehåll

Malmö Arlöv

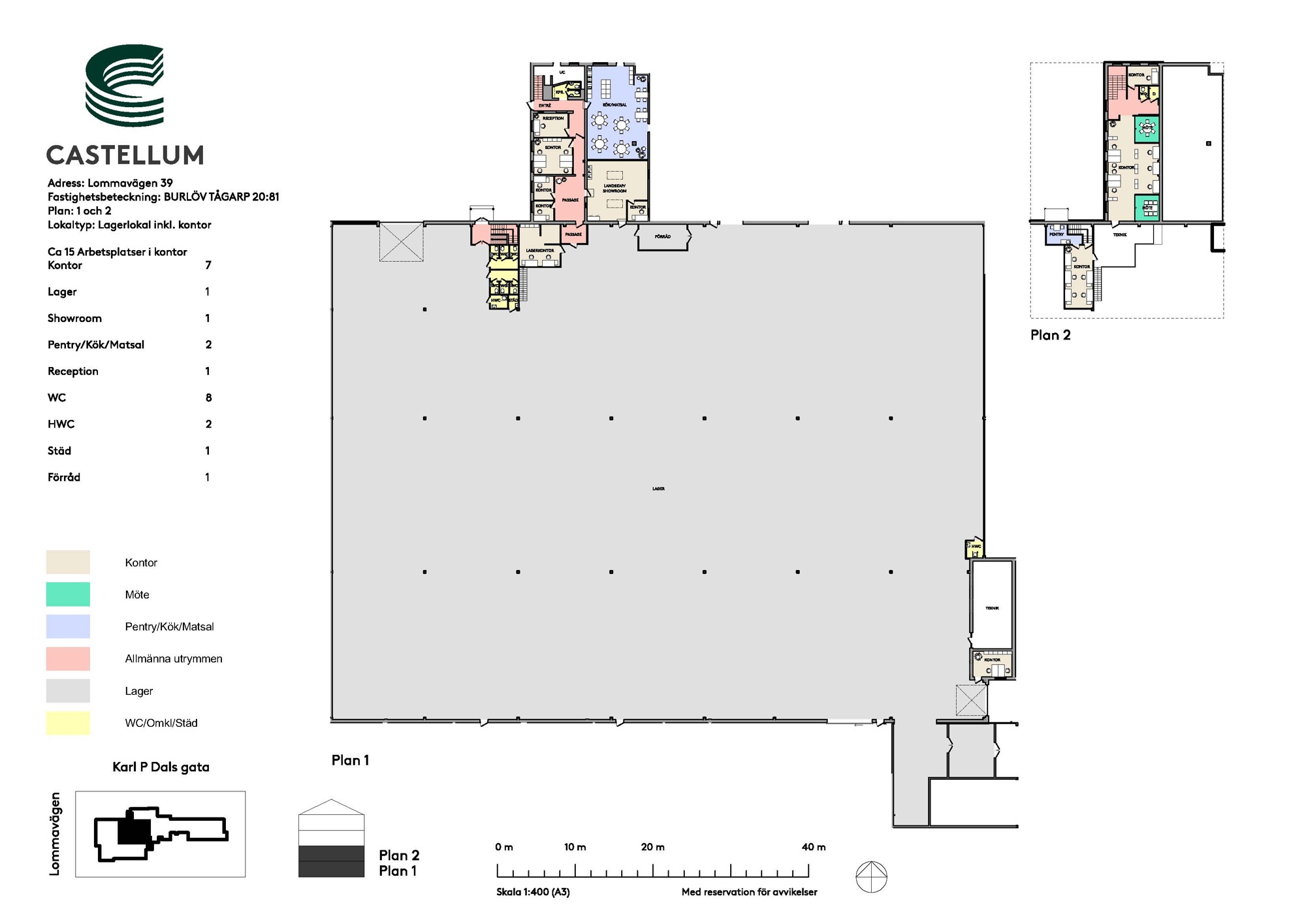
Lommavägen 39

Industri Kontor Lager/Logistik

Yta

5 437 kvm

Arbetsplatser

20 - 100 st

Så räknar vi antal arbetsplatser

Detta spann är en uppskattning. Det finns flera faktorer som påverkar hur många arbetsplatser som kan rymmas i en lokal. Inte bara storleken på själva lokalen utan även hur den disponeras. Exempelvis kräver en lokal med många enskilda kontor mer plats än öppen planlösning. Andra begränsningar kan vara tillgången på luft och kyla, eller utrymningsvägar.

Tillträdesdatum

Enl. ök.

Våningsplan

1

Större lager med tillhörande kontor i Arlöv

Lagerlokal om 5 437 kvm belägen i Arlöv. Lokalen utgörs av en större sammanhängande lageryta med kontorsdel och personalytor i anslutning, inklusive matsal. Utformningen ger möjlighet att samla lagerverksamhet, administration och personalfunktioner inom samma lokal.
Den generösa lagerytan ger förutsättningar för verksamheter med behov av effektiv lagerhållning och tydliga interna flöden. Ytan kan disponeras utifrån verksamhetens krav och lämpar sig för exempelvis lager, plock, pack och internlogistik. Lokalen ger möjlighet till en rationell struktur där flöden mellan olika funktioner kan organiseras på ett överskådligt sätt.

Planlösning

Lagerytan är i huvudsak öppen och sammanhängande, vilket ger goda förutsättningar för en effektiv disponering av ytan utifrån verksamhetens behov. Den öppna strukturen möjliggör tydliga interna flöden och en flexibel indelning för exempelvis lagerhållning, plock, pack och interna transportstråk.
I direkt anslutning till lagret finns kontorsytor samt matsal, vilket skapar närhet mellan lagerverksamhet, administration och personalfunktioner. Placeringen av dessa ytor ger ett funktionellt samband mellan olika delar av verksamheten och underlättar den dagliga driften.

Området

Fastigheten ligger centralt belägen i Arlöv med närhet till både Malmö och Lund och hela den expansiva Öresundsregionen.

Kommunikationer

På kort avstånd finns goda kommunikationer via E6 och ringlederna runt Malmö med direktförbindelse till Öresundsbron. Inom kort avstånd når man CMP och storflygplatsen kastrup. Region och Pågatåg stannar inom gångavstånd.

Service

Fastigheten ligger centralt beläget i Arlöv med närhet till affärer, banker köpcentrum m.m.

Fastigheten

Industri och lagerbyggnad centralt belägen i Arlöv. År 1898 bildades Ludvig Rössels Mekaniska Verkstads AB för tillverkning av vågar, järnvägsvagnar och spårvagnar. Samma år flyttade Rössel tillverkningen från Malmö till Arlöv där fabriken byggts 1897 - 98. Redan 1902 försattes företaget i konkurs, men verksamheten kom åter igång under firma AB Arlöfs Mekaniska Verkstad och Waggonfabrik. Produktionen inriktades helt på rullande järnvägsmateriel och industrin blev omfattande med omkring 1300 tillverkade vagnar per år. 1918 övertogs av konkurrensskäl Waggonfabriken av AB Svenska Järnvägsverkstäderna (bildat 1907), som fortsatte med vagntillverkningen till 1965 då den upphörde.

I fabriken byggdes det sedemera SAAB-bilar fram till 1989 då den nya SAAB-fabriken i Malmö färdigställdes. SAAB-fabriken och återstående inventarier såldes.

I fabriken har sedan diverse verksamhteter huserat t.ex. Gokart-bana och hustillverkning.

  • Effektiva ytor för lager
  • Nära större trafikleder
  • Samlad lagerverksamhet

Faciliteter i fastigheten

Lastport Parkering Skyltläge Gym

Service i området

Buss Parkering Tåg Gym Grönområde

Energi & hållbarhet

  • Total energianvändning (2025): 7 kWh/m²
  • Klimatpåverkan: 4,79 kg CO₂e/m² (platsbaserad)

Andra hyresgäster i fastigheten

Alfa Laval Technologies AB - M Padel AB - Marstrom Composite AB - Räddningstjänsten Syd - Möbelkillarna Aktiebolag - Food Port AB - City marmor i Arlöv - CIMA Maskin AB - Limhamns byggservice AB

Karta

Dokument

Kontaktperson

Uthyrare

Linda Corneliusson

Fråga oss!

Nyfiken på den här lokalen? Eller behöver du hjälp att hitta rätt lokal för din verksamhet? Oavsett om du vet exakt vad du söker eller om du behöver rådgivning, så finns vi här och hjälper till.

Vi ser fram emot att höra av dig.

Intresseanmälan

Kontaktinformation

All behandling av personuppgifter sker i enlighet med dataskyddsförordningen och annan dataskyddslagstiftning. Läs mer om GDPR

Ett eget husteam ingår i hyran

Som hyresgäst hos oss får ni ett lokalt husteam som ser till att ni trivs och att allt fungerar som det ska. Vi hjälper till med allt från fastighetsskötsel och energioptimering till skyltning och parkering. Ingen fråga är för stor eller för liten. Och skulle era behov förändras brukar vi alltid kunna erbjuda en lösning, vad det än gäller. Varmt välkommen till en värd bortom det förväntade.

Liknande lokaler i Malmö