Gå till huvudinnehåll

Stockholm Gärdet/Stockholms Hamnkvarter

Tegeluddsvägen 78

Kontor

Hyresindikation

96 000 kr/mån

Detaljerad hyresinformation

Bashyra

Yta

304 kvm

Arbetsplatser

10 - 20 st

Så räknar vi antal arbetsplatser

Detta spann är en uppskattning. Det finns flera faktorer som påverkar hur många arbetsplatser som kan rymmas i en lokal. Inte bara storleken på själva lokalen utan även hur den disponeras. Exempelvis kräver en lokal med många enskilda kontor mer plats än öppen planlösning. Andra begränsningar kan vara tillgången på luft och kyla, eller utrymningsvägar.

Tillträdesdatum

Enl. ök.

Fräsch lokal med egen entré

Välkommen till Tegeluddsvägen 78!
Här kommer ni sitta på en trevlig adress med Gärdet runt hörnet. Fantastiska restauranger i området, sats, gärdesfältet och dess ute gym som härliga grannarna. Bara några meter bort finns även möjligheten att hyra konferensytor på Tegeluddsvägen 100.

Trivsam miljö med grönskande torg precis framför fastigheten. Som hyresgäst i fastigheten finns cykelförråd och garage att tillgå.

Välkommen på visning!

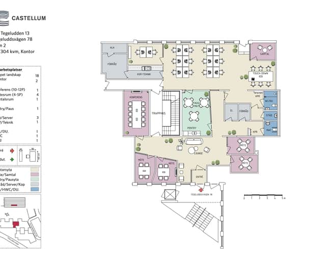
Planlösning

Lokalen erbjuder ljusinsläpp från två väderstreck och egen entré direkt från gatan. Lokalen går att hyra i befintligt skick alternativt anpassning utifrån önskemål.

Området

Gärdet är ett av Stockholms mest attraktiva områden för företag som värdesätter närhet till både city och natur. Här kombineras ett lugnt och representativt läge med utmärkta kommunikationer och ett växande utbud av service.

Området präglas av öppna grönområden, god tillgång till parkeringsmöjligheter och närhet till både tunnelbana och busslinjer. Samtidigt finns ett starkt kluster av etablerade aktörer inom media, kommunikation och offentlig sektor – vilket skapar goda förutsättningar för samverkan och nätverkande.

Med sitt strategiska läge mellan city, Djurgården och Norra Djurgårdsstaden erbjuder Gärdet en arbetsmiljö som kombinerar tillgänglighet, trygghet och hög kvalitet – perfekt för verksamheter med höga krav på både funktion och profil.

Kommunikationer

Det är bara 10 minuters promenad till Tunnelbana Gärdet och bussar går utanför fastigheten. Med bil är det nära ut på E18 och E4/E20 via Norra länken. Garage och cykelrum finns också i fastigheten.

Service

Ett kontorsläge som gör arbetsdagen lite bättre – varje dag.
I direkt närhet finns ett brett utbud av restauranger som passar både affärsluncher och snabba pauser. Med SATS som granne har du tillgång till förstklassig träning precis intill kontoret – perfekt för att hålla energin uppe.
Gärdet erbjuder en unik kombination av stadspuls och grönska. Här kan du ta en uppfriskande joggingrunda på lunchen, nyttja det populära utegymmet eller ta ett dopp i Kampementsbadet – bara 200 meter bort.
Det här är en arbetsmiljö som främjar både produktivitet och välmående. Välkommen till en plats där företag trivs och medarbetare mår bra.

Fastigheten

Fastigheten är strategiskt belägen med närhet till både city och natur, vilket gör den till ett perfekt val för företag som värdesätter tillgänglighet.
Precis utanför entrén breder ett charmigt, grönskande torg ut sig – en naturlig mötesplats med gemensamma sittbänkar i soligt läge. Här kan du ta en kaffe i solen, hålla informella möten utomhus eller bara njuta av en stunds avkoppling mellan arbetsuppgifterna.
Det här är mer än bara en kontorsadress – det är en plats där människor trivs, nätverk växer och idéer får utrymme att blomstra.

  • Naturnära
  • Egen entré
  • Goda träningsmöjligheter

Faciliteter i fastigheten

Cykelrum Elbilsladdning Restaurang Gym

Service i området

Buss Parkering T-bana

Energi & hållbarhet

  • Certifieringar:
  • Total energianvändning (2025): 26 kWh/m²
  • Klimatpåverkan: 4,18 kg CO₂e/m² (platsbaserad)

Andra hyresgäster i fastigheten

Fortifikationsverket - Tegeludden 13 - Discovery Networks Sweden AB - Carl Zeiss AB - Evidensia Sverige AB - Tegeludden 13 - Alaska Film & TV AB - Rego Production AB - Foleyworks AB

Karta

Dokument

Kontaktperson

Teamledare Uthyrning

Stina Wollsén

Fråga oss!

Nyfiken på den här lokalen? Eller behöver du hjälp att hitta rätt lokal för din verksamhet? Oavsett om du vet exakt vad du söker eller om du behöver rådgivning, så finns vi här och hjälper till.

Vi ser fram emot att höra av dig.

Intresseanmälan

Kontaktinformation

All behandling av personuppgifter sker i enlighet med dataskyddsförordningen och annan dataskyddslagstiftning. Läs mer om GDPR

Liknande lokaler i Stockholm