Gå till huvudinnehåll

Stockholm Västberga

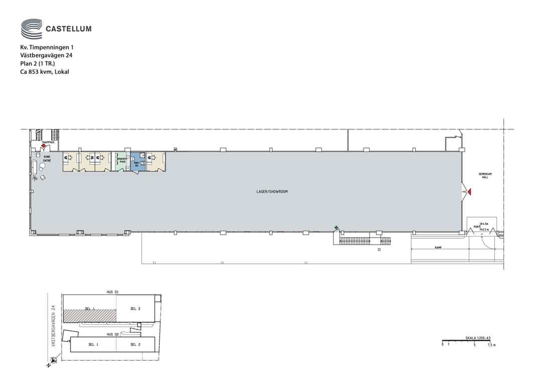
Västbergavägen 24

Lager/Logistik

Yta

853 kvm

Tillträdesdatum

Enl. ök.

Lager/ Showroom i Västberga med direkt access

Letar du efter en flexibel lokal för lager eller showroom? Nu finns en unik möjlighet att hyra 853 kvm i en strategiskt belägen fastighet nära Västberga Handel, där du har tillgång till all service du behöver under arbetsdagen.

Nyckelfakta:
✅ Yta: 853 kvm
✅ Läge: Tillgång via fastighetens bilramp
✅ Planlösning: Öppen yta och ett kontorsutrymme med 4 mindre kontorsrum
✅ Bekvämligheter: Pentry och RWC

Lokalen har en öppen och funktionell utformning som passar både lättare lager och showroom-verksamhet. Dessutom får du ett smidigt logistikflöde tack vare bilrampen som förenklar in- och utlastning.

Välkommen på visning!

Området

Fastigheten ligger i Västberga Industriområde som till största delen består av kontors- och industrifastigheter. I och med läget så är närheten till både Essingeleden / E4:an och Södra länken påtaglig.

Kommunikationer

Med bil tar du dig lätt till Essingeleden / E4:an och påfarten till Södra länken. Buss 143 trafikerar Drivhjulsvägen (Liljeholmen - Högdalen), buss 165 går med 10 min trafik (Liljeholmen - Farsta Centrum). Det är ca 1 km till Telefonplans T-banestation.

Service

Västberga Handelsplats med sitt butiksutbud samt ett flertal restauranger.

Fastigheten

Industrifastighet med stor andel bilrelaterade verksamheter som är bra beläget nära Essingeleden / E4:an.

  • Direkt anslutning til E4:an / E20
  • Intill Västberga Handel

Faciliteter i fastigheten

Restaurang

Service i området

Buss

Energi & hållbarhet

  • Certifieringar:
  • Total energianvändning (2025): 23 kWh/m²
  • Klimatpåverkan: 4,89 kg CO₂e/m² (platsbaserad)

Andra hyresgäster i fastigheten

Terräng - Bilvårdsspecialisterna i Västberga AB - Bilförmedlingen Stockholm - Orazio Vignuolo Bil & Plåt AB - Beyond Retro - Theorell & Ohlsson AB - Mitta AB - Jeco AB - P3N SYSTEM AB - Drive & Shine AB - Västberga Autoservice AB - Alt Hiss - LH Bil och Båtinredningar AB - Örby MC & Motorservice AB - Preo Express AB - Missing People Sweden

Karta

Dokument

Kontaktperson

Uthyrare

Mia Idre

Fråga oss!

Nyfiken på den här lokalen? Eller behöver du hjälp att hitta rätt lokal för din verksamhet? Oavsett om du vet exakt vad du söker eller om du behöver rådgivning, så finns vi här och hjälper till.

Vi ser fram emot att höra av dig.

Intresseanmälan

Kontaktinformation

All behandling av personuppgifter sker i enlighet med dataskyddsförordningen och annan dataskyddslagstiftning. Läs mer om GDPR

Liknande lokaler i Stockholm