Gå till huvudinnehåll

Stockholm Globen/Bolidenplan

Tjurhornsgränd 6

Kontor

Yta

912 kvm

Arbetsplatser

50 - 70 st

Så räknar vi antal arbetsplatser

Detta spann är en uppskattning. Det finns flera faktorer som påverkar hur många arbetsplatser som kan rymmas i en lokal. Inte bara storleken på själva lokalen utan även hur den disponeras. Exempelvis kräver en lokal med många enskilda kontor mer plats än öppen planlösning. Andra begränsningar kan vara tillgången på luft och kyla, eller utrymningsvägar.

Tillträdesdatum

Enl. ök.

Våningsplan

4

Modern och ljus kontorslokal strax utanför tull

Välkommen till en fräsch kontorslokal med genomgående textilmatta och fina ytskikt. Lokalen erbjuder en öppen planlösning kombinerad med ett antal cellkontor och konferensytor, vilket ger en flexibel arbetsmiljö som passar både samarbete och fokus.

Stora helglasade partier med 35 dB ljudreduktion ger ett härligt ljusinsläpp samtidigt som en behaglig ljudnivå bibehålls. Lokalen har dessutom bra kyla och ett stabilt inomhusklimat året runt.

Med två entréer och smart planering blir detta en modern arbetsplats som ger ett professionellt intryck för både medarbetare och besökare.

Välkommen på visning!

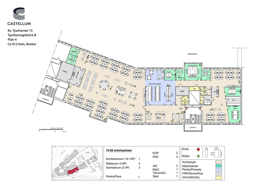
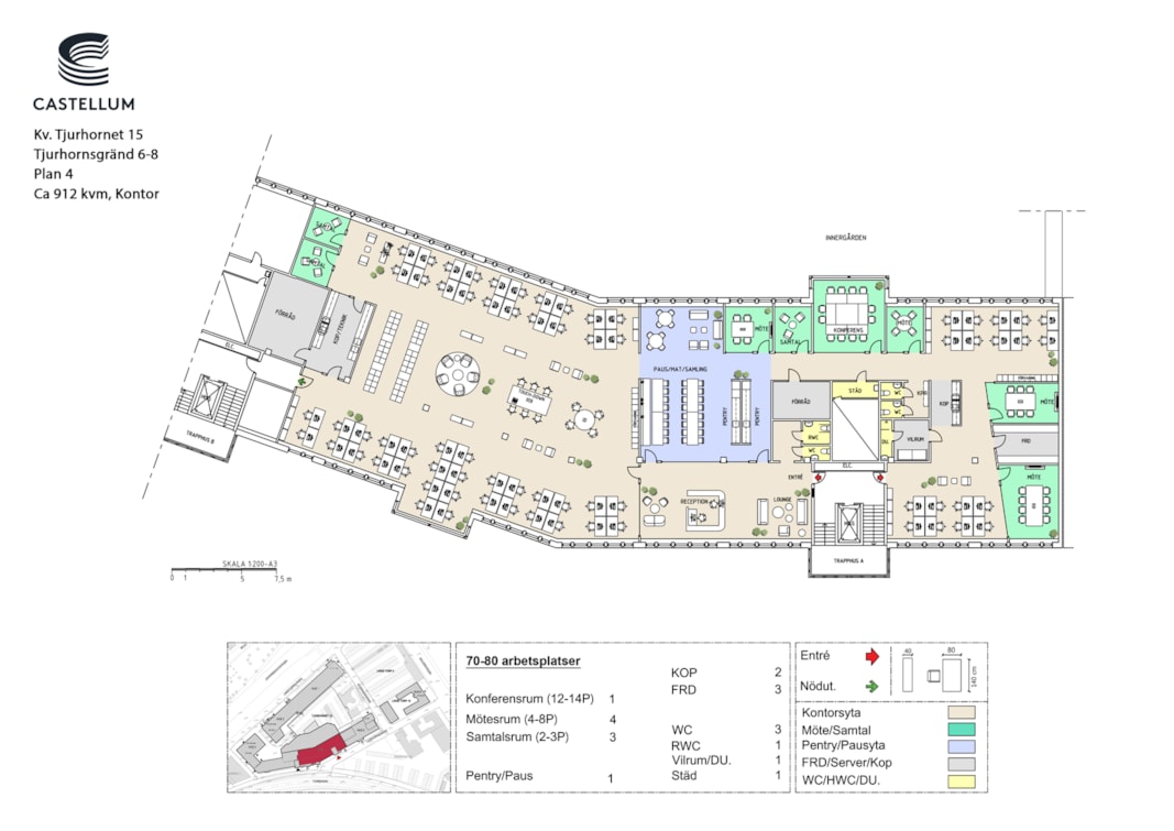
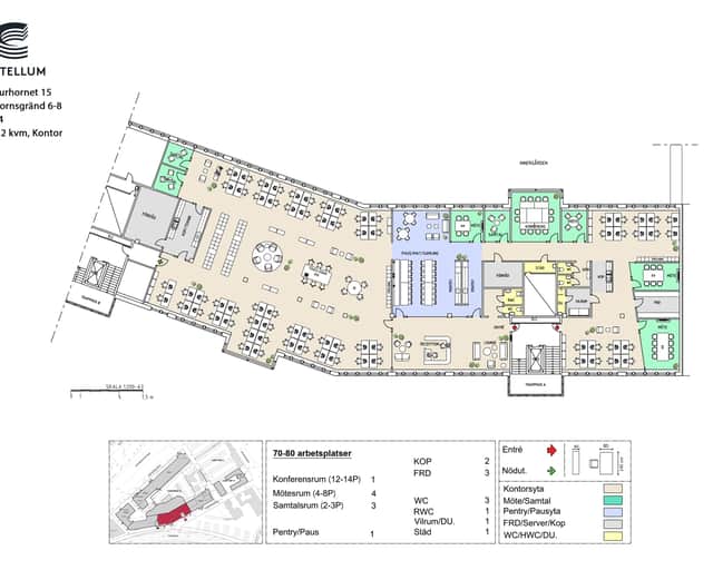
Planlösning

Lokalen omfattar cirka 912 kvm och har en modern och effektiv planlösning anpassad för 70–80 arbetsplatser. Planen domineras av ett stort öppet kontorslandskap med goda ljusinsläpp längs fasaden, kompletterat med flera mindre zoner för samarbete och fokusarbete.

I anslutning till arbetsytorna finns ett större konferensrum (12–14 personer), flera mötesrum i varierande storlek samt samtalsrum för enskilda möten eller koncentrerat arbete. Centralt i lokalen är pentry och paus-/matsal placerade, vilket skapar en naturlig samlingspunkt för personalen.

Entrén leder in till en receptions- och loungeyta, som ger ett representativt första intryck och fungerar väl för både besökare och interna möten. Lokalen är fullt utrustad med WC-grupp inklusive RWC, dusch/omklädningsrum, förråd, kopiering/serverutrymmen samt städ.

Planlösningen är tydligt zonindelad med god separation mellan arbetsplatser, mötesytor och servicefunktioner, vilket ger effektiva flöden och hög flexibilitet för olika typer av verksamheter.

Området

Vid sidan av de stora arenorna och Slakthusområdets kulturliv ligger lugna och trivsamma Bolidenplan. Ett avskilt hörn i ett område som just nu går igenom en stor förvandling. Men det märks inte här. För här vajar träden utanför fönstren och det är lätt att finna arbetsro, plats och parkering. Lika lätt som det är att ta sig vidare ut i kvällen och till stans klarast lysande nöjeskvarter, när arbetsdagen tagit slut.

Unikt för området är närhet till Globen Centrum, Avicii Arena, Tele-2 Arena samt Slakthusområdet, som kommer bli Stockholms nya mötesplats för mat, kultur och upplevelser.
I Slakthusområdet hittar du också Solen och Afrika, två restauranger som tar dig på en kulinarisk resa runt jorden. Solen, som lyfts som en av de mest lyckade krogöppningarna under 2023, och Afrika, som samlar tre olika afrikanska matkulturer under ett och samma tak. Båda värda att besöka efter kontorstid.

Kanske är Globenområdet det smartaste valet för er som vill jobba där det händer men investera i något roligare än hyra.

Kommunikationer

Närmaste tunnelbana är Globen som ligger på ca fem minuters promenad. Även Gullmarsplan ligger nära, med ca tio minuters promenadavstånd. Tvärbanan passerar området och har stationen Linde med endast två minuter från fastigheten.

För dig som hellre tar bilen finns det också flera smidiga vägar tack vare närheten till stora genomfarts- och kringleder som t ex södra länken samt E4/E20.

Gott om parkering finns i området och platser kan hyras direkt av Aimo Park.

Byggnaden har flera accesspunkter (fiberkopplingar) från Stokab med benämningarna ENSK003, GLOB1506 och GLOB1414. Med dessa går det att skapa fullt redundanata fiberuppkopplingar för kunder med mycket höga krav på säker uppkoppling.

Parkering

Här finns det parkeringsplatser att hyra. Är du intresserad kontakta Aimo Park på telefonnummer 0771-96 90 00 som ansvarar för hela parkeringslösningen.

Det finns även tillgång till både varm-och kallgarage vid fastigheten.

Fastigheten

Fastigheten har anor sedan början av 1900-talet, då livsmedelsverksamheter präglade området. Idag består fastigheten av olika byggnader av olika storlek och karaktär. Här finns kontor och en mindre del lager.

Utanför fastigheten finns ett utegym byggt 2024 och en workoutyta.

  • Strax utanför tull
  • Bra inomhusklimat
  • Fina ytskikt

Energi & hållbarhet

  • Certifieringar: LEED O+M, Silver, LEED O+M, Gold
  • Total energianvändning (2025): 21 kWh/m²
  • Klimatpåverkan: 3,22 kg CO₂e/m² (platsbaserad)

Andra hyresgäster i fastigheten

Region Stockholm - Tjurhornet 15 - Svenska Ishockeyförbundet - Café Bar Sverige AB - Tjurhornet 15 - Swedol AB - Tjurhornet 15 - INTEC VVS Stockholm AB - Kulturskolan Stockholm - Geberit AB - Nitro Consult AB - Söderorts Bilvård AB - Sandbäckens Rör i Stockholm AB - Intec Nordic AB - Ably Cicada Catering AB - Årstakliniken AB - Mecon Bygg AB - CityMail Sweden AB - Tjurhornet 15 - HILTI BRAZILIAN JIU-JITSU - Castellum Stockholm AB - Barn och Familjejouren - Stockholm Byggkoncept AB - Sequitur AB - LEB System Aktiebolag - SIMA folkhögskola - Tjurhornet 15 - Jiben AB - ISHOCKEY FÖRBUND STOCKHOLMS - Cubegreens AB - Pressens Morgontjänst KB - Arena Personal Sverige AB - Tjurhornet 15 - Tidy Merch AB - Liberi Entreprenad AB - Northcone AB - Stockholm V.I.P Limousine AB - Klara Golv AB - RVIA BYGG-RENT AB - Föreningen Blandaren - Sandbäckens Brandskydd AB - Elmberg Krister - Skanova AB

Karta

Dokument

Kontaktperson

Uthyrare

Mia Idre

Fråga oss!

Nyfiken på den här lokalen? Eller behöver du hjälp att hitta rätt lokal för din verksamhet? Oavsett om du vet exakt vad du söker eller om du behöver rådgivning, så finns vi här och hjälper till.

Vi ser fram emot att höra av dig.

Intresseanmälan

Kontaktinformation

All behandling av personuppgifter sker i enlighet med dataskyddsförordningen och annan dataskyddslagstiftning. Läs mer om GDPR

Ett eget husteam ingår i hyran

Som hyresgäst hos oss får ni ett lokalt husteam som ser till att ni trivs och att allt fungerar som det ska. Vi hjälper till med allt från fastighetsskötsel och energioptimering till skyltning och parkering. Ingen fråga är för stor eller för liten. Och skulle era behov förändras brukar vi alltid kunna erbjuda en lösning, vad det än gäller. Varmt välkommen till en värd bortom det förväntade.

Liknande lokaler i Stockholm