Gå till huvudinnehåll

Göteborg Centrum

Västra Hamngatan 21

Kontor

Hyresindikation

116 000 kr/mån

Detaljerad hyresinformation

Hyra: 1 390 000 kr/år
Fastighetskatt: 109 340 kr/år
Driftskostnader: 90 000 kr/år
Moms tillkommer med 25%

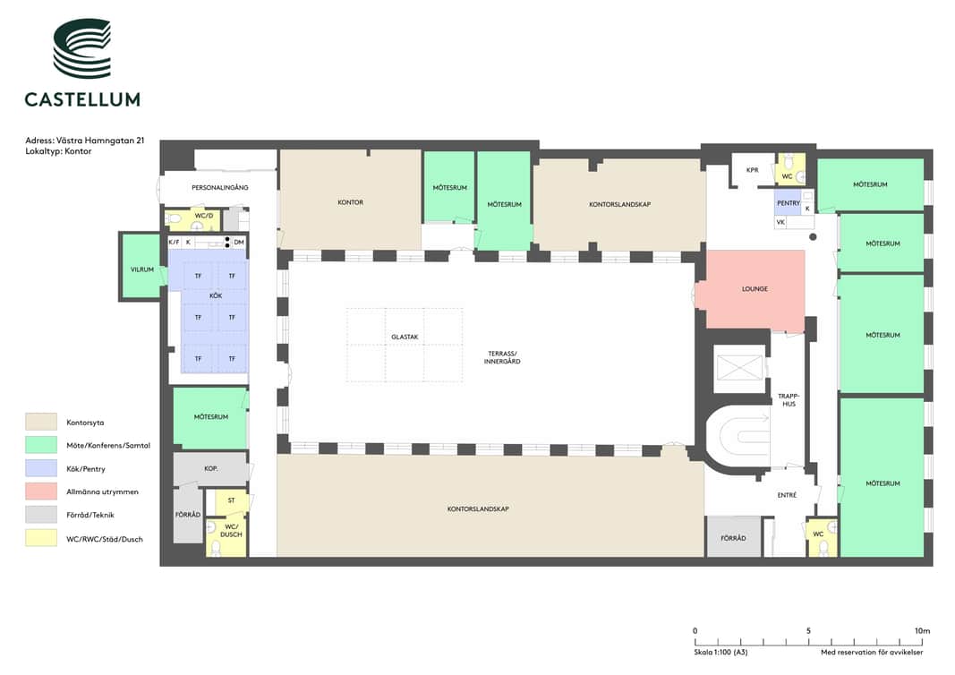
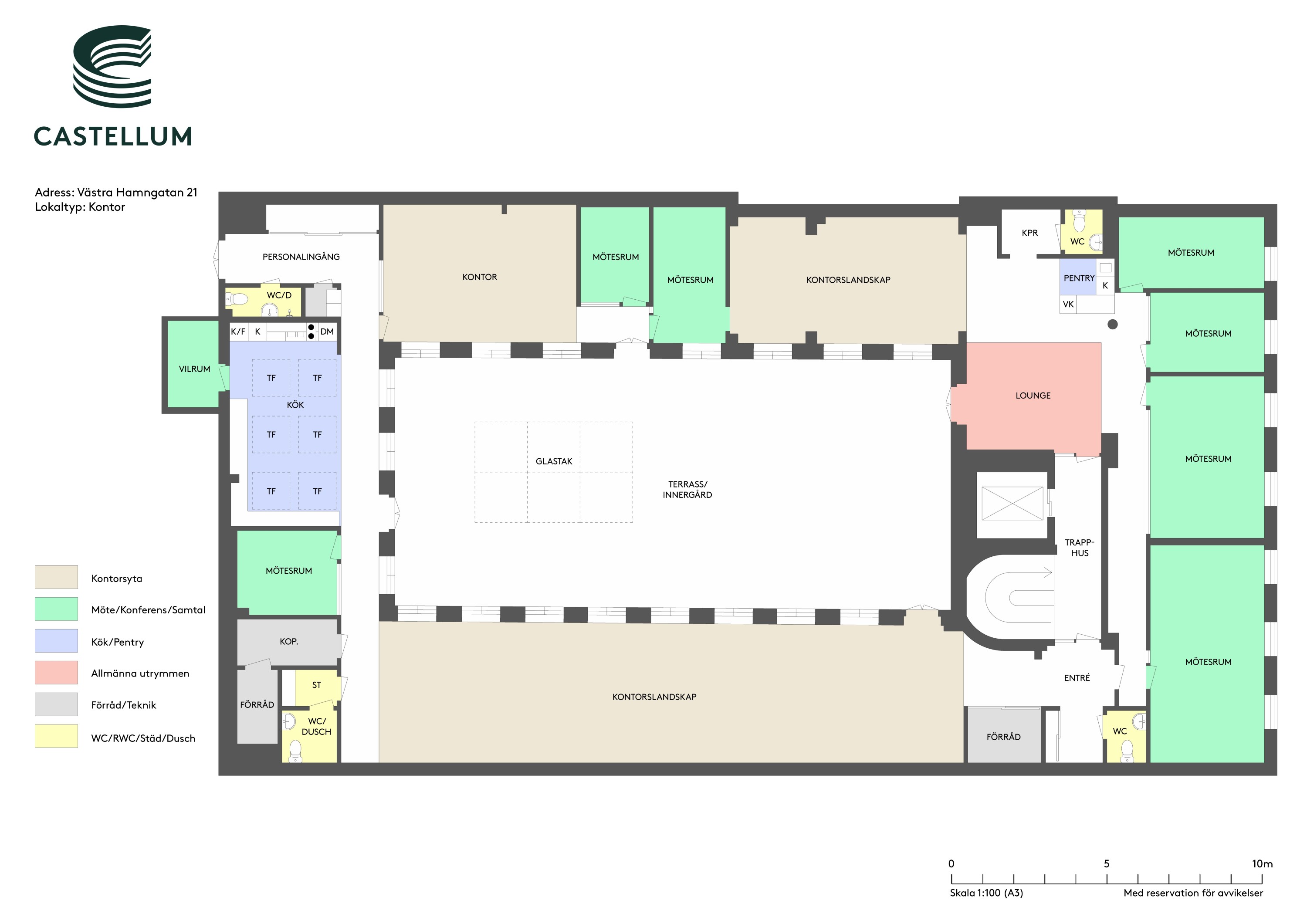
Yta

385 kvm

Arbetsplatser

15 - 25 st

Så räknar vi antal arbetsplatser

Detta spann är en uppskattning. Det finns flera faktorer som påverkar hur många arbetsplatser som kan rymmas i en lokal. Inte bara storleken på själva lokalen utan även hur den disponeras. Exempelvis kräver en lokal med många enskilda kontor mer plats än öppen planlösning. Andra begränsningar kan vara tillgången på luft och kyla, eller utrymningsvägar.

Tillträdesdatum

2026-10-01

Våningsplan

2

Unik lokal med en härlig terrass!

Välkommen till en lokal som verkligen sticker ut. Här får du en perfekt kombination av läge, flexibilitet och karaktär. Den öppna planlösningen skapar en luftig känsla, medan de genomtänkta och lite oväntade materialvalen ger rummet en estetisk edge och en atmosfär som inspirerar.
Utöver detta erbjuder lokalen flera smart placerade mötesrum samt en privat innergård/terrass – en unik möjlighet att skapa event, pauser och sociala ytor utomhus mitt i stan. Perfekt för företag som söker något mer än bara fyra väggar. En lokal att trivas i helt enkelt!

Välkommen att kontakta oss för mer info och visning.

Planlösning

Blandad planlösning med öppna ytor och enskilda kontorsrum, flera konferensrum och mindre mötesrum. Personalutrymmen och terrass!

Området

Området runt Magasinsgatan har fått ett rejält uppsving under de senaste åren. Denna del av stadskärnan är mycket populär och i närheten finns ett rikt utbud av premiumbutiker, restauranger, caféer och övrig service.

Kommunikationer

Stort utbud av goda kommunikationer erbjuds. På bekvämt gångavstånd finns knutpunkten Stenpiren, här finns flertalet förbindelser att tillgå både via spårvagn, buss och båt. Även via Västra Hamngatan finns goda kommunikationer via hållplatserna Domkyrkan och Grönsakstorget.

Parkering

Parkeringsplatser finns att hyra i området Apcoa 08-556 306 70 samt Q-Park 0771-96 90 06.

Service

Hos oss har varje hyresgäst ett eget team

Med ett starkt lokalt engagemang är vi måna om att leva upp till de förväntningar som ställs på en trygg och långsiktig hyresvärd, varje dag, i stort och smått. Alla våra fastigheter sköts av vår egen personal och som hyresgäst har du tillgång till ett eget Castellumteam som ser till att du trivs hos oss. Och om dina behov så småningom förändras kan vi, tack vare vår storlek, nästan alltid erbjuda en lösning. För att göra det enkelt för våra hyresgäster att leva hållbart erbjuder vi bland annat gröna hyresavtal och förnybar el.

Fastigheten

Fastigheten omfattar en 4-vånings gatubyggnad resp. 3-vånings gårdsbyggnad med gårdsflyglar runt en från plan 1 överbyggd innergård. Byggnaden innehåller kontor och butiker.
Mycket fräsch fastighet med fin entré och trapphus.

Näromgivningen utgörs av liknande kontors- och butiksfastigheter.

  • Terrass
  • Mitt i city
  • Nära allt

Faciliteter i fastigheten

Terrass Garage Restaurang

Service i området

Buss Restaurang Café Hotell Shopping Gym Spårvagn

Energi & hållbarhet

  • Total energianvändning (2025): 23 kWh/m²
  • Klimatpåverkan: 5,11 kg CO₂e/m² (platsbaserad)

Andra hyresgäster i fastigheten

LIWLIG Sweden AB - BJELIN Sweden AB - Norse Nordics AB - Mercur Solutions AB - Cinnamon - Advokatfirman Staifo AB - Plattform Produktion AB - Ljudteknikerna Sverige AB

Karta

Dokument

Kontaktperson

Uthyrare

Helena Dellborg

Fråga oss!

Nyfiken på den här lokalen? Eller behöver du hjälp att hitta rätt lokal för din verksamhet? Oavsett om du vet exakt vad du söker eller om du behöver rådgivning, så finns vi här och hjälper till.

Vi ser fram emot att höra av dig.

Intresseanmälan

Kontaktinformation

All behandling av personuppgifter sker i enlighet med dataskyddsförordningen och annan dataskyddslagstiftning. Läs mer om GDPR

Liknande lokaler i Göteborg