Gå till huvudinnehåll

Lund Västerbro

Annedalsvägen 9

Kontor

Yta

198 kvm

Arbetsplatser

5 - 17 st

Så räknar vi antal arbetsplatser

Detta spann är en uppskattning. Det finns flera faktorer som påverkar hur många arbetsplatser som kan rymmas i en lokal. Inte bara storleken på själva lokalen utan även hur den disponeras. Exempelvis kräver en lokal med många enskilda kontor mer plats än öppen planlösning. Andra begränsningar kan vara tillgången på luft och kyla, eller utrymningsvägar.

Tillträdesdatum

Enl. ök.

Våningsplan

2

Välkommen till Västerbro – Stadsdelen där framtiden tar form!

På Västerbro, Lunds mest dynamiska och växande stadsdel, hittar du denna kontorslokal om 198 kvm.

Perfekt för företag som vill kombinera strategiskt läge med inspirerande arbetsmiljö.

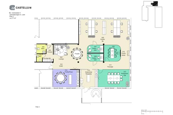
Lokalen erbjuder en ljus och avkopplande atmosfär, med välplanerade rumsindelade ytor som passar både fokusarbete och kreativa samarbeten. De stora fönsterpartierna släpper in rikligt med naturligt ljus och bjuder på en fantastisk utsikt över den grönskande trädallén utanför.
Lokalen är smart rumsindelad och erbjuder en perfekt balans mellan utrymmen för fokuserat arbete och kreativa samarbeten. Med parkeringsplatser precis utanför dörren blir vardagen enklare för både medarbetare och gäster.

Närheten till Nova Lund gör detta till ett oslagbart läge, där du enkelt kan kombinera arbete med lunchshopping eller snabba ärenden.
Ett läge som gör vardagen både enklare och mer trivsam för hela teamet!

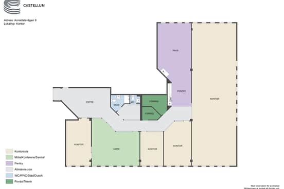
Planlösning

Lokalen har en genomtänkt och funktionell planlösning som passar olika typer av verksamheter. Vid entrén möts du av en välkomnande yta med sittplats, perfekt som en reception eller lounge för besökare. Intill ligger ett praktiskt och pentry som gör det enkelt att samlas för en kopp kaffe eller lunch.
Lokalen är rumsindelad och erbjuder två rymliga mötesrum som lämpar sig både för kreativa workshops och mer formella möten.

Området

Närheten till Lunds stadskärna och de goda färdmöjligheter som erbjuds, kommunalt och med bil, ger fastigheten ett attraktivt läge. Idéernas stad eller universitetsstaden? Eller varför inte båda! Lund är känt för sin charm men dessutom för att vara en universitetsstad. Möjligheterna är stora för den som är innovationsrik och är fullspäckad med idéer! Närheten till Malmö har gjort att staden vuxit i samband med förbindelsen mellan Köpenhamn och Malmö. Staden växer och väntas göra det ännu mer i takt med att Sveriges största forskningsanläggning, MAX IV och ESS, står klar under år 2023. Näringslivet präglas av många stora företag som grundats i Lund och blivit världsledande inom sin bransch, några exempel på dessa är bland annat Axis, Tetra Pak, Alfa Laval, m.m.

Invånarna i staden uppgår idag till cirka 120 000. Lunds universitet är rankad topp 2 i Sverige och erbjuder idag oändligt många utbildningar inom bland annat ekonomi, teknik, juridik och mycket mer.

Kommunikationer

Från fastigheten till centrala Lund tar bilresan cirka fyra minuter och med buss cirka sex minuter. Lund har en väl utbyggd stadstrafik och en ny snabbuss stråk - Lundalänken - som utgår från järnvägsstationen i centrala Lund.

Service

I närområdet finns ett konditori och en hamburgerrestaurang. Lunds medeltida stadskärna erbjuder ett rikt kulturliv och många trivsamma restauranger, caféer och butiker inom behagligt promenadavstånd. De vackra omgivningarna runt staden ger också möjlighet till härliga naturupplevelser. Den inspirerande miljön samt det centrala läget gör att många goda idéer har frodats här. Sveriges första och största forskningsby Ideon finns här sida vid sida med internationella företag. Samverkan sker kontinuerligt mellan kommunen, utbildning, forskning, näringsliv och regionen.

Fastigheten

Kontorsfastighet

  • Parkering
  • Tillgänglighet
  • Närhet till Nova Lund

Faciliteter i fastigheten

Parkering Elbilsladdning

Service i området

Buss Parkering Restaurang Café Shopping Gym

Energi & hållbarhet

  • Certifieringar: LEED O+M, Gold
  • Total energianvändning (2025): 23 kWh/m²
  • Klimatpåverkan: 1,13 kg CO₂e/m² (platsbaserad)

Andra hyresgäster i fastigheten

Ögoncentrum Annedal i Lund AB - BrainLit AB - Matthuset - NewSeed IT Solutions AB - New York Dance Ideell Förening - MEKO Workshops AB - Eurotherm Aktiebolag - SiC Systems AB - Qlear AB - CEVA Animal Health AB - GMM i Skåne AB - Susano AB - Wackes AB - Verkstaden 5 - Mallverkstan i Lund AB - Bruker Nordic AB - GIW Rehab AB

Karta

Dokument

Kontaktperson

Uthyrare

Linda Corneliusson

Fråga oss!

Nyfiken på den här lokalen? Eller behöver du hjälp att hitta rätt lokal för din verksamhet? Oavsett om du vet exakt vad du söker eller om du behöver rådgivning, så finns vi här och hjälper till.

Vi ser fram emot att höra av dig.

Intresseanmälan

Kontaktinformation

All behandling av personuppgifter sker i enlighet med dataskyddsförordningen och annan dataskyddslagstiftning. Läs mer om GDPR

Liknande lokaler i Lund