Gå till huvudinnehåll

Jönköping A6

Bataljonsgatan 12

Kontor

Hyresindikation

126 000 kr/mån

Detaljerad hyresinformation

Hyresindikation: 126 305 kr per månad.

Yta

535 kvm

Arbetsplatser

20 - 30 st

Så räknar vi antal arbetsplatser

Detta spann är en uppskattning. Det finns flera faktorer som påverkar hur många arbetsplatser som kan rymmas i en lokal. Inte bara storleken på själva lokalen utan även hur den disponeras. Exempelvis kräver en lokal med många enskilda kontor mer plats än öppen planlösning. Andra begränsningar kan vara tillgången på luft och kyla, eller utrymningsvägar.

Tillträdesdatum

Enl. ök.

Våningsplan

3

Kontorsläge som syns – i hjärtat av ett attraktivt företagskluster

I det populära A6-området finns nu möjlighet att hyra en rymlig och ljus lokal med fönster åt flera håll. Här omges ni av etablerade nationella företag och får driva er verksamhet i en modern byggnad med tilltalande arkitektur.

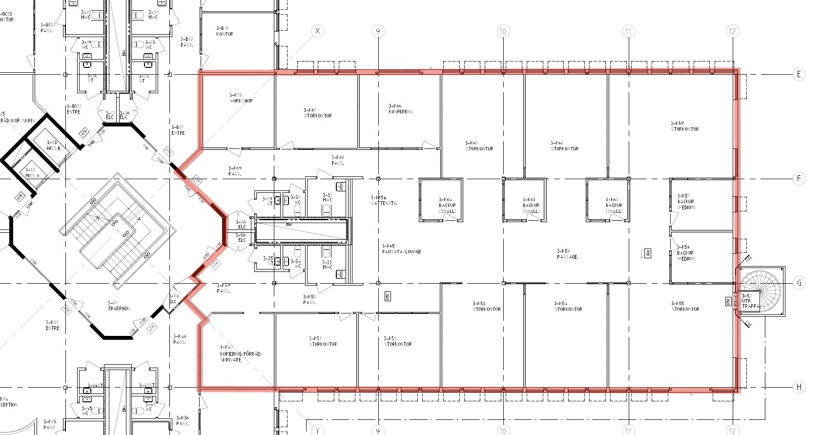
Planlösning

Lokalen har en bra kombination av kontor, öppna kontorslandskap samt mötesrum. Mitt i lokalen finns köket som en naturlig knutpunkt.

Området

A6-området med sitt centrala läge strax öster om Jönköpings centrum är ett verksamhetsområde med stark exponering mot E4:an.
Sedan Asecs Köpcentrum etablerades 1987 har området blivit en stor attraktion och det har årligen ca 11 miljoner besökare.
Det intilliggande verksamhetsområdet, som omfattar ca 170.000 kvm, lämpar sig väl för kunskapsintensiva företag med behov av centrumnära läge.
I direkt anslutning till området ligger även Länssjukhuset Ryhov och A6 Golfbana.

Kommunikationer

Fastigheten ligger utmed E4:an vilket gör den lättillgänglig för den bilburne. De lokala bussförbindelserna är goda och det är gångavstånd till hållplats för Krösatåget.

Parkering

Parkering för hyresgäster och besökare finns i anslutning till fastigheten. Det finns även 6 styck laddplatser som är kopplade till MER.

För besöksplatserna gäller 2 timmars parkering. Övriga parkeringsplatser kräver ett digital p-tillstånd som hanteras av respektive företag. Observera att om man har p-tillstånd kan man inte parkera på besöksplatserna.

Service

På gångavstånd finns ett brett utbud av restauranger, handel och övrig service på Asecs.
Fastigheten är även utrustad med Hjärtstartare som är placerad i det gemensamma trapphuset.

Fastigheten

Modern och tilltalande kontorsfastighet uppförd 2009. Den uthyrningbara ytan uppgår till 7.725 kvm fördelat på fyra våningsplan.

  • Skyltläge
  • Lättillgängligt
  • Ljus lokal

Faciliteter i fastigheten

Sopsortering Omklädningsrum Cykelrum Parkering Elbilsladdning Skyltläge

Service i området

Buss Parkering Restaurang Café Shopping Elbilsladdning Grönområde

Energi & hållbarhet

  • Certifieringar: Miljöbyggnad befintlig, Silver
  • Total energianvändning (2025): 11 kWh/m²
  • Klimatpåverkan: 2,69 kg CO₂e/m² (platsbaserad)

Andra hyresgäster i fastigheten

Dagab Inköp & Logistik AB- Visionen 3 - Kapsch Trafficcom AB - SAAB AB- Visionen 3 - Colosseum Smile AB - BSV Arkitekter & Ingenjörer AB- Visionen 3 - Atea Sverige AB- Visionen 3 - Nordomatic Aktiebolag - Eksjöhus Aktiebolag - Atea Sverige AB - Axfood Snabbgross - Avarn Security AB

Karta

Dokument

Kontaktperson

Uthyrare

Jonas Larsson

Fråga oss!

Nyfiken på den här lokalen? Eller behöver du hjälp att hitta rätt lokal för din verksamhet? Oavsett om du vet exakt vad du söker eller om du behöver rådgivning, så finns vi här och hjälper till.

Vi ser fram emot att höra av dig.

Intresseanmälan

Kontaktinformation

All behandling av personuppgifter sker i enlighet med dataskyddsförordningen och annan dataskyddslagstiftning. Läs mer om GDPR

Liknande lokaler i Jönköping