Ljus lokal med fönster i tre väderstreck och storslagen utsikt!
I det attraktiva Wiskadalsområdet finner man denna anrika fastighet med ett lättillgängligt läge. Vackert belägen intill viskan i ett område med mycket aktivitet och sprudlande företagsklimat.
Befintlig bebyggelse anno 1887 finns idag på fastigheten, som präglas från den gamla industritiden.
Här välkomnas man till denna ljusa och rymliga lokal med högt i tak och fönster i tre väderstreck. Lokalen har både vy ner över Viskan och takåsarna in mot centrum.
Entrén är öppen och rymlig, vilket ger möjlighet för en reception med väntrum eller för utställning om så önskas. Anpassningar görs med återbruk och hållbarthet i åtanke.
Letar ni efter er nya arbetsplats med bästa läge intill centrum i en vackert belägen fastighet som dessutom erbjuder vackra vyer?
-Kontakta oss så hjälper vi dig!
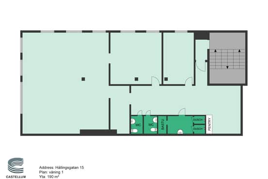
Planlösning
Lokalen erbjuder 12 kontorsrum där alla har ljusinsläpp från fönster och några av dem kan nyttjas för mötes då det finns bra med rymd. Flertal wc, städ, förrådsutrymmen, data -och projektrum.
Området
Området Wiskadal andas företagsklimat och präglas av industrifastigheter som bland annat har omvandlats till kontor. Till fastigheten finns två entréer varav den en har två hissar. Motionsrum finns tillgängligt för alla i huset. För att underlätta hyresgästernas hållbarhetsarbete erbjuder vi även gröna hyresavtal och förnybar el.
Kommunikationer
Det är enkelt att ta sig till och från fastigheten. Busshållplatsen ligger nära och en promenad till Centralstationen tar inte mer än cirka 10 minuter. Det finns också gott om p-platser i området som tillhör fastigheten och 12 st laddplatser för elbilar/laddhybrider.
Parkering
Parkeringsytor finns i området. Sms-parkeringar finns att tillgå. Det finns tolv stycken parkeringar med laddplatser tillhörande fastigheten.
Service
Eget Castellum-team! Alla våra fastigheter sköts av våra egna medarbetare. Ett eget Castellumteam ser till att hyresgästen trivs hos oss. Om lokalbehoven förändras kan vi, tack vare vår storlek, nästan alltid erbjuda en lösning snabbt och enkelt. Med vårt starka lokala engagemang är vi måna om att leva upp till de förväntningar våra hyresgäster har på oss. Vi är en trygg och långsiktig hyresvärd, varje dag, i stort och smått.
Fastigheten
Wiskadals fabrik - Lediga lokaler hittar du längst ned på sidan. På Skaraborgsvägen 21 i Borås har våra hyresgäster lokaler anpassade efter just deras behov. Många av lokalerna har utsikt över Viskan, alla har närheten till centrum. Den härliga exteriören, inspirerad av amerikanska fabriksbyggnadsideal, är från 1900-talet. Den anrika tegelbyggnaden vid Viskan ligger granne med Textile Fashion Center och Högskolan i Borås, strategiskt placerad mellan centrum och Knalleland. Här är det nära till det mesta. Centrum, Centralstationen och Knalleland är bara några hundra meter bort liksom livsmedelsbutiker, restauranger och apotek.
- Centralt läge
- Ljust och öppet
- Utsikt
Faciliteter i fastigheten
Service i området
Energi & hållbarhet
- Laddplatser
- Hållbarhetscertifiering: BREEAM In-Use, Good
- Total energianvändning: 101 kWh / m², år
- Energi CO2-påverkan: 0,9 kg CO₂ / m², år
Andra hyresgäster i fastigheten
Karta
Dokument
Broschyr
Kontaktperson

Nyfiken på den här lokalen? Eller behöver du hjälp att hitta rätt lokal för din verksamhet? Oavsett om du vet exakt vad du söker eller om du behöver rådgivning, så finns vi här och hjälper till.
Vi ser fram emot att höra av dig.