Gå till huvudinnehåll

Borås Centrum

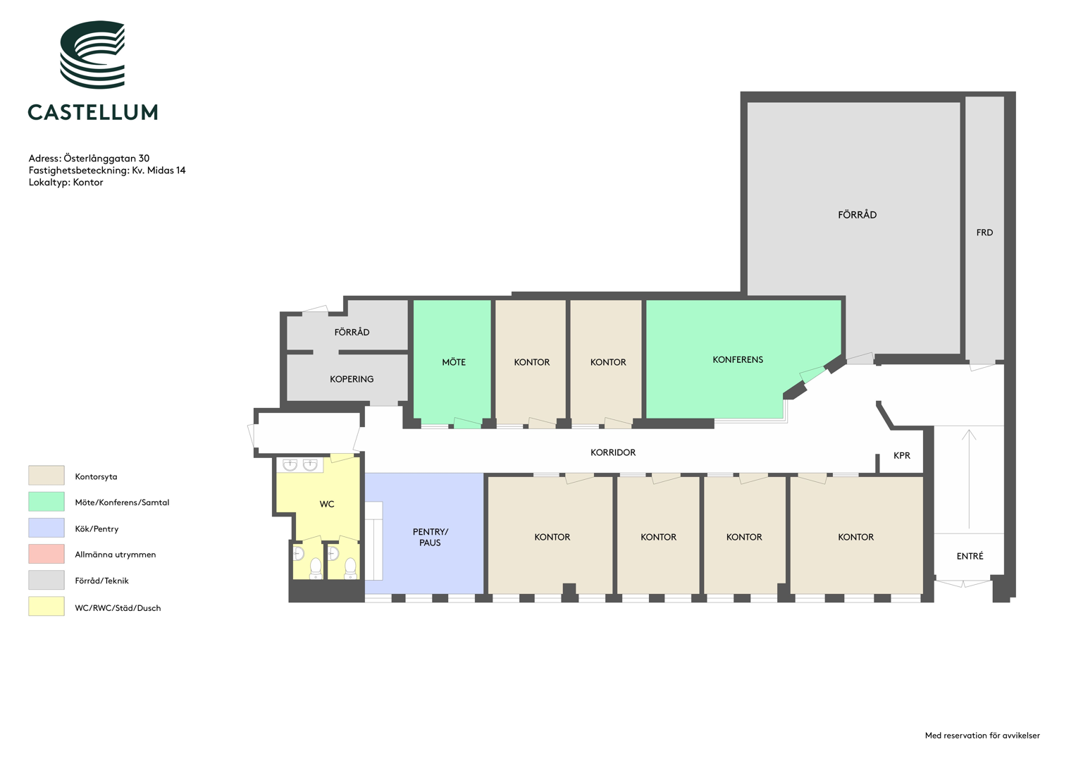
Österlånggatan 30

Kontor

Yta

280 kvm

Arbetsplatser

5 - 10 st

Så räknar vi antal arbetsplatser

Detta spann är en uppskattning. Det finns flera faktorer som påverkar hur många arbetsplatser som kan rymmas i en lokal. Inte bara storleken på själva lokalen utan även hur den disponeras. Exempelvis kräver en lokal med många enskilda kontor mer plats än öppen planlösning. Andra begränsningar kan vara tillgången på luft och kyla, eller utrymningsvägar.

Tillträdesdatum

Enl. ök.

Våningsplan

2

Kontorslokal mitt i city!

Välkommen till en ljus och representativ kontorslokal i absolut cityläge i Borås vid Stora Torget. Lokalen erbjuder en modern planlösning med stilrena glaspartier som skapar avskilda kontorsrum och konferensrum – utan att tumma på ljusinsläpp och rymd. Generös takhöjd. Trivsamt pausutrymme där kollegor träffas över lunchen eller en kopp kaffe.

Här arbetar ni i en inspirerande miljö med närhet till stadens utbud av restauranger, service och kommunikationer.

För extra bekvämlighet finns möjlighet till parkering i garage.
Perfekt för företag som söker ett representativt citykontor
En idealisk lokal för verksamheter som vill kombinera läge, funktion och ett professionellt intryck.

Välkommen att kontakta oss för mer info och visning!

Planlösning

Rumsindelat kontor med mötesrum och konferensrum. Pausrum och förrådsyta.

Området

Ett stenkast bort från denna centralt belägna fastighet finner du Borås vackra Stadspark, delvis omgiven av Viskan vilken rinner genom centrum.
Till Stadsparken tar du dig för en kort break i citypulsen eller varför inte njuta av en medhavd lunch, kaffe eller passa på att kika in till lunchrestaurangen som ligger direkt när du kommit in i parken. Alldeles i närheten finner vi även Sandwalls plats med dess uteserveringar, caféer och restauranger som är en perfekt och mycket populär mötesplats både för affärslunchen och en träff i goda vänners sällskap.
Inte sällan är det full fart här på lunchtid och om det är soligt och fint väder - ja, då gäller det att vara ute i god tid för att få plats på uteserveringarna! Fastigheten är belägen vid Stora Torget i Borås.

Kommunikationer

Med tåg och buss tar du dig enkelt hit, gångavstånd från Centralstationen och Södra Torget med det flesta bussförbindelser.
För dig som pendlar från Göteborg är restiden till Borås ca 45-50 minuter och avgångar är frekventa, både med tåg och buss.

Parkering

Besöksparkering finns i t ex Midas-garaget och på Midas-terrassen.

Service

Hos oss har varje hyresgäst ett eget team!
Med ett starkt lokalt engagemang är vi måna om att leva upp till de förväntningar som ställs på en trygg och långsiktig hyresvärd, varje dag, i stort och smått.
Alla våra fastigheter sköts av vår egen personal och som hyresgäst har du tillgång till ett eget Castellumteam som ser till att du trivs hos oss.
Och om dina behov så småningom förändras kan vi, tack vare vår storlek, nästan alltid erbjuda en lösning. För att göra det enkelt för våra hyresgäster att leva hållbart erbjuder vi bland annat gröna hyresavtal och förnybar el.

Fastigheten

Fastigheten är belägen vid Stora Torget i Borås.
Byggnaden innehar butiker och kontor och garage.

  • Mitt i city
  • Garage
  • All tänkbar service

Faciliteter i fastigheten

Lastport Cykelrum Elbilsladdning Skyltläge Garage Restaurang

Service i området

Resecentrum Buss Parkering Restaurang Café Hotell Tåg Shopping Elbilsladdning Gym Grönområde

Energi & hållbarhet

  • Total energianvändning (2025): 35 kWh/m²
  • Klimatpåverkan: 5,32 kg CO₂e/m² (platsbaserad)

Andra hyresgäster i fastigheten

Försäkringskassan - Midas 14 - Arbetsförmedlingen - Midas 14 - Handelsbolaget Svenska Bio Lidingö - Skatteverket - Midas 14 - LST Midas - Önska och Lekia - Springrolls AB - SSC - Alfakassan - Castellum Väst Aktiebolag - Dressmann AB - Midas 14 - Lernia Bemanning AB - Midas - Nail Icon i Borås AB - Ur & Penn AB - FK - Bankomat AB - Midas 14 - Borås kommuns parkeringsaktiebolag - Assemblin El AB

Karta

Dokument

Kontaktperson

Uthyrare

Erik Williamson

Fråga oss!

Nyfiken på den här lokalen? Eller behöver du hjälp att hitta rätt lokal för din verksamhet? Oavsett om du vet exakt vad du söker eller om du behöver rådgivning, så finns vi här och hjälper till.

Vi ser fram emot att höra av dig.

Intresseanmälan

Kontaktinformation

All behandling av personuppgifter sker i enlighet med dataskyddsförordningen och annan dataskyddslagstiftning. Läs mer om GDPR

Liknande lokaler i Borås