Gå till huvudinnehåll

Malmö Fosie

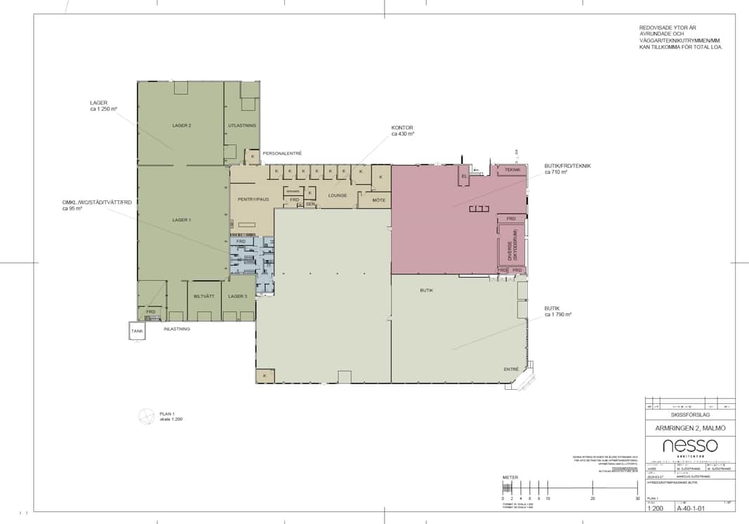
Malmö Armringen 2

Butik

Fastighetsbeteckning

Malmö Armringen 2

Adress

Agnesfridsvägen 190

Byggnadsår

1975

Total area

4 918 kvm

Om fastigheten

En fin fastighet med butik, kontor och verkstadsdelar i populära företags- och industriområdet Fosie i Malmö. Lokalen ligger utmed Agnesfridsvägen, vilket ger ett bra kommersiellt skyltläge.

Fastigheten inhyser flera affärslokaler och mycket goda parkeringsmöjligheter för både personal och besökande.

Området

I omgivningen finns fastigheter som består av både handel och kontor. I närheten finns flertalet lunchrestauranger och Jägersro Köpcentrum med stor matbutik och fina shoppingmöjligheter.

Trots den industriella karaktären finns parker som Trehögsparken, som Malmö Stad nu satsar stort på att mondernisera och utveckla för att kombinera verksamheter med service och restauranger.

Fosie är ett av Malmös absolut viktigaste företagsområden. Tillsammans med Jägersro bildar det stadens största företagsdistrikt.

Kommunikationer

Fastigheten är enkel att nå från Malmös stora ringleder, Inre och Yttre Ringvägen, och det finns gott om parkeringsplatser på fastigheten. Flertalet busslinjer passerar Agnesfridsvägen och busshållplats finns inom ett kort gångavstånd.

Parkering

Gott om parkeringar för såväl personal som för besökande till fastigheten.

Energi & hållbarhet

  • Certifieringar: BREEAM In-Use, Good
  • Total energianvändning (2025): 2 kWh/m²
  • Klimatpåverkan: 0,05 kg CO₂e/m² (platsbaserad)

Karta

Dokument

Kontaktperson

Kommersiell Förvaltare

Anneli Linfeldt

Anmäl intresse

Är du intresserad av att sitta i den här fastigheten? Gör en intresseanmälan så hör vi av oss om det dyker upp någon lämplig lokal.

Intresseanmälan

Kontaktinformation

All behandling av personuppgifter sker i enlighet med dataskyddsförordningen och annan dataskyddslagstiftning. Läs mer om GDPR

Lediga lokaler i Malmö Armringen 2