Gå till huvudinnehåll

Malmö Fosie

Agnesfridsvägen 190

Butik Industri

Yta

3 565 - 4 275 kvm

Tillträdesdatum

Enl. ök.

Våningsplan

1

Sällsynt möjlighet för bilhandlare i bilhandelns mecka

Nu finns chansen att etablera eller expandera er verksamhet i en komplett bilhandelsfastighet på strategiskt läge i Fosie industriområde – Malmös självklara centrum för bilförsäljning och fordonstjänster. Här erbjuds en fullt utrustad lokal med generösa ytor för både försäljning, service och administration.

Fastigheten på Agnesfridsvägen 190 erbjuder totalt ca 4 275 kvm fördelat på funktionella och välplanerade ytor som stödjer en effektiv bilhandel. Här får ni:

Butiksyta om ca 2 500 kvm – perfekt för bilutställning med god takhöjd och generöst ljusinsläpp.
Verkstad och lager om ca 1 250 kvm – för bilservice, reparation och reservdelshantering.
Kontorsyta om ca 430 kvm – moderna arbetsytor för försäljning, administration och kundmottagning.
Omklädningsrum om ca 95 kvm – bekväma personalutrymmen för verkstadsanställda.

Fosie industriområde, där fastigheten är belägen, är ett av Malmös största och mest etablerade industriområden – särskilt känt för sitt kluster av bilhandlare, verkstäder och fordonsrelaterade verksamheter. Området erbjuder:

Ett stort upptagningsområde med både privata och företagskunder.

Bra kommunikationer med närhet till inre ringvägen, E6, E65 och E22.

Ett levande näringsliv med närhet till service, lunchrestauranger och handel.

Att finnas i Fosie innebär att vara där kunderna redan söker efter bilar och service – mitt i flödet av affärer och nätverk.

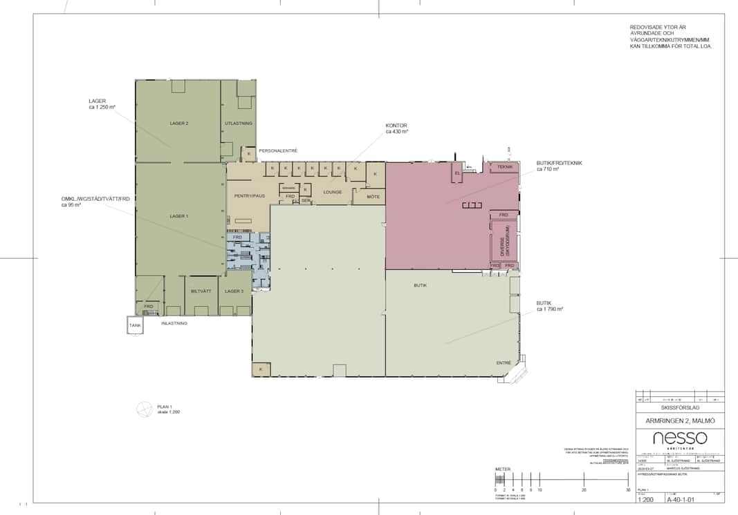
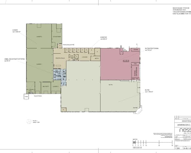
Planlösning

Planlösning.
•Tomten är på ca 15 000 kvm, den medger parkering av ca 200 bilar.
•Butik är på ca 2 500 kvm i mesta delsöppna ytor.
•Verkstad, Lager är på 1 250 kvm
•Kontor på ca 430 kvm, i mixad planlösning av kontorsrum och öppenplanlösning, ett vältilltaget lunchrum.
•Omklädningsrum för Dam och Herr.

Området

I omgivningen finns fastigheter som består av både handel och kontor. I närheten finns flertalet lunchrestauranger och Jägersro Köpcentrum med stor matbutik och fina shoppingmöjligheter.

Trots den industriella karaktären finns parker som Trehögsparken, som Malmö Stad nu satsar stort på att mondernisera och utveckla för att kombinera verksamheter med service och restauranger.

Fosie är ett av Malmös absolut viktigaste företagsområden. Tillsammans med Jägersro bildar det stadens största företagsdistrikt.

Kommunikationer

Fastigheten är enkel att nå från Malmös stora ringleder, Inre och Yttre Ringvägen, och det finns gott om parkeringsplatser på fastigheten. Flertalet busslinjer passerar Agnesfridsvägen och busshållplats finns inom ett kort gångavstånd.

Parkering

Gott om parkeringar för såväl personal som för besökande till fastigheten.

Fastigheten

En fin fastighet med butik, kontor och verkstadsdelar i populära företags- och industriområdet Fosie i Malmö. Lokalen ligger utmed Agnesfridsvägen, vilket ger ett bra kommersiellt skyltläge.

Fastigheten inhyser flera affärslokaler och mycket goda parkeringsmöjligheter för både personal och besökande.

  • Extremt bra skyltläge
  • Etablerad Butik
  • stor uppställningsyta

Faciliteter i fastigheten

Omklädningsrum Lastport Parkering Elbilsladdning Skyltläge Skyltfönster

Service i området

Buss Parkering Restaurang Shopping Grönområde

Energi & hållbarhet

  • Certifieringar: BREEAM In-Use, Good
  • Total energianvändning (2025): 2 kWh/m²
  • Klimatpåverkan: 0,05 kg CO₂e/m² (platsbaserad)

Karta

Dokument

Kontaktperson

Uthyrare

Håkan Gustafsson

Fråga oss!

Nyfiken på den här lokalen? Eller behöver du hjälp att hitta rätt lokal för din verksamhet? Oavsett om du vet exakt vad du söker eller om du behöver rådgivning, så finns vi här och hjälper till.

Vi ser fram emot att höra av dig.

Intresseanmälan

Kontaktinformation

All behandling av personuppgifter sker i enlighet med dataskyddsförordningen och annan dataskyddslagstiftning. Läs mer om GDPR

Liknande lokaler i Malmö