Gå till huvudinnehåll

Uppsala Boländerna

Uppsala Boländerna 11:2 (Boländerna 11:2)

Kontor

Fastighetsbeteckning

Uppsala Boländerna 11:2

Adress

Säbygatan 6-8

Byggnadsår

1947

Total area

11 170 kvm

Om fastigheten

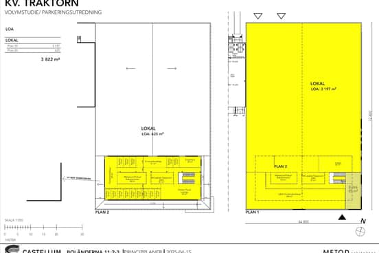
Fastigheten har ett strategiskt läge som är optimalt både för leveranser men också med en direkt närhet till Uppsala C. Här planeras en nyproduktion om ca 4000 kvm i anslutning till befintlig byggnad.

Området

Fastigheten är belägen i Främre Boländerna som är Uppsalas mest spännande utvecklingsområde med ett mycket bra läge bara fem minuters från Uppsala Resecentrum och centrumkärnan. Området kommer genomgå en hisnande förvandling. Här skapas en urbant modern miljö med en varierad arkitektur och öppna ytor. Längs trottoarer ser vi tusentals människor att röra sig varje dag, mellan nya arbetsplatser och Uppsalas centrala delar och mellan de många matställen och gröna oaser som kommer att ligga som naturliga träffpunkter i området. Vi planerar redan för utvecklingen av befintliga hus och byggnationen av nya attraktiva fastigheter med ljusa parkmiljöer. Allt för att skapa en dynamisk miljö med plats för människor, idéer och innovation. Främre Boländerna kommer att bli ett spännande exempel på Castellums kreativa och hållbara tänkande, där gröna ytor blir fokuspunkter för spontana möten och interaktion. Restauranger och caféer kan öppna för samtal och avkoppling, och med vår filosofi kring ett hållbart arbetsliv och god hälsa siktar vi på att fortsätta utveckla utemiljöer som flexibla arbetsytor. Områdets tre parker kommer att utvecklas till gröna oaser med funktioner så som dagvattendammar, utekontor, scener, ängsplanteringar och sittmöjligheter.

Kommunikationer

Endast 5 minuters promenad till Resecentrum. Mycket fina cykelbanor och flertalet bussförbindelser till området.

Parkering

Markparkering finns att hyra på fastigheten.

Service

I närområdet ligger flertalet lunchrestauranger, gym, padelanläggning, frisör och hunddagis.

Energi & hållbarhet

  • Total energianvändning (2025): 2 kWh/m²
  • Klimatpåverkan: 8,68 kg CO₂e/m² (platsbaserad)

Hyresgäster i fastigheten

Inkclub

Karta

Dokument

Kontaktperson

Kommersiell Förvaltare

Maria Hydling

Anmäl intresse

Är du intresserad av att sitta i den här fastigheten? Gör en intresseanmälan så hör vi av oss om det dyker upp någon lämplig lokal.

Intresseanmälan

Kontaktinformation

All behandling av personuppgifter sker i enlighet med dataskyddsförordningen och annan dataskyddslagstiftning. Läs mer om GDPR

Lediga lokaler i Boländerna 11:2