Gå till huvudinnehåll

Uppsala Boländerna

Säbygatan 6-8

Butik Lager/Logistik

Yta

675 kvm

Tillträdesdatum

Enl. ök.

Våningsplan

1

Flexibel och rymlig lokal i Främre Boländerna – perfekt för lager, produktion eller grossistverksamhet

Nu finns möjlighet att hyra en mycket funktionell lokal om 675 kvm i attraktiva Främre Boländerna i Uppsala – ett centralt och expansivt verksamhetsområde med utmärkta transportmöjligheter.

Lokalen har lastkaj, som ger effektiv in- och utlastning. Innanför lastkajen finns dessutom en lagerdel med takhöjd upp till ca 6 meter, perfekt för hög lagring eller logistikintensiv verksamhet.

Passar lager, produktion, grossist och proffsbutik

Strategiskt läge i Främre Boländerna med goda transporter

En lokal som kombinerar läge, funktion och flexibilitet – redo att anpassas efter din verksamhets behov.

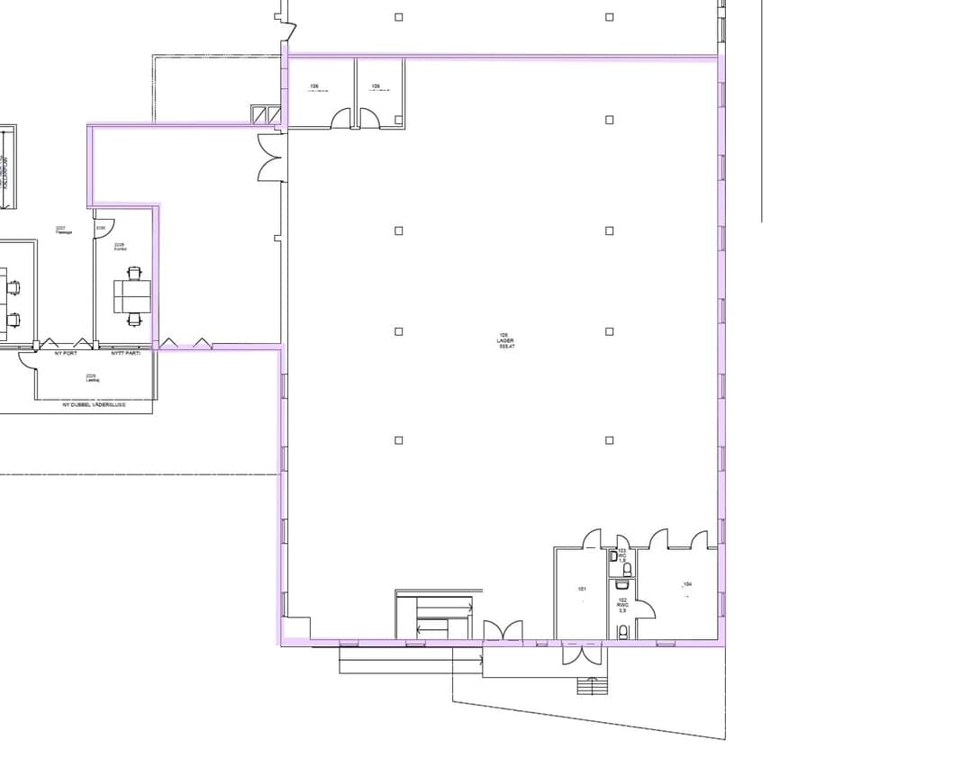
Planlösning

Lokalen erbjuder en stor, öppen yta som lämpar sig utmärkt för lager, produktion, grossist eller proffsbutik. Takhöjden i denna del varierar mellan ca 3,20–4,30 meter, vilket ger god rymd och flexibilitet för olika verksamheter. Här finns även kund-WC.

För personalen finns en pentrydel med separat WC.

Området

Fastigheten är belägen i Främre Boländerna som är Uppsalas mest spännande utvecklingsområde med ett mycket bra läge bara fem minuters från Uppsala Resecentrum och centrumkärnan. Området kommer genomgå en hisnande förvandling. Här skapas en urbant modern miljö med en varierad arkitektur och öppna ytor. Längs trottoarer ser vi tusentals människor att röra sig varje dag, mellan nya arbetsplatser och Uppsalas centrala delar och mellan de många matställen och gröna oaser som kommer att ligga som naturliga träffpunkter i området. Vi planerar redan för utvecklingen av befintliga hus och byggnationen av nya attraktiva fastigheter med ljusa parkmiljöer. Allt för att skapa en dynamisk miljö med plats för människor, idéer och innovation. Främre Boländerna kommer att bli ett spännande exempel på Castellums kreativa och hållbara tänkande, där gröna ytor blir fokuspunkter för spontana möten och interaktion. Restauranger och caféer kan öppna för samtal och avkoppling, och med vår filosofi kring ett hållbart arbetsliv och god hälsa siktar vi på att fortsätta utveckla utemiljöer som flexibla arbetsytor. Områdets tre parker kommer att utvecklas till gröna oaser med funktioner så som dagvattendammar, utekontor, scener, ängsplanteringar och sittmöjligheter.

Kommunikationer

Endast 5 minuters promenad till Resecentrum. Mycket fina cykelbanor och flertalet bussförbindelser till området.

Parkering

Markparkering finns att hyra på fastigheten.

Service

I närområdet ligger flertalet lunchrestauranger, gym, padelanläggning, frisör och hunddagis.

Fastigheten

Fastigheten har ett strategiskt läge som är optimalt både för leveranser men också med en direkt närhet till Uppsala C. Här planeras en nyproduktion om ca 4000 kvm i anslutning till befintlig byggnad.

  • Lastkaj
  • Centralt läge
  • Kommunikationer

Faciliteter i fastigheten

Lastkaj Parkering

Service i området

Buss

Energi & hållbarhet

  • Total energianvändning (2025): 2 kWh/m²
  • Klimatpåverkan: 8,92 kg CO₂e/m² (platsbaserad)

Andra hyresgäster i fastigheten

Inkclub

Karta

Dokument

Kontaktperson

Affärsutvecklare

Theresa Söderlund

Fråga oss!

Nyfiken på den här lokalen? Eller behöver du hjälp att hitta rätt lokal för din verksamhet? Oavsett om du vet exakt vad du söker eller om du behöver rådgivning, så finns vi här och hjälper till.

Vi ser fram emot att höra av dig.

Intresseanmälan

Kontaktinformation

All behandling av personuppgifter sker i enlighet med dataskyddsförordningen och annan dataskyddslagstiftning. Läs mer om GDPR

Ett eget husteam ingår i hyran

Som hyresgäst hos oss får ni ett lokalt husteam som ser till att ni trivs och att allt fungerar som det ska. Vi hjälper till med allt från fastighetsskötsel och energioptimering till skyltning och parkering. Ingen fråga är för stor eller för liten. Och skulle era behov förändras brukar vi alltid kunna erbjuda en lösning, vad det än gäller. Varmt välkommen till en värd bortom det förväntade.

Liknande lokaler i Uppsala